echo $img['alt'];

wbw z4 science park 3

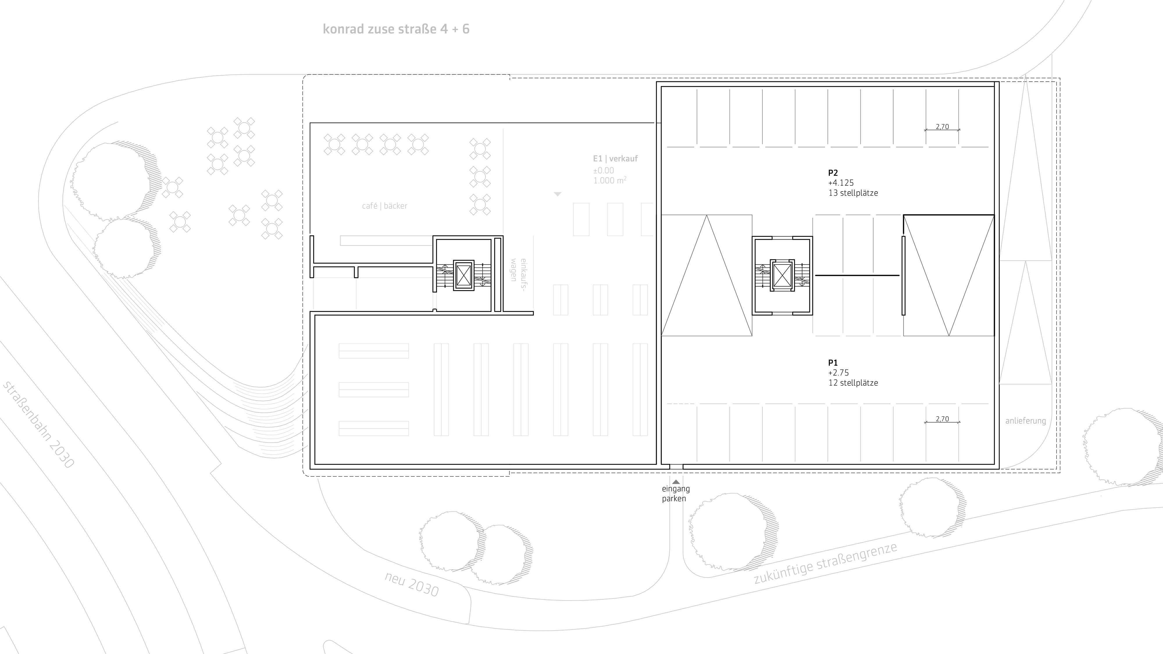
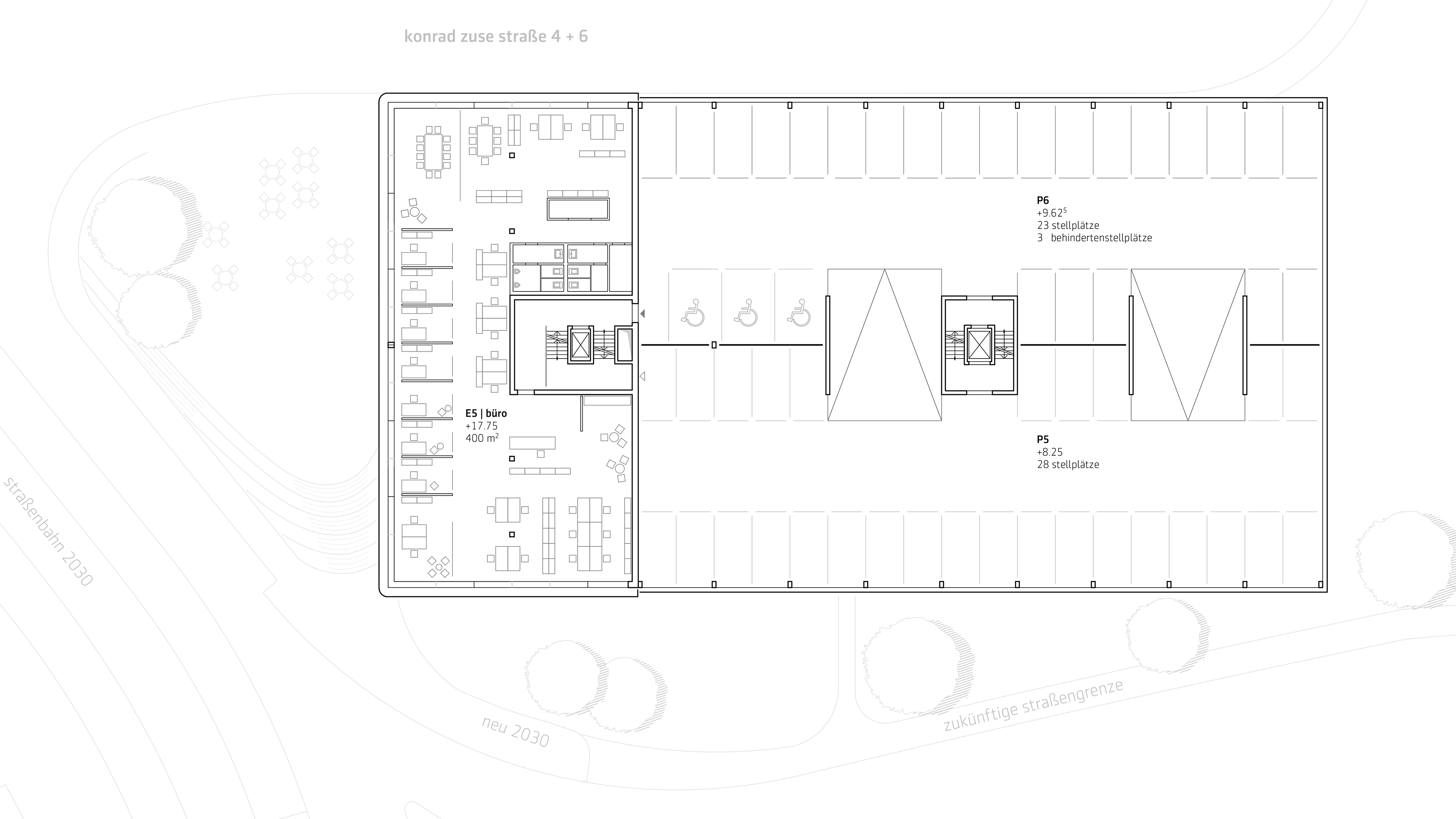
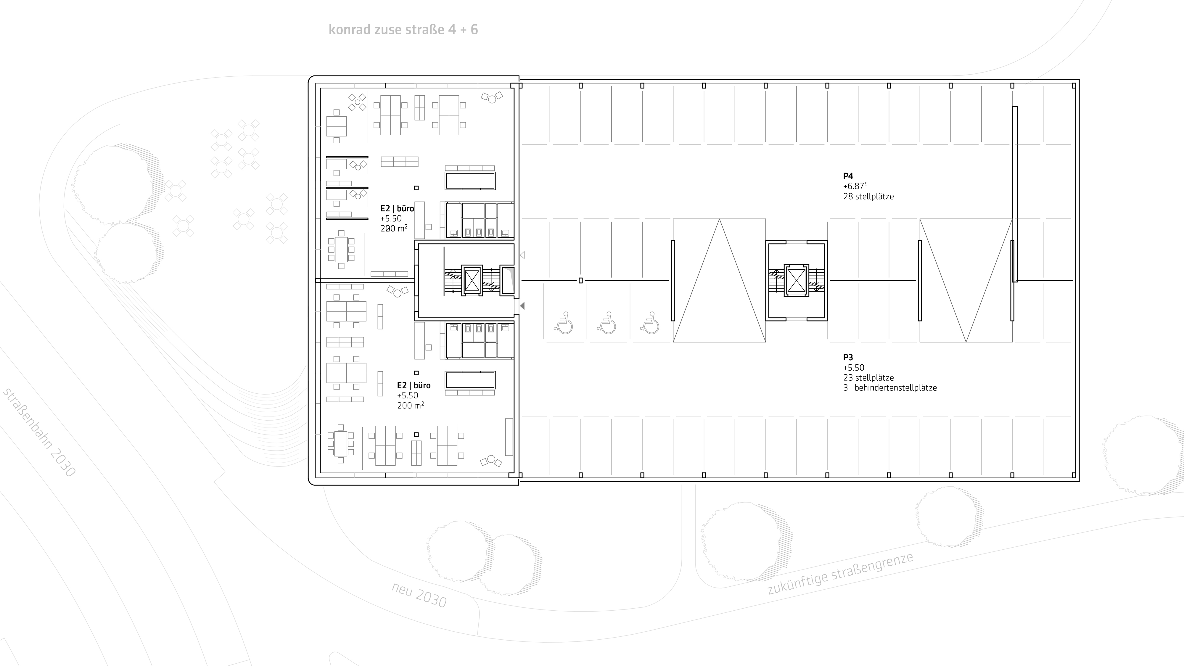
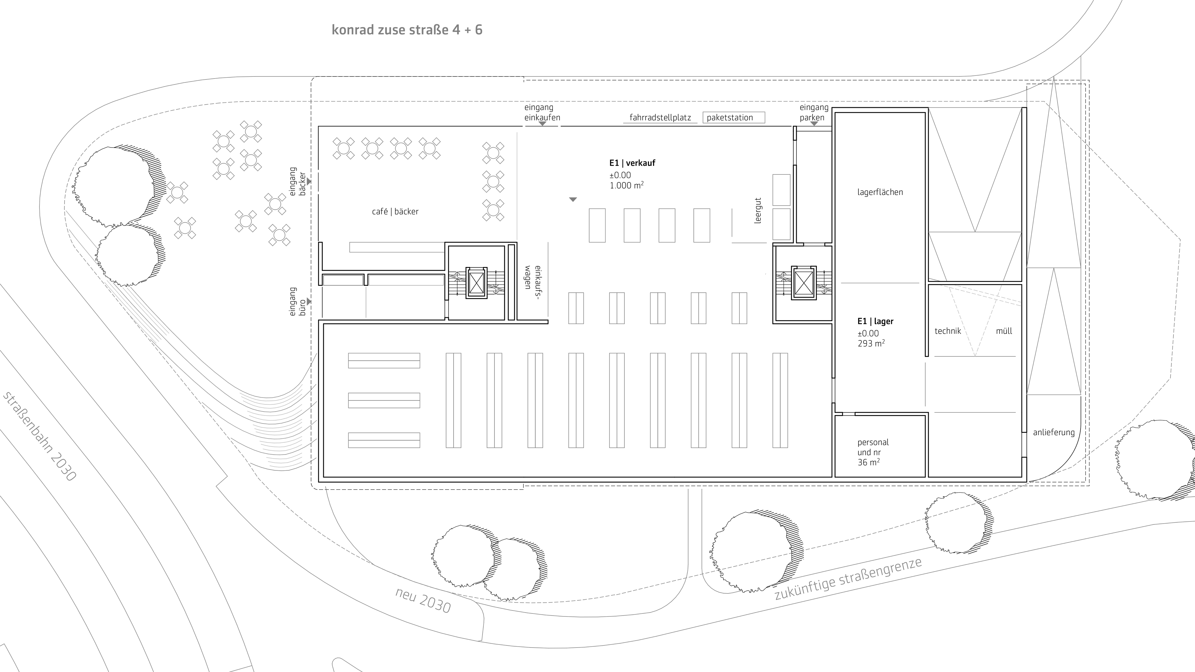
bürohaus mit einzelhandel und parken in der konrad-zuse-straße, ulm
 

adressbildung

fernwirkung

tag – nacht – wirkung

durchblick und einblick

transparenz

orientierbarkeit

vorbereich mit café – plaza – treffpunkt = aufenthaltsqualität

identitätsstiftender auftakt für den science park III

kompakter und homogener auf sockel ruhender baukörper

klare adressen für alle nutzungen

öpnv und mobilitätsdrehpunkt

qualitätsvolle arbeitsplätze

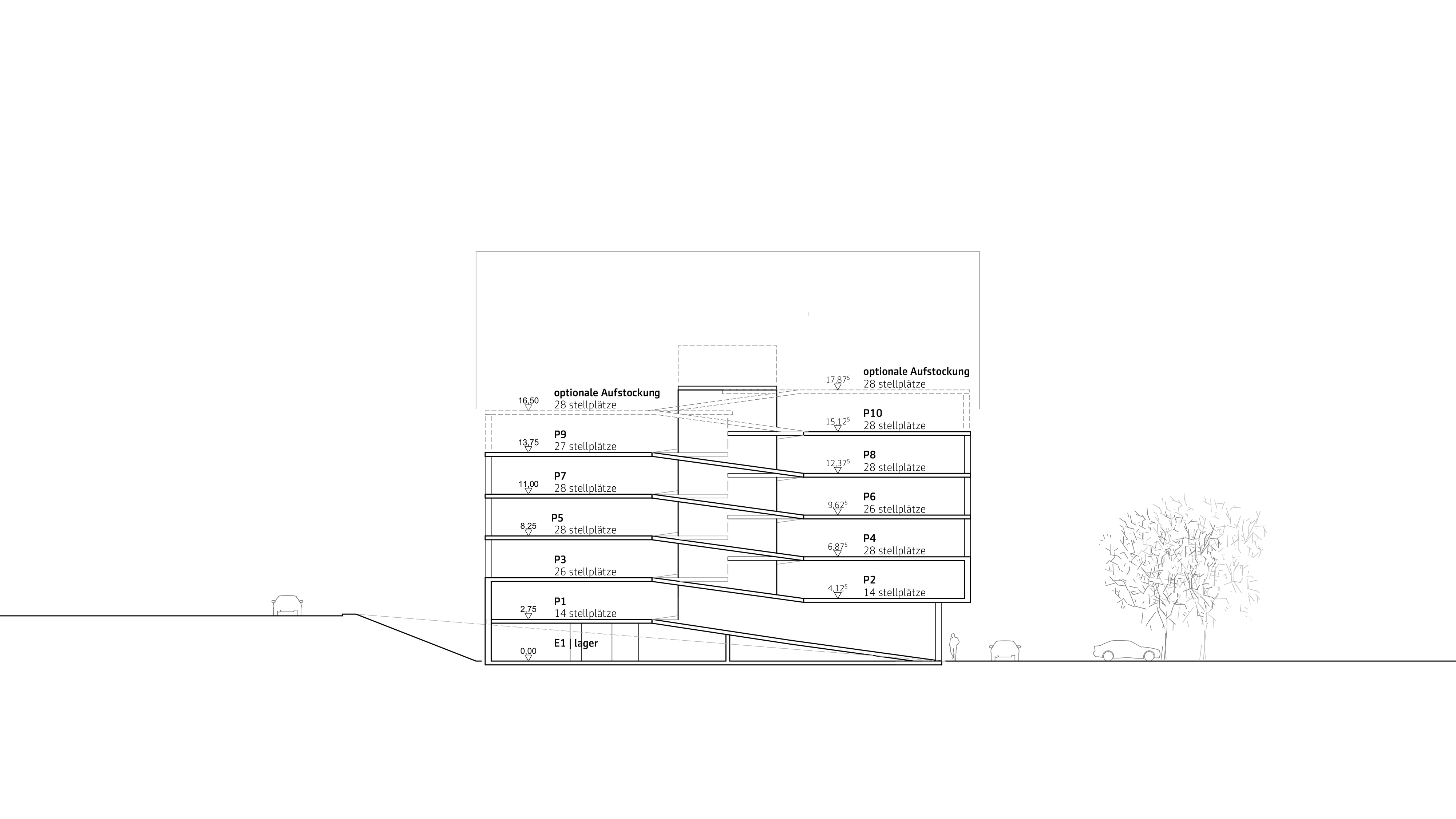
kompakter homogener baukörper

einfaches konstruktions- und ausbauraster 0,625m

optionale aufstockung parkgeschoss pro halbebene 28 stellplätze

wirtschaftliche spannweiten

natürliche durchlüftung

reduzierter technikanteil

optimierte geschosshöhen für anbindung aller nutzungen

flexible grundrisse

optimale eignung für vielfältige nutzungen büro – produktion – labor

feststehender sonnenschutz – kein technischer aufwand

schlüssiges internes erschließungssystem

wirtschaftlicher glasanteil <45%

günstiges a/v verhältnis

durch vorgehängte fassade einfache wandkonstruktion

insgesamt kostengünstige bauweise

standort: konrad-zuse-straße 4+6, ulm
wettbewerb: 2018
auslober: peg projektentwicklungsgesellschaft ulm mbh
auszeichnungen: 1.platz
Nach oben