echo $img['alt'];

wbw obergericht zürich

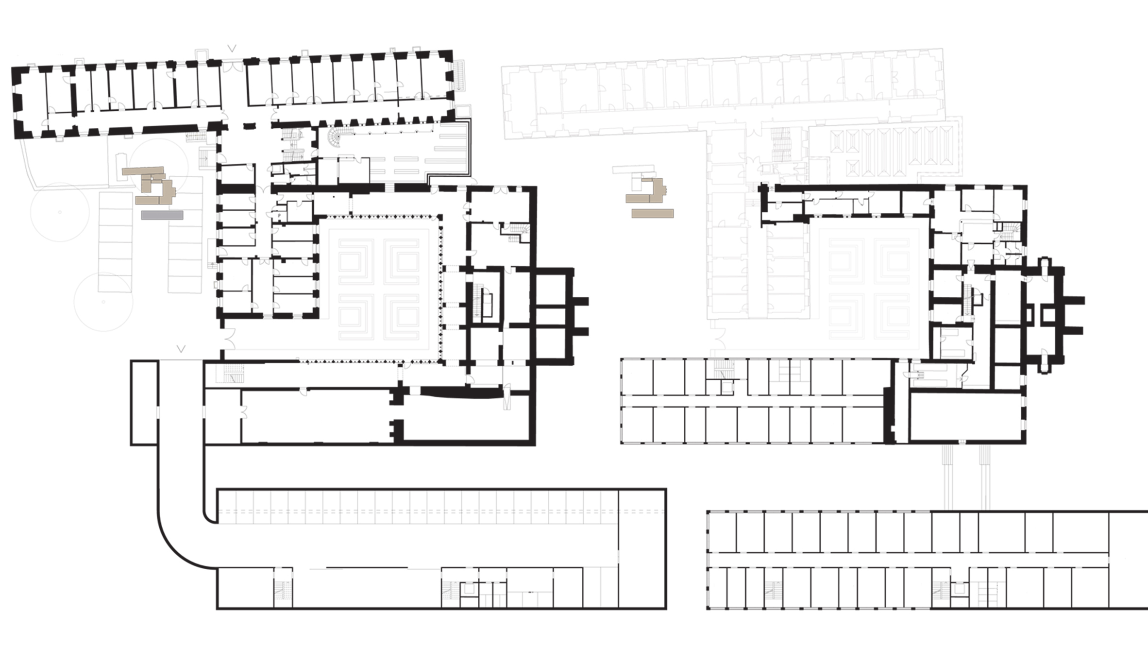
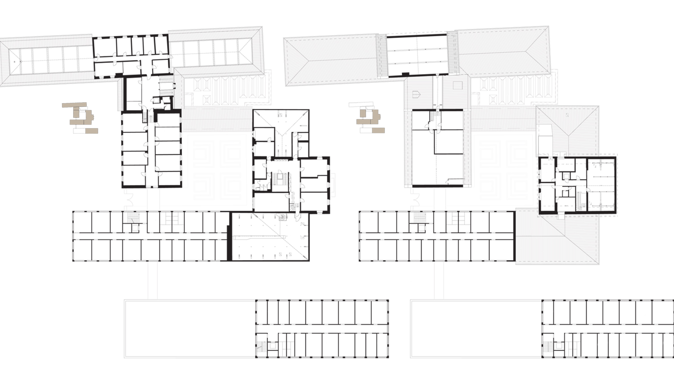
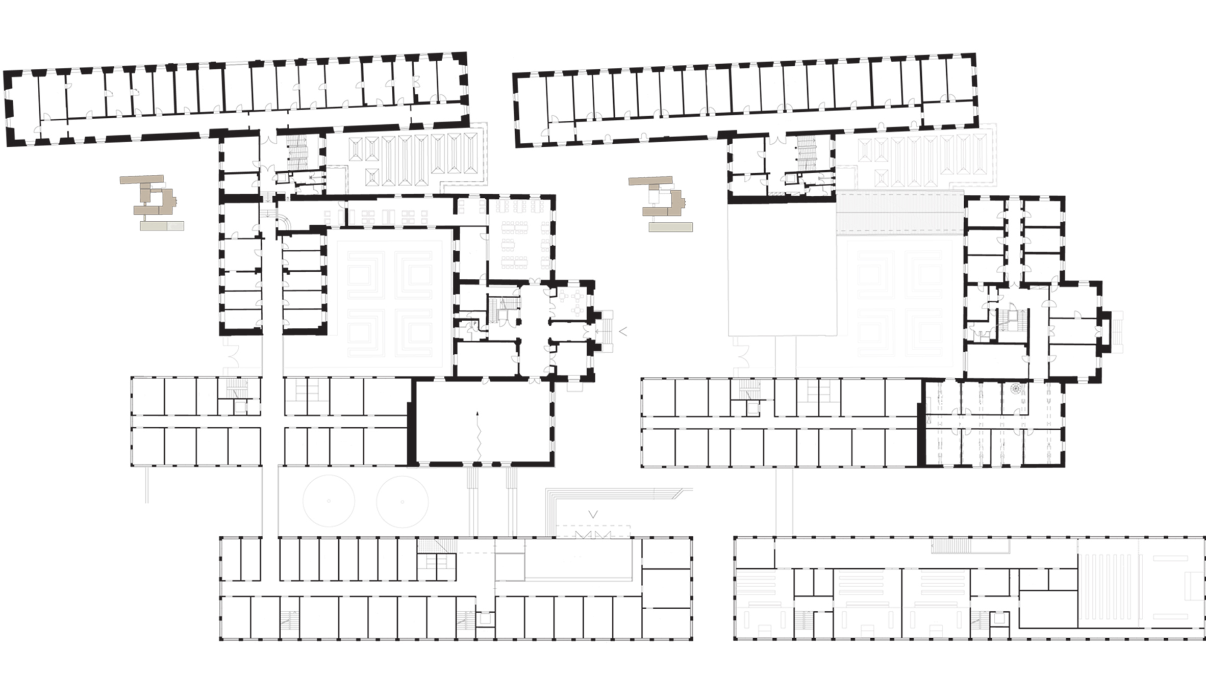
wettbewerb neubau und erweiterung obergericht, zürich
 

die vorgeschlagene erweiterung des obergerichts interpretiert die städtebauliche situation am hirschengraben zwischen der geschlossenen blockrandbebauung der altstadt zürichs und dem offenen, promenadenartigen charakter des hirschengrabens in doppelter weise. einerseits passen sich die erweiterungen an den vorhandenen städtebaulichen maßstab der umgebung an, andererseits stärkt das neue ensemble den eindruck eines eigenständigen, freistehenden, öffentlichen gebäudekomplexes an der nahtstelle zwischen mittelalterlicher kernstadt und neuzeitlicher stadterweiterung. die hohe durchlässigkeit, die vernetzungen und die zahlreichen blickbeziehungen des angrenzenden altstadtquartiers werden fortgeführt und die erweiterungen behutsam in die historisch gewachsene situation und die hanglage eingefügt.

standort: zürich
wettbewerb: 2005
auslober: stadt zürich
Nach oben