wbw donaubastion
wettbewerb neuer städtebaulichen auftakt obere donaubastion, ulm
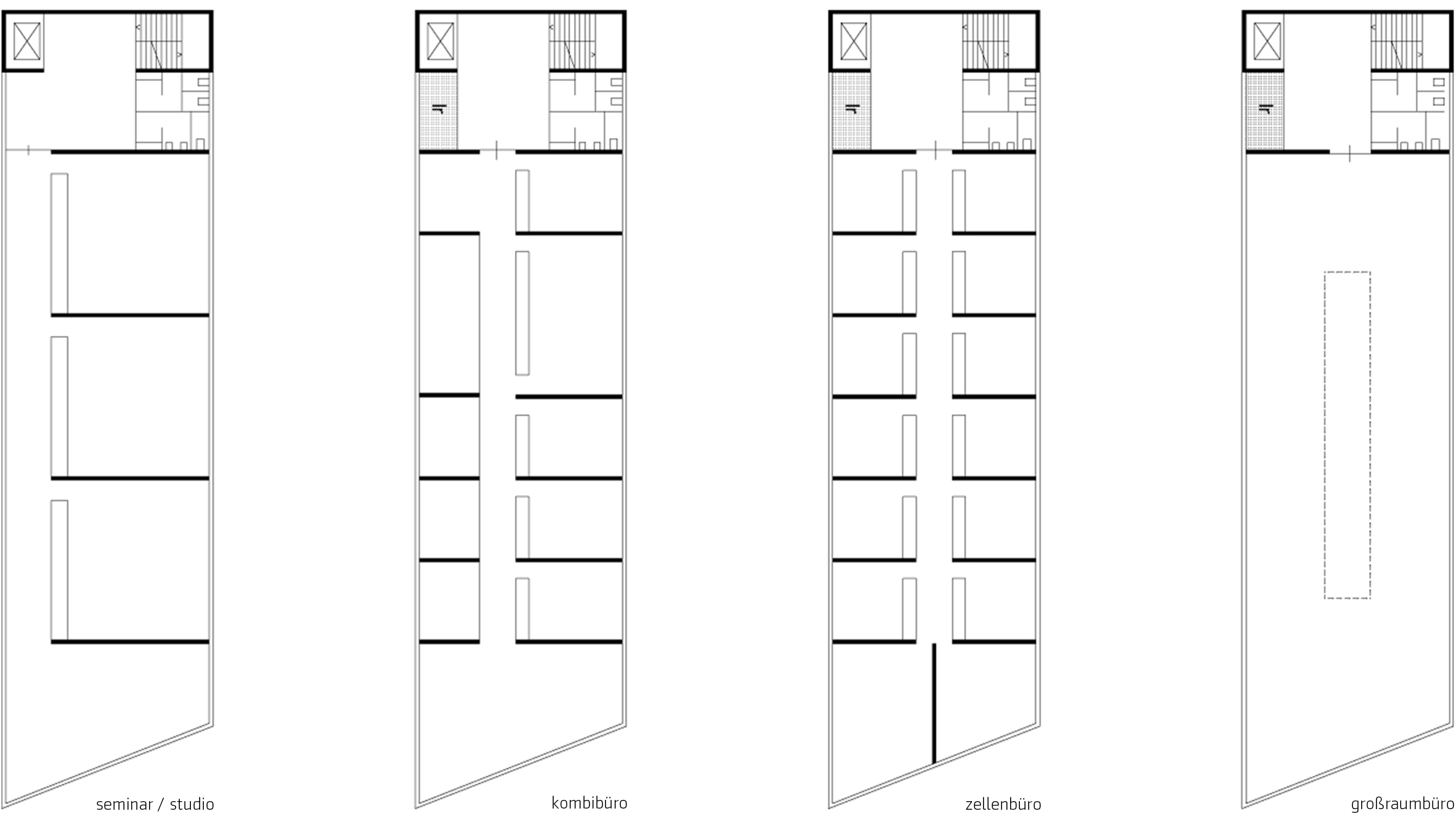
in fortführung der vorhandenen zeilenbebauung bildet der entwurf einen neuen städtebaulichen auftakt für die obere donaubastion. dabei wird der stadteingang durch ein viergeschossiges gebäudevolumen markiert, das einen neuen zugang zum areal definiert und gleichzeitig einen offene abschluss bildet. die nutzungsneutralen, flexiblen grundrisse des gebäudes schaffen mit einem kompakten kernbereich, foyerbereichen, vorzonen und lufträumen eine große innenräumliche qualität. die hauptnutzflächen sind zur angrenzenden donau ausgerichtet und ermöglichen ausblicke auf das ulmer münster. im erdgeschoss stehen nutzungsneutrale freiflächen als externe mietflächen zur verfügung.
standort: ulm
wettbewerb: 2005
auslober: stadt ulm
wettbewerb: 2005
auslober: stadt ulm