echo $img['alt'];

wohnbebauung lettenwald

mehrfachbeauftragung wohnquartier am lettenwald, ulm
 

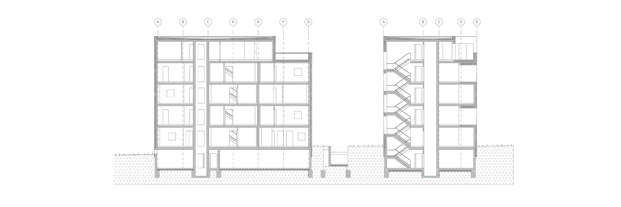
die neubebauung des „wohnquartiers am lettenwald“ in böfingen nimmt entlang der haupterschließungsstraße die vorgegebene baugrenze parallel zur straße auf. die beiden fünfgeschössigen baukörper bilden straßenseitig ein klares pendant zu der gegenüberliegenden zehngeschossigen bebauung.
die klar gegliederte lochfassade fasst die beiden baukörper formal zu einem gebäudeensemble zusammen, durch die additiven fassadenelemente entsteht ein lockeres spiel auf der fläche. zur gartenseite und zum öffentlichen grün im süden lösen sich die fassaden in loggien und terrassen
auf. eine geschützte grünfläche im westen lädt als halböffentliche fläche zum verweilen und zusammentreffen
ein. die erschließung des nördlichen baukörpers liegt im osten und kann direkt über den gehweg erreicht werden, die erschließung des südlichen baukörpers erfolgt von norden, über eine rampe. insgesamt entstehen 22 wohneinheiten zwischen 50m² und 190m². über effiziente barrierefreie erschließungskerne werden alle wohnungen der gebäude erreicht. der nördliche baukörper ist im erdgeschoss und im regelgeschoss ein dreispänner, der südliche baukörper ist als zweispänner ausgebildet. im staffelgeschoss befindet sich jeweils eine großzügige penthouse-wohnung. durch die großen fenster und loggien wird eine optimale belichtung
der wohnungen gewährleistet. nahezu alle wohnräume,
bäder und küchen sind natürlich belichtet und belüftet. innerhalb der grundrisse ist ein hohes maß an flexibilität möglich, um sowohl offene als auch geschlossene nutzungen
zuzulassen. alle wohnungen sind barrierefrei nach din 18040 teil 2. beide baukörper entsprechen dem passivhausstandard.

standort: lettenwald ulm
fertigstellung: 2013
bauherr: august inhofer wohnbau
Nach oben