echo $img['alt'];

wilken gmbh

neubau eines casinos und bürogebäudes, ulm
 

das softwareunternehmen wilken gmbh erweitert seinen firmensitz um einen repräsentativen neubau. das projekt bindet den bestehenden firmensitz über einen u-förmigen neubau ein, es entsteht ein interner und kommunikativer rundgang der kurzen wege. der 3-geschossige neubau schließt im süden direkt an das bestandsgebäude an, im norden ist der neubau durch einen steg mit dem bestand verbunden. im zuge der neubaumaßnahme wird das bestandsgebäude teilweise umgebaut. auf dem dach liegt der „flieger“, der sich formal und materiell von dem sockelbau ablöst und im osten und im süden über den sockelbau auskragt und den blick auf das ulmer münster freigibt.
im „flieger“ ist der vip gästebereich, sowie seminar- und präsentationsräume untergebracht.
das obergeschoss ist ein reines bürogeschoss, das mit dem bestandsgebäude einen rundgang erzeugt. das eingangsgeschoss
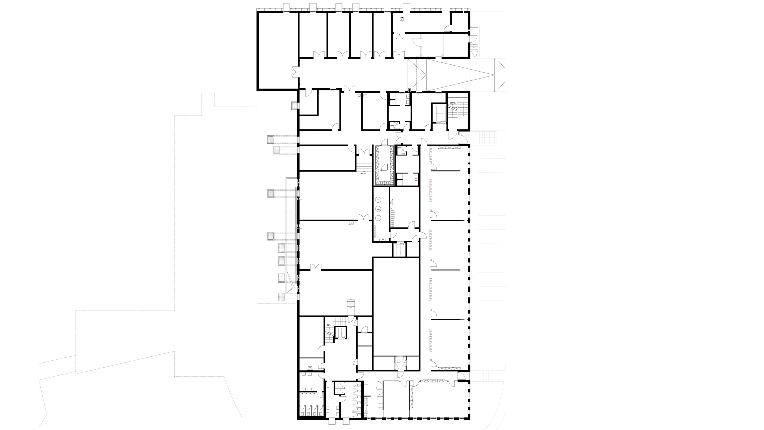
beinhaltet im süden das foyer mit angrenzendem casino und im norden einen büroriegel. der innenhof dient als kommunikations- und erholungszone.
im untergeschoss befindet sich das rechenzentrum mit dazugehörigem
bürobereich und die anlieferung des casinos.
der sockelbau besteht aus einem stahlbetonskelettbau mit nichttragenden außenwänden aus porenbeton mit installationsebene.
der „flieger“ ist als leichtbau in holzbauweise mit einer vorgehängten metallfassade konzipiert.

standort: ulm
fertigstellung: 2013
bauherr: wilken gmbh, ulm
Nach oben