echo $img['alt'];

wbw wohnungsbau balingen

neuordnung an einem markanten städtebaulichen standort in balingen
 

blockrandabschluss durch l-winkel baukörper – eckbetonung

markante ecksituation zum stadtkern

ein baukörper – identität

städtebauliche raumkanten fortgeführt

höhenentwicklung von 5 geschossen

fuge zum angrenzenden baudezernat – lässt raum – keine überlagerung

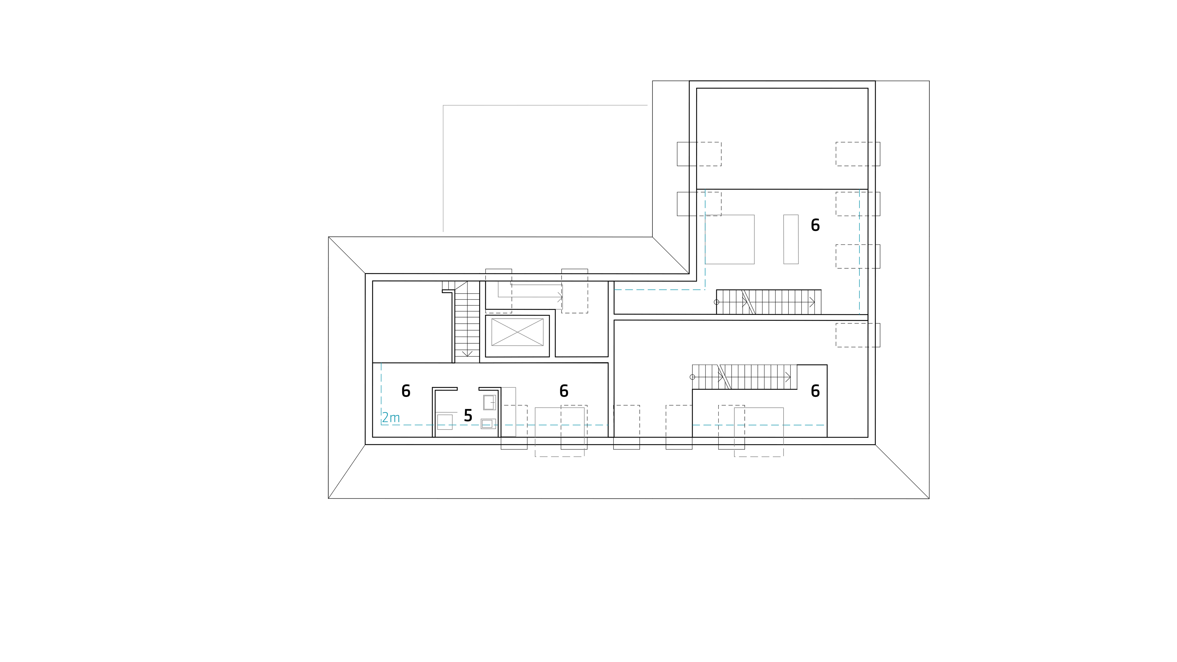
dachform ermöglicht maximale innenraumnutzung

nutzbare räume im dachgeschoss durch mansardgeometrie

straßenseitige firstkante nach unten versetzt, anlehnung an nachbardächer

eg zonen ohne abweisende gesten – öffnung zum straßenraum

belebende maßnahmen der erdgeschosszone – weiterführung fußgängerzone

ausbildung einer markanten erdgeschosszone mit großen schaufensterflächen

maximale einzelhandelsfläche – zusammenschaltbare einzelhandelsfläche

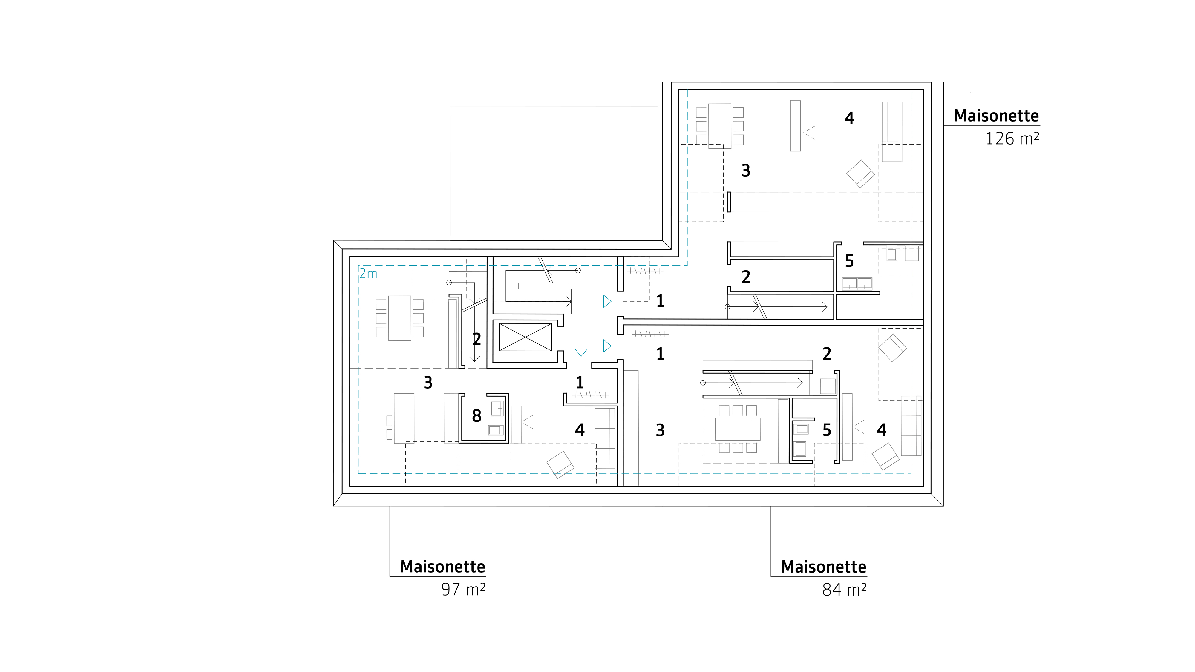
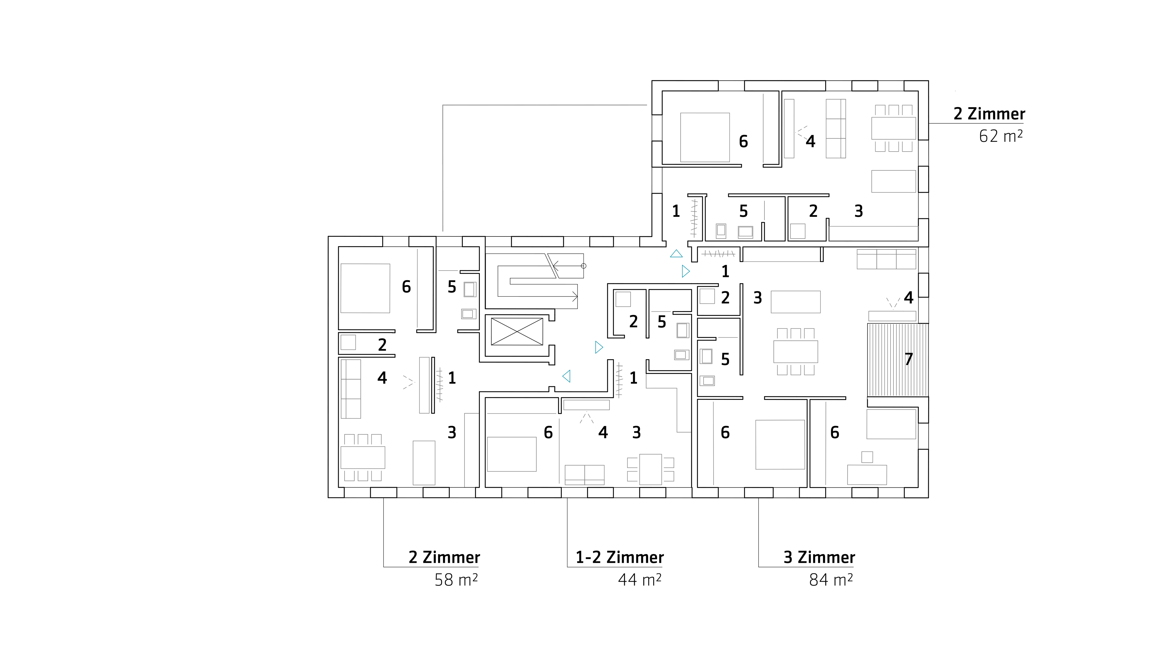
angebot unterschiedlicher wohnungstypen

verkehrsberuhigter bereich innerhalb des innenhofs

staffelung der gebäudeöffnungen analog der funktionen

reduktion der erschließungsfläche auf ein effizientes maß

standort: färberstraße 5+9, balingen
wettbewerb: 2019
auslober: abakus immobilien gmbH
Nach oben