echo $img['alt'];

wbw untermarchtal

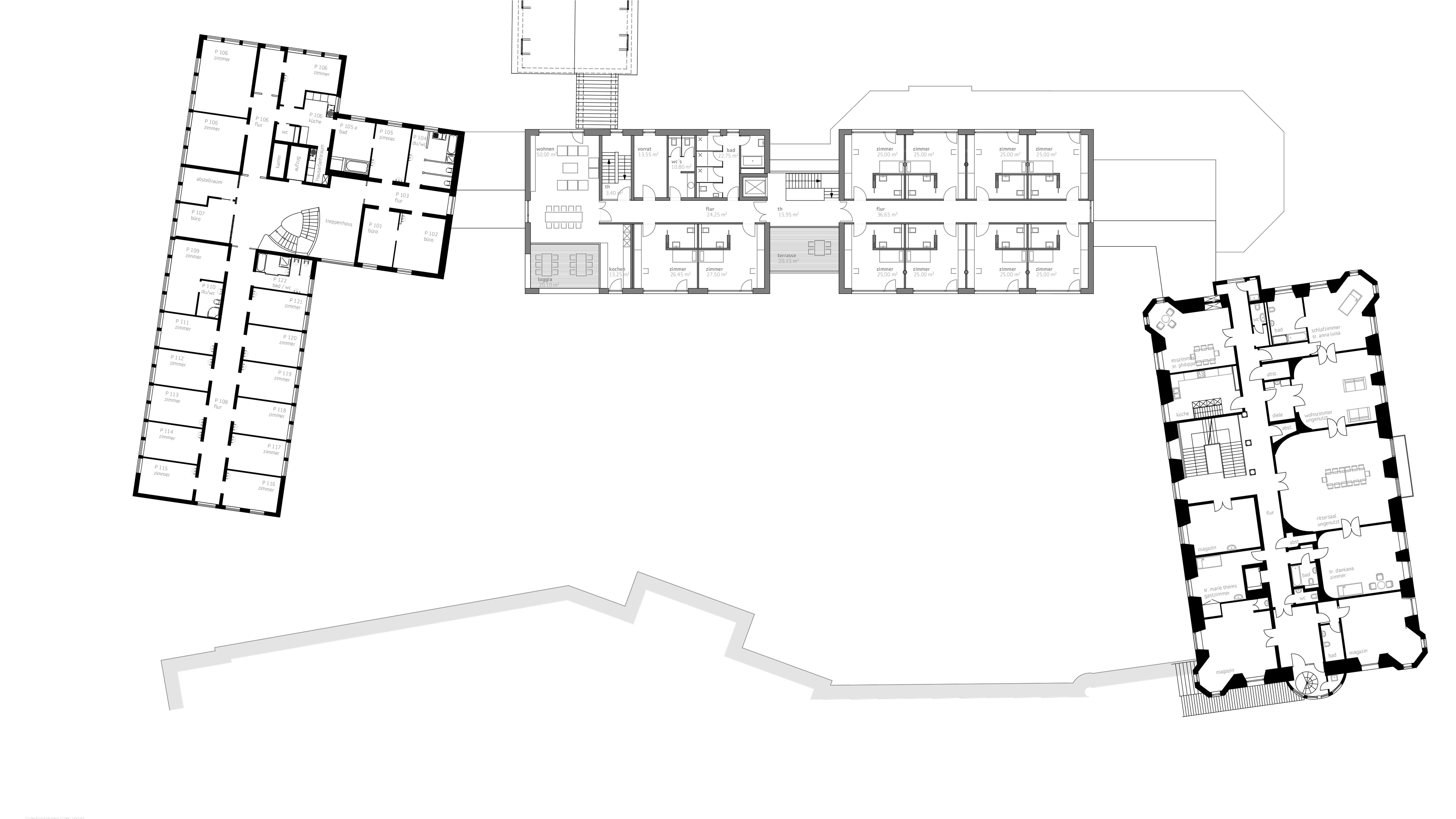
planungsgutachten "mutterhaus st. maria - st. notburga" in untermarchtal
 

die entscheidung für einen neubau gründet sich zusammenfassend in der abwägung aus städtebaulicher neuausrichtung/stärkung des schlosses, identifikation mit dem schloss, identifikation mit dem neuen mutterhaus als eigenständiges wohngebäude sowohl formal als auch nutzungsinhaltlich, barrierefreiheit, brandschutz, energetische gesichtspunkte und neuer zeitgemäßer aussenwirkung/fremdwahrnehmung mit einem hohen maß an aufenthaltsqualität.
ziel des entwurfes ist es, das ursprüngliche alleinstellungsmerkmal des ehmaligen schlosses st. agnes wieder herzustellen und dieses als identität stiftenden „kopf“ des oberen klosterhofes und des klosters allgemein zu stärken.
das konzept sieht vor, das mutterhaus als neubau ab erdgeschossigem hofniveau von st. agnes abzurücken. das neue mutterhaus soll als eigenständiges haus wahrnehmbar sein, was durch die zusätzliche baukörperliche ablösung vom verwaltungsgebäude st. paul unterstrichen wird. das neue mutterhaus soll in seiner gestaltung einen neuen zeitlichen abschitt in der klostergeschichte unterstreichen. zum einen durch die verglasten verbindungsgänge im erdgeschoss, durch das neue verglaste mittige haupttreppenhaus, als auch durch die bodentiefen grosszügigen verglasungen in den schlafzimmern und in den wohnbereichen.

standort: untermarchtal
wettbewerb: 2016
auslober: Genossenschaft der Barmherzigen Schwestern v. Hl. Vinzenz von Paul in Untermarchtal e.V.
Nach oben