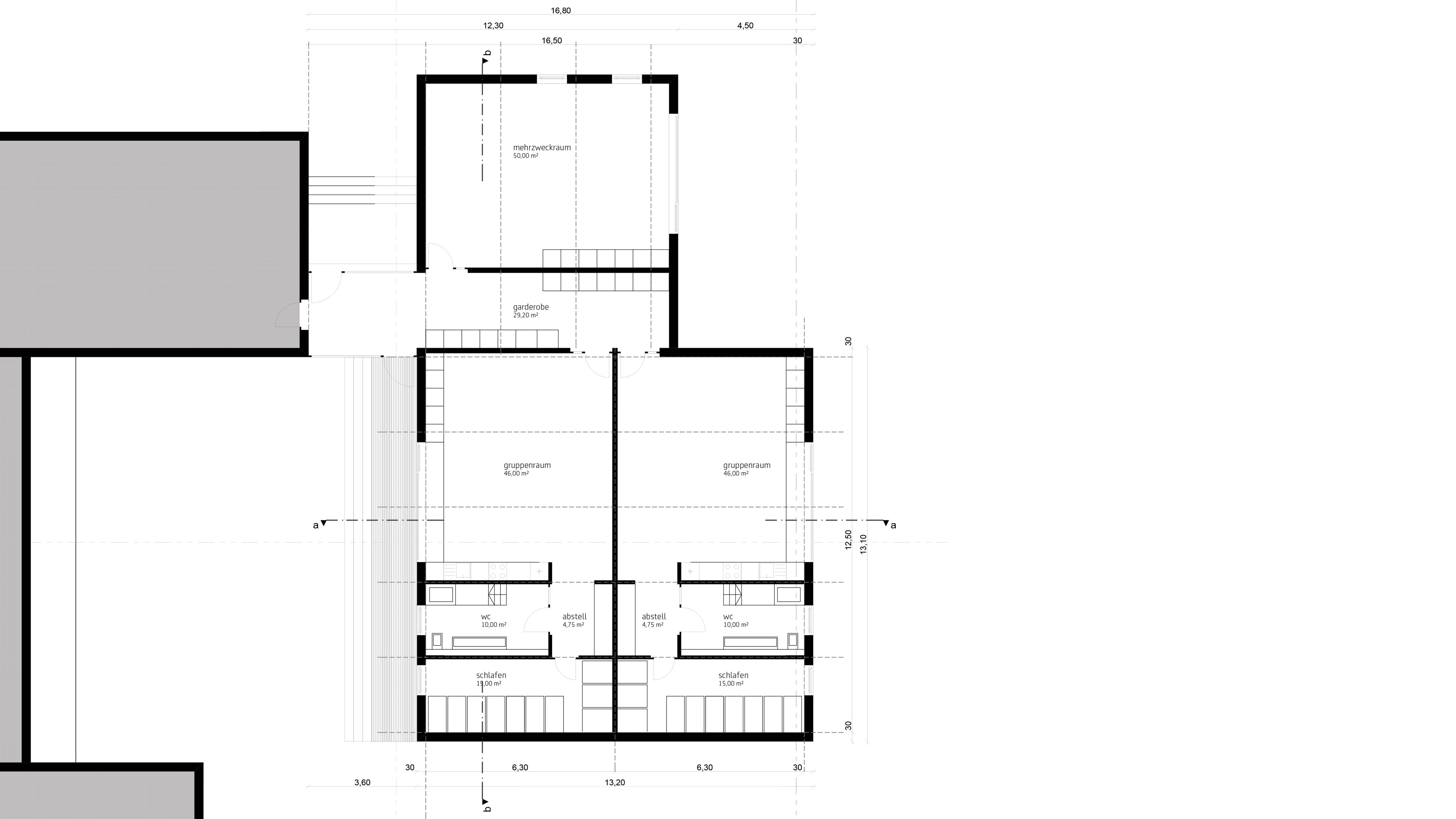
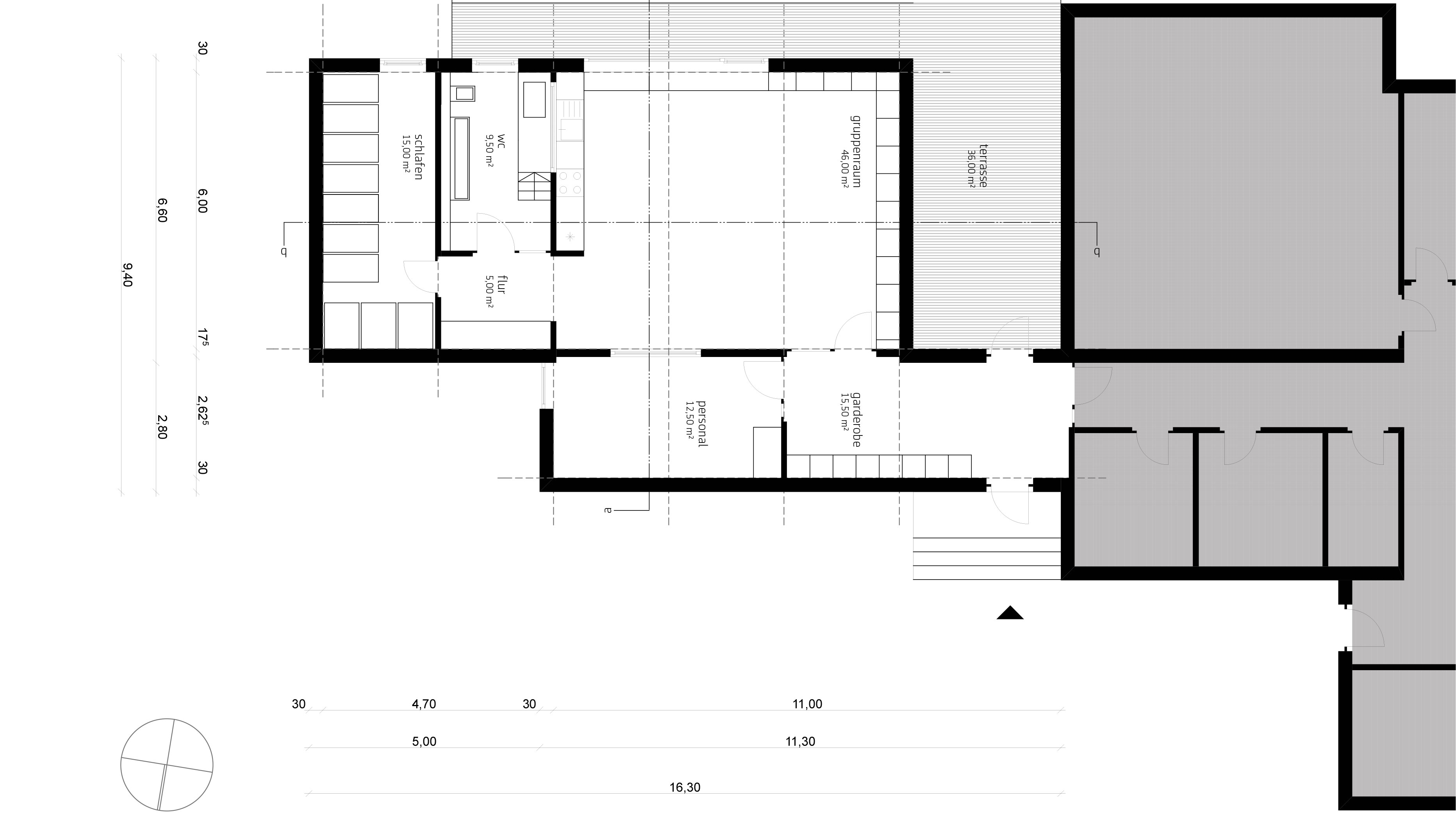
wbw u3 ausbauoffensive
erweiterung von zwei kindertagesstätten um jeweils eine gruppe
standort: ulm
wettbewerb: 2012
auslober: stadt ulm, zentrales gebäudemanagement
wettbewerb: 2012
auslober: stadt ulm, zentrales gebäudemanagement