echo $img['alt'];

wbw söflingen-welz areal

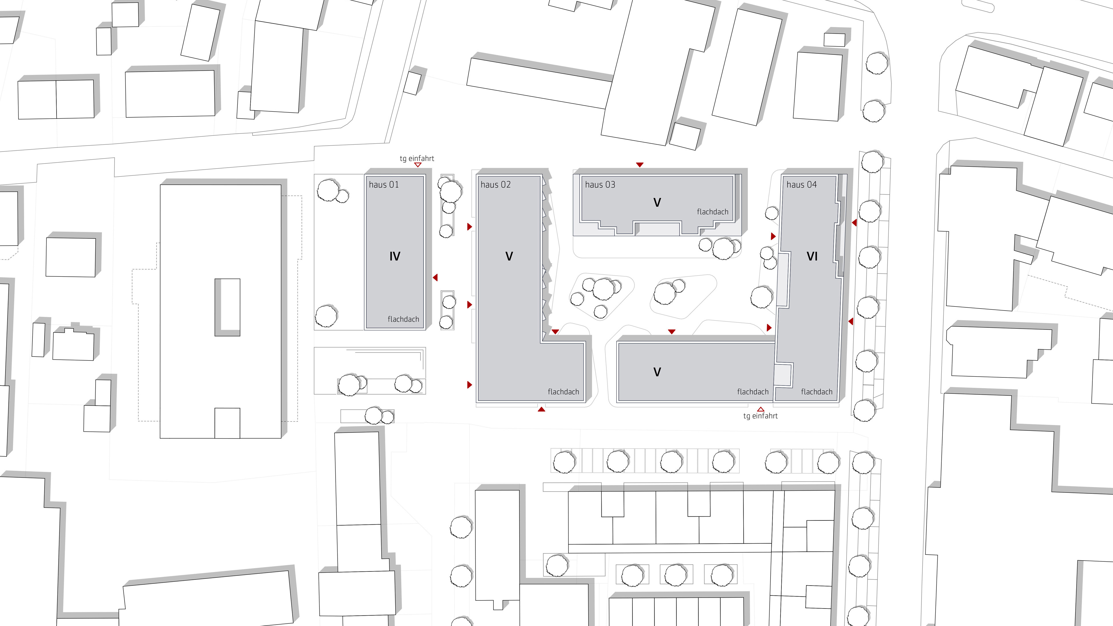
weiterentwicklung eines städtebaulichen gebiets in ulm–söflingen
 

konversion vom industriegebiet hin zum urbanen wohnen und arbeiten
aufteilung in vier baukörper und zwei tiefgaragen (1 geschossig)
höhenentwicklung von 6 geschossen im osten zu 4 geschossen im westen
spielerischer umgang mit den städtebaulichen raumkanten über
höhendifferenzierung der einzelnen spänner oder staffelgeschoss
schaffung identitätsstiftender freiflächen mit ausgewogenem verhältnis
von halbprivaten, halböffentlichen und öffentlichen bereichen.
vielfältige blickbeziehungen richtung söflingen und münster
gewerbe überwiegend zur magirusstraße hin orientiert
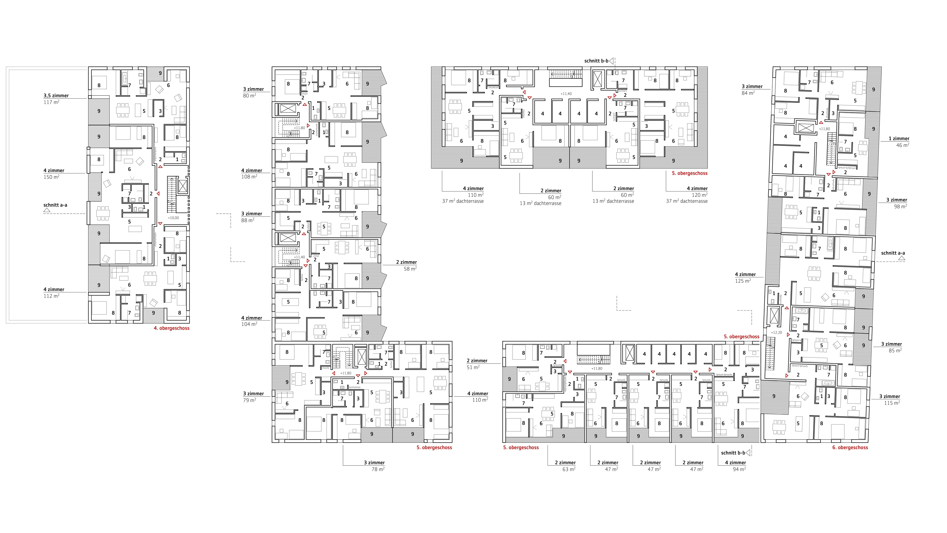
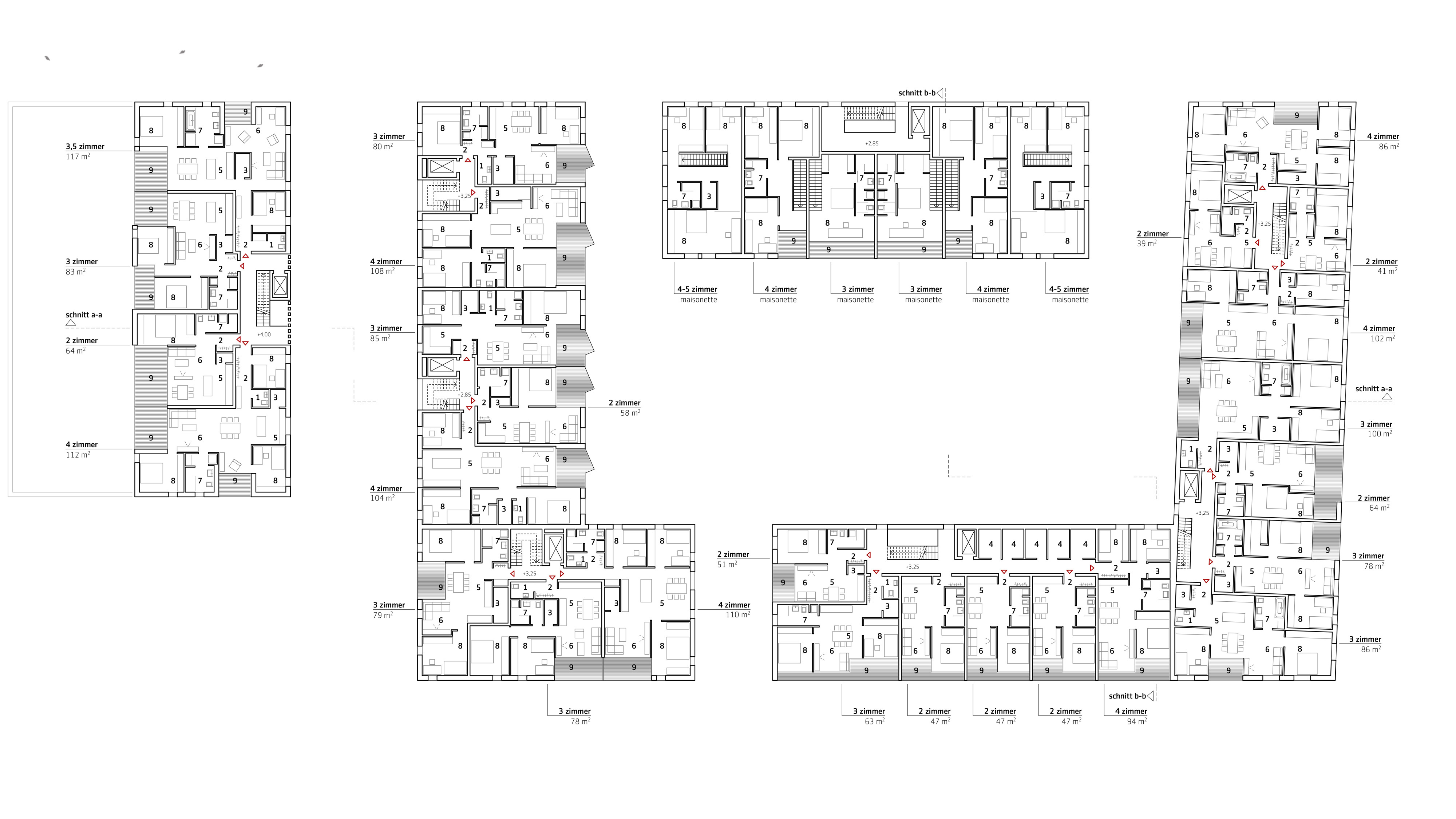
flexible grundrisse im eg und 1.og, hier nutzungsvielfalt durch wechsel
zwischen wohnen und gewerbe
identitätsstiftende und quartiersbelebende maßnahmen wie cafè und
ausstellungsfläche zum quartiersplatz hin.
angebot unterschiedlicher wohnungstypen (mikroappartements, 2zi–, 3zi–,
4zi wohnungen, maisonetten, penthouse) in ausgewogenem verhältnis
angebot unterschiedlicher wohnstandards von west nach ost
ausbildung einer markanten urbanen sockelzone zur frequentierten
magirusstraße hin.
dort flexible nutzungsmöglichkeiten mit zb. einzelhandel, arztpraxen
oder kleingewerbeflächen
verkehrsberuhigter bereich innerhalb des quartiers als zb. spielstraße
ausbildung unterschiedlicher fassadengliederungen, damit auflockerung
langer gebäudeteile.
diversität und identität durch wohltemperierten materialmix der fassaden
wie putz, klinker oder beton.
eg-zonen ohne abweisende gesten – öffnung zum straßenraum
effiziente erschließungsflächen

standort: ulm, söflingen
wettbewerb: 2018
auslober: munk bauen & wohnen gmbh
auszeichnungen: 2. platz                                
Nach oben