echo $img['alt'];

wbw sedanstraße

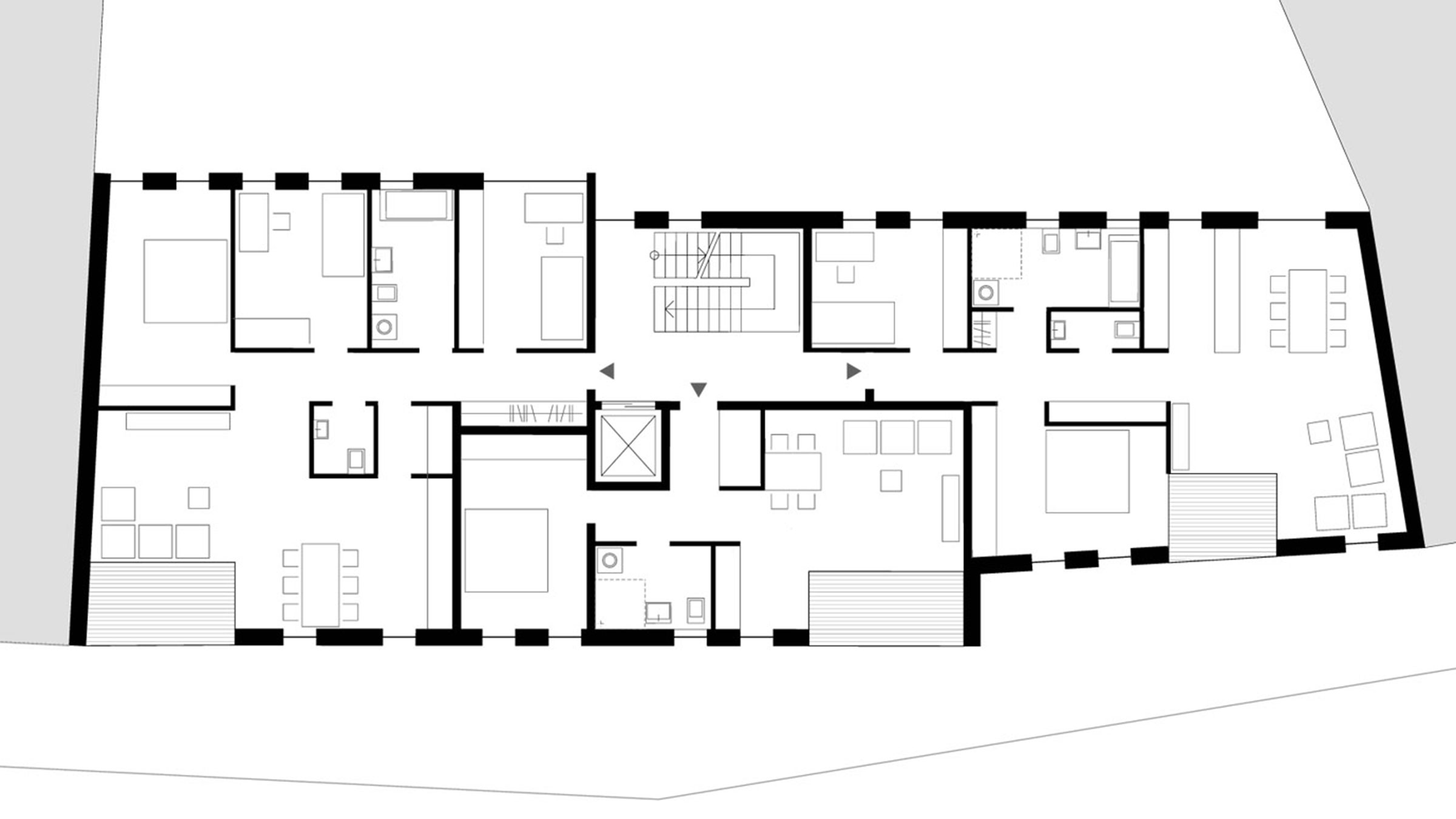
wettbewerb wohngebäude sedanstaße, ulm
 

der vorschlag vermittelt maßstäblich zwischen den benachbarten gebäuden. der massive neubau nimmt die vorhandenen straßenfluchten und gebäudegrößen auf, ohne den vorhandenen knick in der straßenfront zu wiederholen. eine auskragung der geschosse 1-3 prägt den charakter des gebäudes und betont die eingangssituation – bewohner und besucher werden durch den überstand zum eingang geleitet. die staffelung im 4. obergeschoss löst sich von den unteren geschossen ab. auch auf der hofseite nimmt der baukörper bezug auf die nachbarbebauung. der helle und freundliche eingang mit durchblicken zur freifläche im norden ermöglicht ein barrierefreies betreten des gebäudes. die kompakte und mittige anordnung des eingangs, fahrstuhls und treppenhauses ermöglicht eine erschließung aller wohnungen, lagerräume  und gemeinschaftsflächen auf kurzem, natürlich belichtetem weg. insgesamt entstehen 14 differenzierte wohneinheiten. die regelgeschosse sind 3-spännig mit verschiedenen  wohnungen durchmischt. innerhalb der grundrisse ist ein hohes maß an flexibilität möglich, um sowohl offene als auch geschlossene nutzungen zuzulassen. im erdgeschoss befindet sich ein mehrzweckraum, der für hausinterne aktivitäten genutzt oder auch vermietet werden kann. die neue tiefgarage wird über die zufahrt der bestehenden tiefgarage erschlossen.

standort: ulm
wettbewerb: 2012
auslober: ulmer wohnungs- und siedlungs gmbh
auszeichnungen: 2. platz                 
Nach oben