echo $img['alt'];

wbw schweinemarkt 6-8

bauliche entwicklung der grundstücke schweinmarkt 6-8, ulm
 

 

städtebau

stadtreparatur einer nachkriegsbaulücke

einfügen der neubebauung durch aufnahme altstadttypischer gebäudekörnung

wiederherstellung der giebelständigkeit

zergliederung des volumens in 3 wahrnehmbare baukörper

 

gebäude

klare formensprache, lochfassaden mit ruhiger gliederung

 

materialkonzept

aufnahme altstadttypischer materialien

dach biberschwanzdeckung rotbraun

wand strukturierter kalkputz, feine farbnuancen

fenster heimische hölzer

 

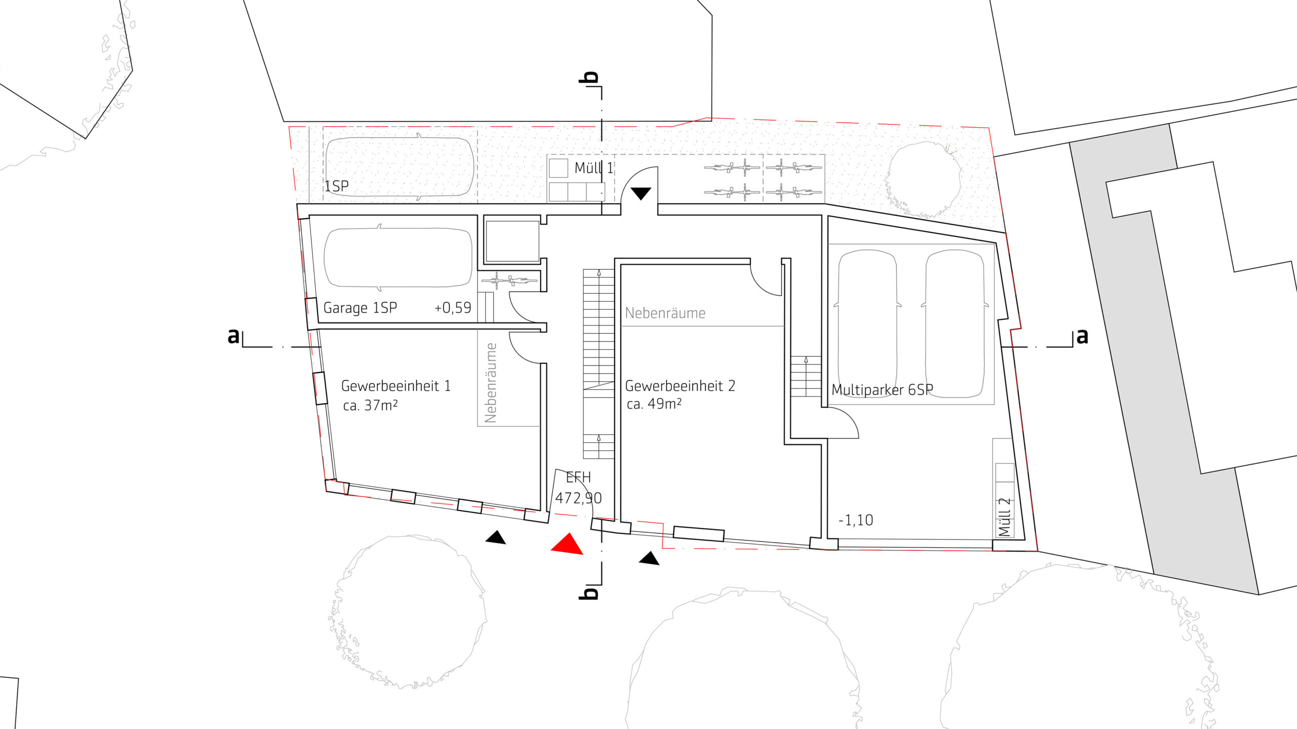
erdgeschosszone

kleine gewerbeflächen sind typisch für die altstadt und ermöglichen eine möglichst hohe nutzungsvielfalt

geforderte stellplätze werden stark gebündelt

grundsätzlich wird empfohlen zur stärkung der städtebaulich wichtigen materialkonzept erdgeschosszone die stellplatzanzahl zu reduzieren

standort: ulm
wettbewerb: 2020
auslober: privat
Nach oben