echo $img['alt'];

wbw parkhaus laupheim

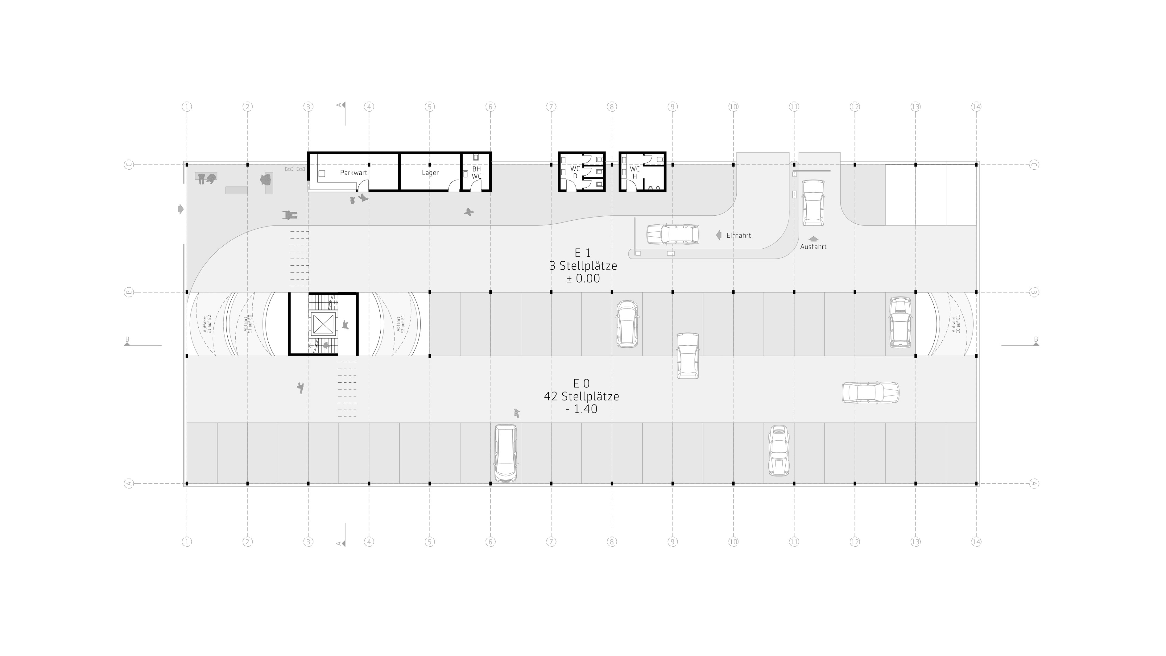
wettbewerb neunutzung eines parkplatzes, laupheim
 

nach untersuchung der vorgefundenen städtebaulichen situation erscheint der neubau eines durchlässigen und offenen parkhauses, das blickbeziehungen zum schlosspark zulässt und die innenstadt wie den schlosspark gleichermassen fussläufg erschliesst als eine der situation angemessene lösung.
das splitlevel-parkhaus ist als Betonskelettbau konzipiert. durch die
splitlevel-organisation vermittelt das gebäudevolumen masstäblich zum schlosspark hin und bildet zur strasse hin eine wirksame raumkante.

die in der einfahrtsebene eingestellten parkwart- und wc-gebäude unterstützen den offenen charakter des hauses und wirken identitätsstiftend in den strassenraum hinein. der grosszügige foyerbereich orientiert sich zur innenstadt hin und beheimatet die parkautomaten und kann durch sitzgelegenheiten und informationen oder ausstellungen ergänzt werden.
die fassade ist konstruktiv und materialseitig noch nicht abschliessend entwickelt. die themen sind flechtung, transparenz und einfachheit.  die fassade soll hüllen und durchblicke zulassen und dem aspekt der sicherheit und des wohlfühlens des fussläufgen nutzers im haus rechnung tragen. der schlosspark soll trotz des gebäudevolumes spürbar und präsent bleiben.

standort: laupheim
wettbewerb: 2012
bauherr: baudezernat - stadtplanung, stadt laupheim
Nach oben