echo $img['alt'];

wbw neubau wohnbebauung weißenhorn

 

die ausgangslage der städtebaulichen konzeption ist die quartiersbildung mit der damit zusammenhängenden vielfalt von unterschiedlichen nutzun­gen und personengruppen an einem ort.

die aktivierung der sockelzone entlang der herzog-georg-straße trägt zur belebung des stadtraumes bei. es entsteht eine gewollte durchwegung des baufeldes insgesamt und eine vernetzung mit den angrenzendes bereichen bahnhof, realschule und altstadt.

die gesamte quartiersfläche wird durch attraktive freiflächen und der ver­netzung mit dem öffentlichen raum aufgewertet.

die identitätsstiftenden und quartiersbelebenden maßnahmen werden durch begegnungszonen und gemeinschaftlich nutzbare flächen ermöglicht. es werden so nachbarschafts- und generationsübergreifende treffpunkte in den laubengängen, den treppenhäusern und auch den gemeinschaftlich nutzbaren dachterrassen und im außenraum ermöglicht.

die süd-west ecke des areals ist für den pkw-verkehr (oberirdische stell­plätze + tg-einfahrt) vorgesehen, sodass ein verkehrsberuhigter bereich ohne verschneidung mit den fußgängerströmen hergestellt wird.

die bildung der volumina der 5 einzelnen baukörpern mit der tiefgarage kom­muniziert mit der körnung der umgebenden bebauung und gliedert sich an­gemessen in das gesamtgebiet ein.

durch die varianz der erschliessungsarten entstehen in den baukörpern un­terschiedliche gebäudetypologien.

die erschließung der 5 einzelgebäude wird durch 3 zentrale treppenhäuser und einer zusätzlicher laubengangverbindung hergestellt.

ein barrierefreier zugang der obergeschosse aller gebäude und der tiefga­rage ist gewährleistet. in den einzelgebäuden sind barrierefreie wohnungen in jeder größe und in verschiedenen stockwerken entsprechend umgesetzt.

zwei der einzelgebäude sind mit staffelgeschoss geplant und ermöglichen eine zusätzliche dachnutzung. gemeinschaftliche nutzungen sind in form von urban gardening, insektenhotels und halbprivaten sitzbereichen vorge­sehen.

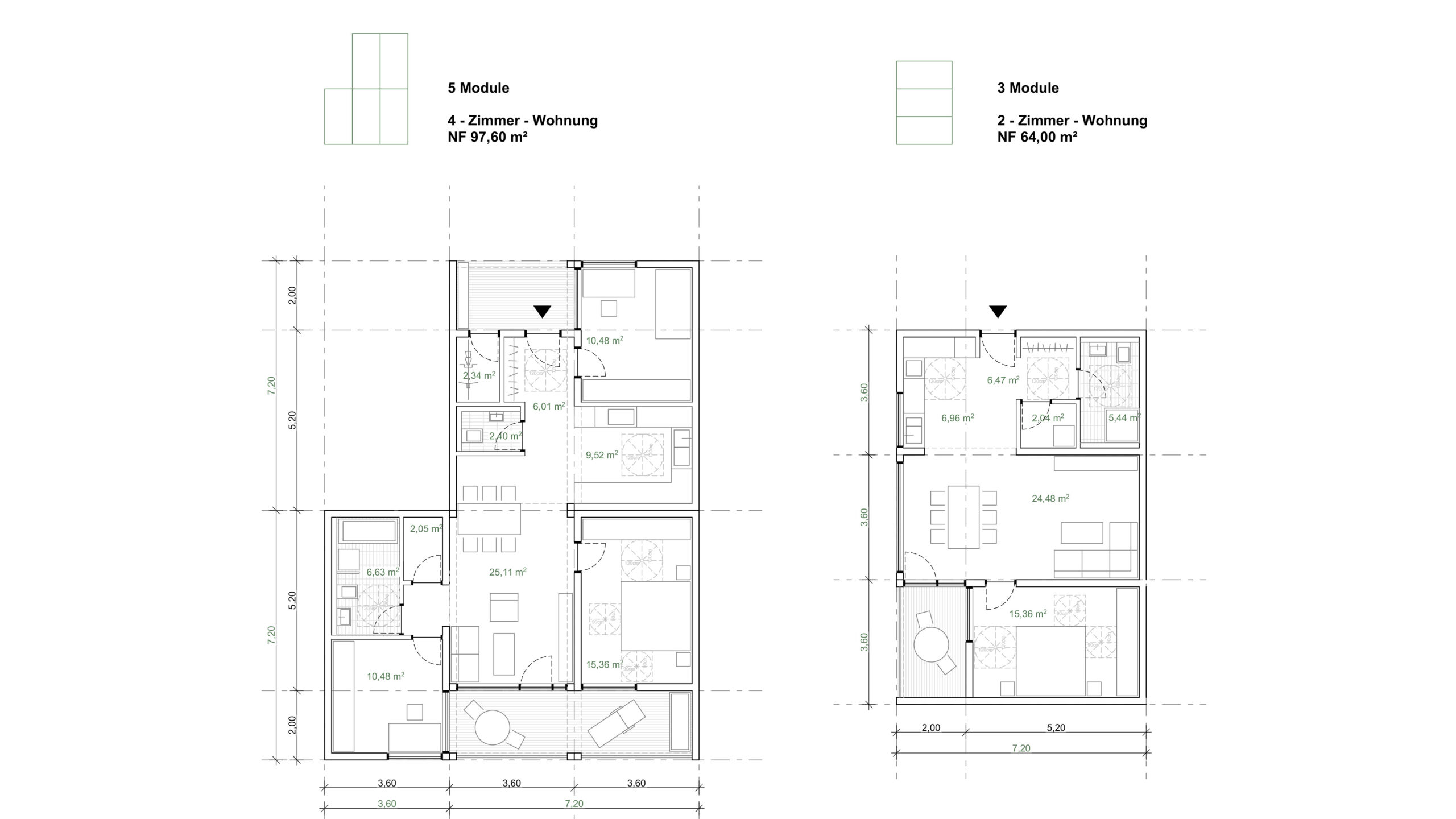
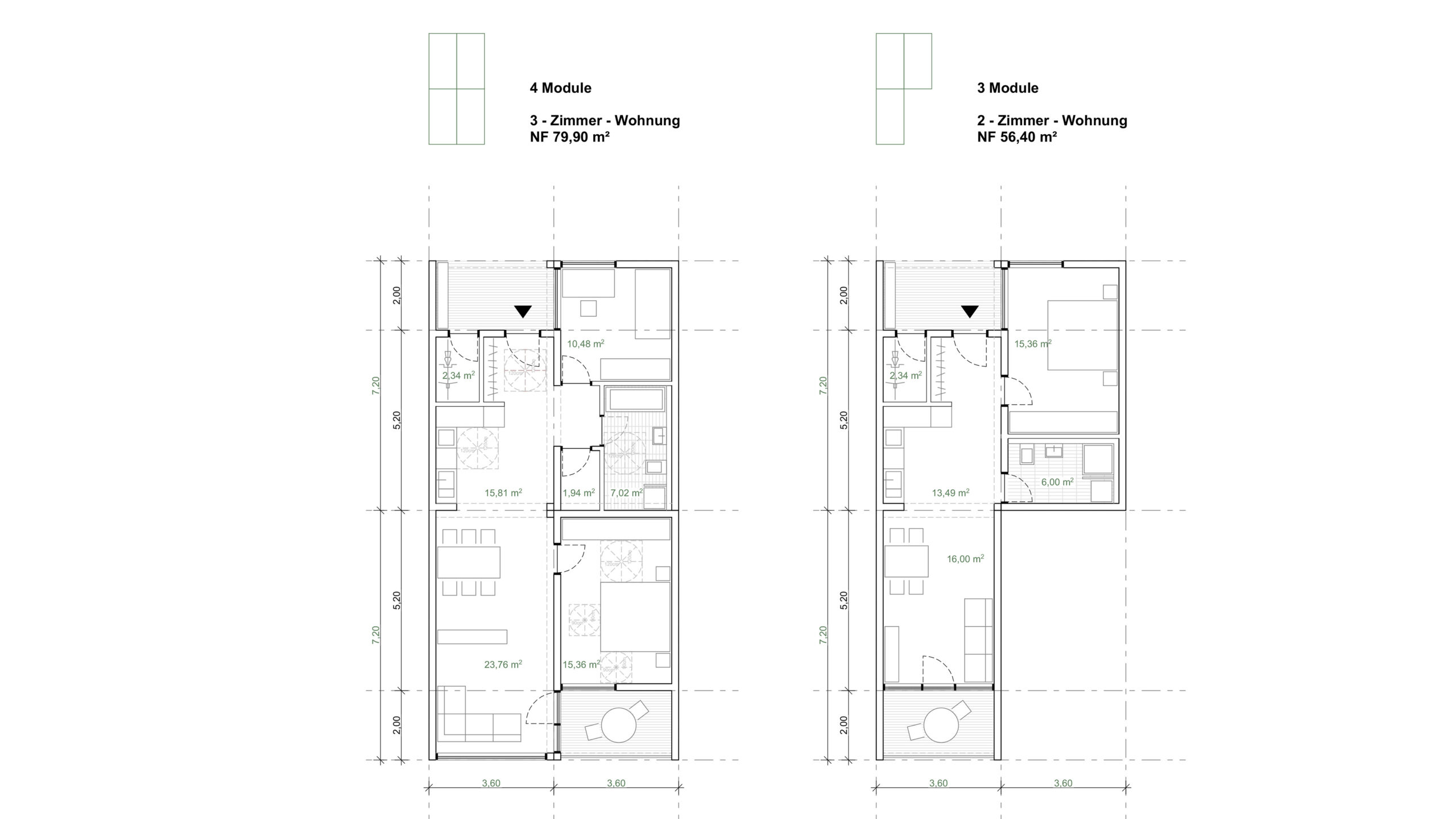
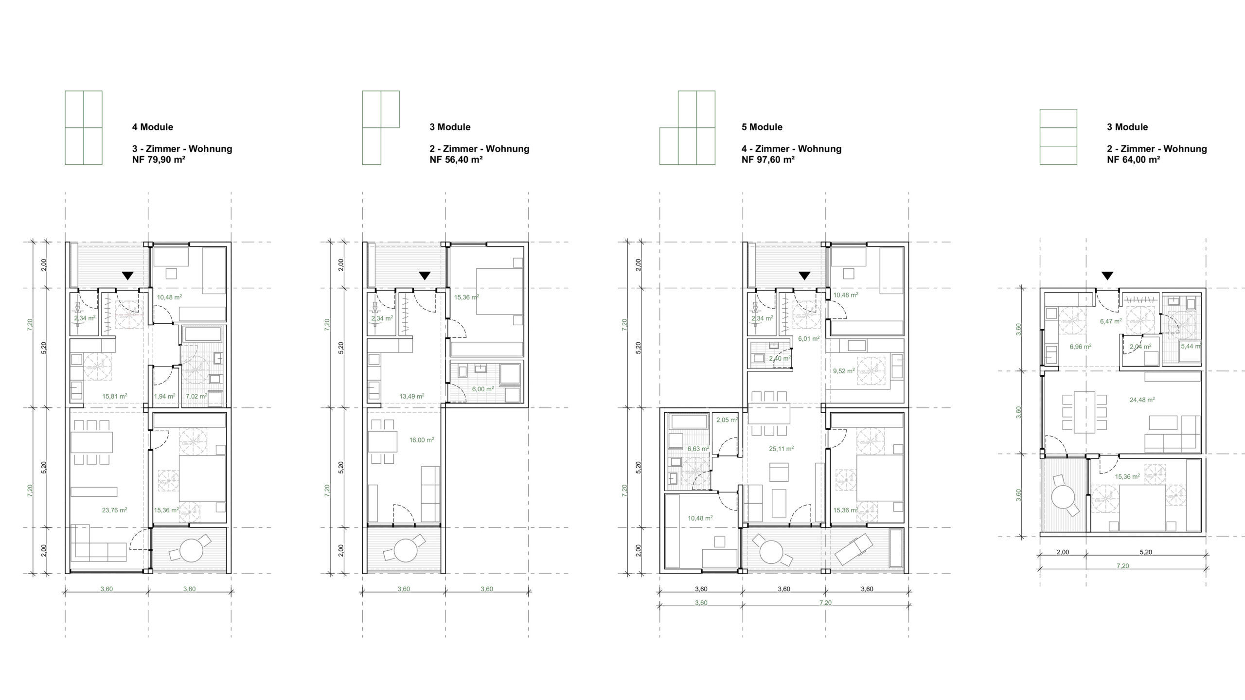
in summe entstehen so insgesamt 49 wohneinheiten, der wohnungsmix um­fasst 1-zimmerwohnungen bis 4-zimmerwohnungen.

eine hochfunktionale, wirtschaftliche, energetisch sinnvolle, gut recycelbare konstruktion wird durch die stahlbetonkonstruktionen für die sockelgeschos­se und die treppenhäuser sowie den holzmodulen der wohnungen erreicht.

die verwendung von recycling-beton ist geplant, nach möglichkeit kann die­ser aus dem abbruch der vorhandenen gebäudesubstanz gewonnen werden.

standort: weißenhorn
wettbewerb: 2022
auslober: FORE GmbH & Co. KG
Nach oben