echo $img['alt'];

wbw meininger allee

neugestaltung der grundstücke südlich der meininger allee mit einer wohn- und gewerbebebauung, neu-ulm
 

der vorschlag zur neubebauung des areals südlich der meininger allee in neu-ulm gliedert sich in eine zweigeschossige tiefgarage, ein durchgängiges sockelgeschoss mit halböffentlichen nutzungen sowie drei hochbauten mit gewerbe- und wohnnutzung sowie einem halböffentlichen innenhof.
nord-westlich orientiert sich der markante straßenseitige 8-geschossige kopfbau zum bahnhof und der innenstadt hin. durch seine höhe bildet dieser den städtebaulichen auftakt zur bebauung „wohnen am glacispark“. im baukörper selbst ist die praxis/klinik über drei geschosse organisiert, auf den weiteren ebenen finden sich gewerbeflächen und penthouse-wohnungen mit münsterblick.
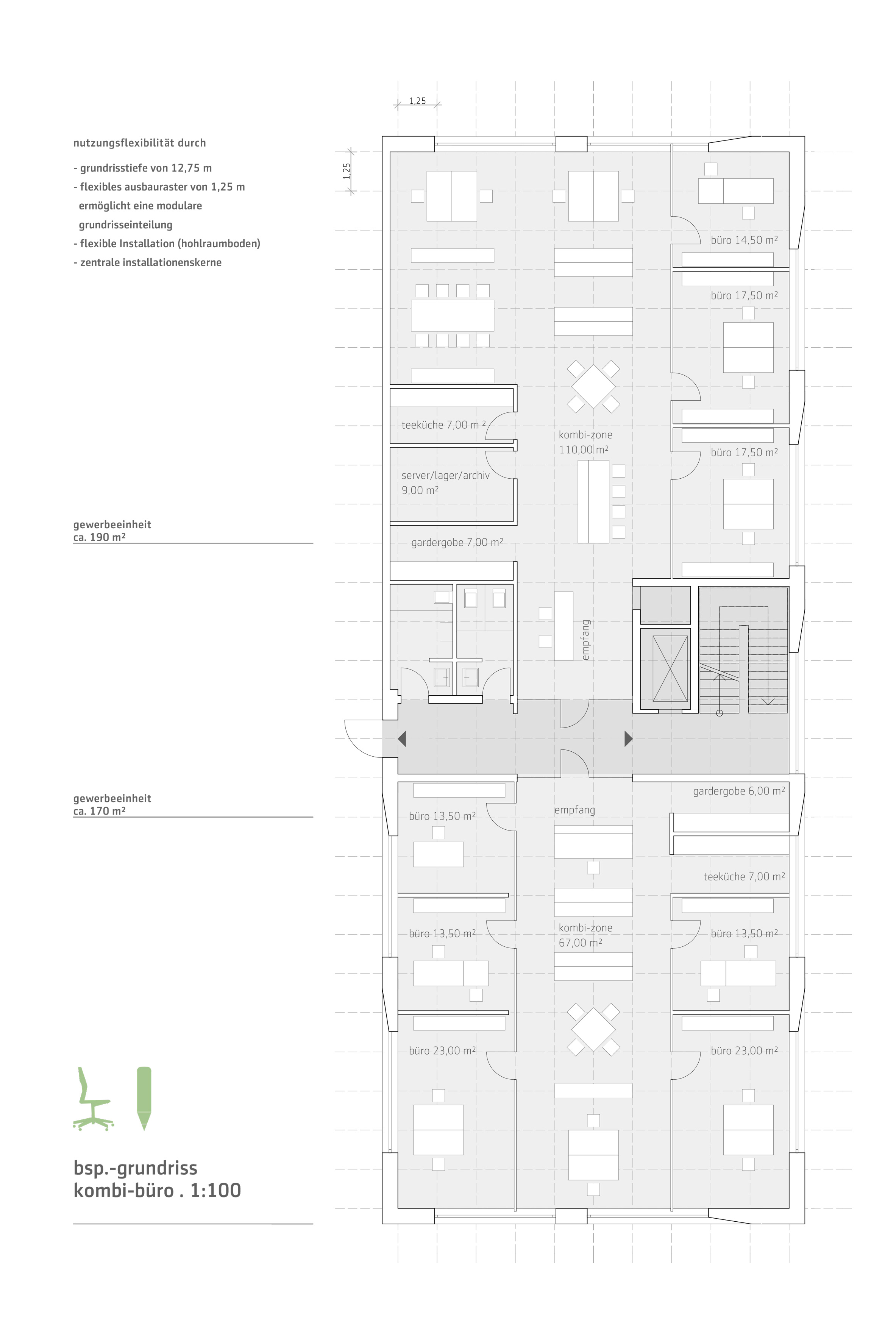
der sechsgeschossige nord-östlich gelegene gewerberiegel vermittelt maßstäblich zur nachbarbebauung und definiert die neue platzkante des theodor-von-hildebrand-platzes. sein flexibles ausbauraster und die flexiblen installationsmöglichkeiten wie z.b. der hohlraumboden lassen unterschiedlichste nutzungen und arbeitsformen zu.
im süden befindet sich, getrennt durch einen halböffentlichen und durchwegbaren innenhof, die zur caponiere und dem glacis-park hin orientierte wohnbebauung mit 4 wohngeschossen. es entstehen dort insgesamt ca. 16 barrierefrei erschlossene wohneinheiten mit offenen fassaden und loggien.
die sockelzone öffnet sich städtisch mit unterschiedlichen nutzungsmöglichkeiten. zum stadtplatz und der caponiere hin orientiert sich die gastronomie mit ca. 120 gastraumplätzen und der außengastronomie. zwei weitere mieteinheiten mit 110 bzw.150m² beleben die sockelzone zusätzlich. entlang der turmstraße sind u.a. die tiefgarageneinfahrt sowie der wirtschaftshof der praxis/klinik angeordnet. ein möglicher krankentransport kann hier ebenerdig erfolgen.
die klar gegliederte lochfassade fasst das gebäudeensemble formal zusammen, durch die geneigten leibungen entsteht ein lockeres spiel in der fläche. zur wohnbebauung hin löst sich die fassade in balkone und loggien auf. der geschützte innenhof als halböffentliche fläche lädt zum verweilen und zusammentreffen ein.

standort: neu ulm
wettbewerb: 2014
auslober: eberhardt immobilienbau gmbh, ulm
Nach oben