echo $img['alt'];

wbw lönsstraße

wettbewerb wohnungsbau, neu-ulm
 

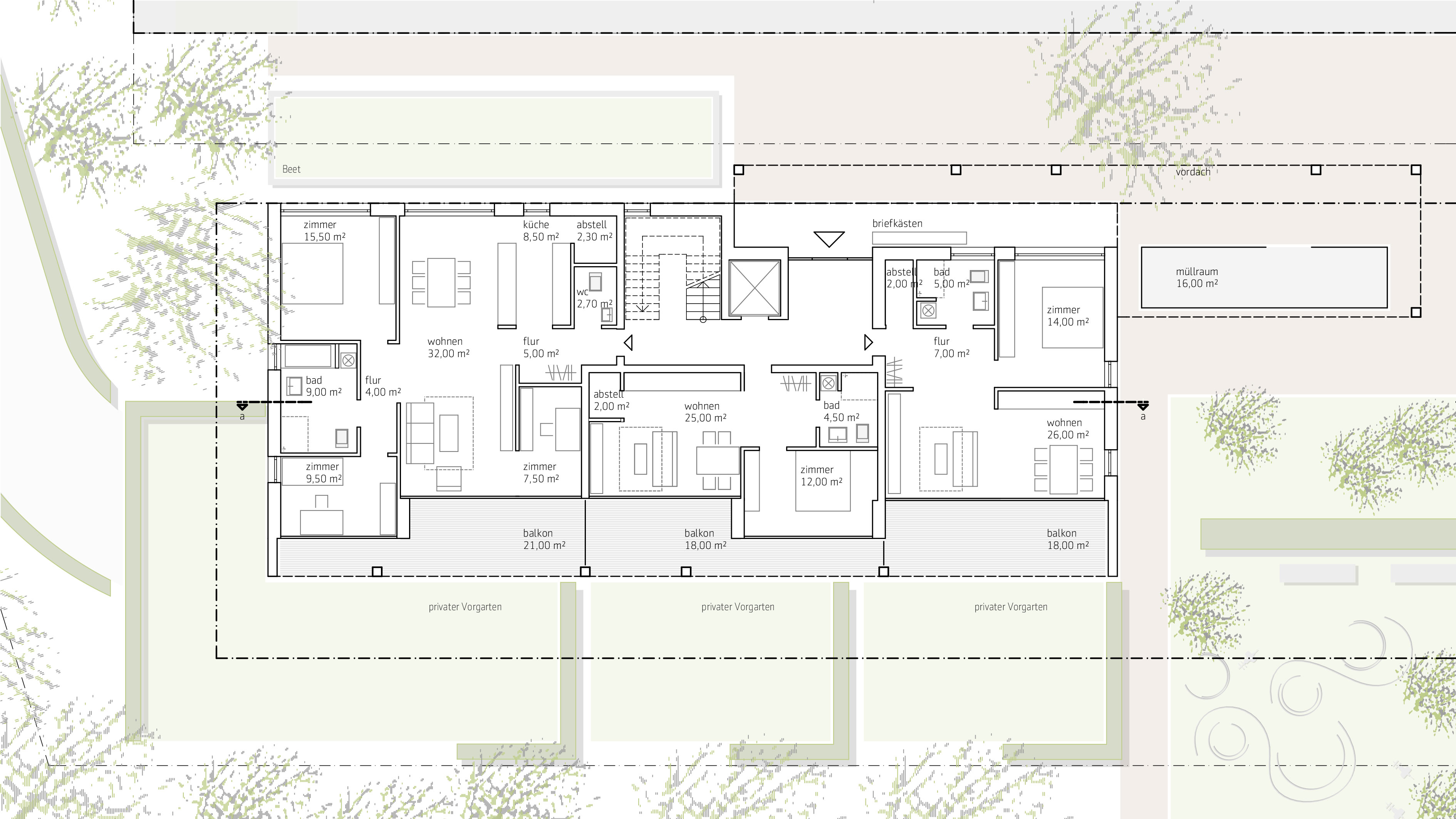
der vorschlag zur neubebauung des baufeldes „lönsstraße“ in neu-ulm offenhausen nimmt entlang der haupterschließungsstraße die vorgegebene baugrenze parallel zur straße auf.
die beiden viergeschossigen baukörper und der verbindungsbau grenzen die privaten freiflächen zur straße hin ab. die privaten wohnräume öffnen sich großzügig zur südseite.
die klar gegliederte lochfassade im norden fasst das gebäudeensemble formal zusammen. zur gartenseite hin und zum öffentlichen grün im süden lösen sich die fassaden in balkone und terrassen auf,
gestalterisch werden sie durch als wohnregal formal gegiedert.           die geschützte grünfläche zwischen den beiden baukörpern lädt als halböffentliche fläche zum verweilen und zusammentreffen ein.

alle wohnungen können barrierefrei erreicht werden.
die haupteingänge liegen im norden und können direkt vom gehweg erreicht werden. über effiziente barrierefreie erschließungskerne werden die wohnungen der beiden gebäude erreicht. haus west ist im eg und im regelgeschoss ein dreispänner, haus ost ist als zweispänner ausgebildet. im untergeschoss sind die tiefgaragen-stellplätze untergebracht, sowie keller- und nebenräume. fahrradabstellplätze sind in der tiefgarage zu finden.

insgesamt entstehen 20 wohneinheiten in größen von 52,50m² – 106,50m². durch großzügige fenster und balkone wird eine optimale belichtung der wohnungen gewährleistet. nahezu alle wohnräume, bäder und küchen sind natürlich belichtet und belüftet. Innerhalb der Grundrisse ist ein hohes maß an flexibilität möglich, um sowohl offene als auch geschlossene Nutzungen zuzulassen. wohnen ist möglichst nach süden ausgerichtet, die neben- und schlafräume nach norden, westen oder osten.

standort: neu ulm
wettbewerb: 2013
auslober: munk bauen & wohnen gmbh
Nach oben