echo $img['alt'];

wbw kita ost

wettbewerb ertüchtigung bestandsbau und neubau als aufstockung, neu-ulm
 

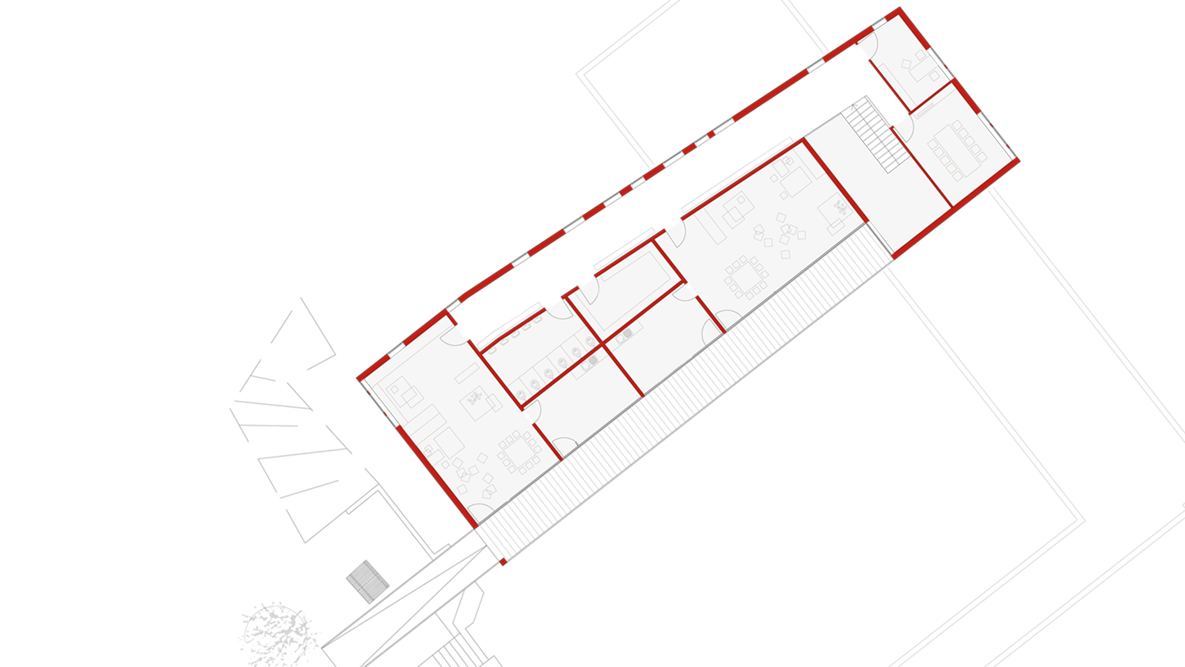
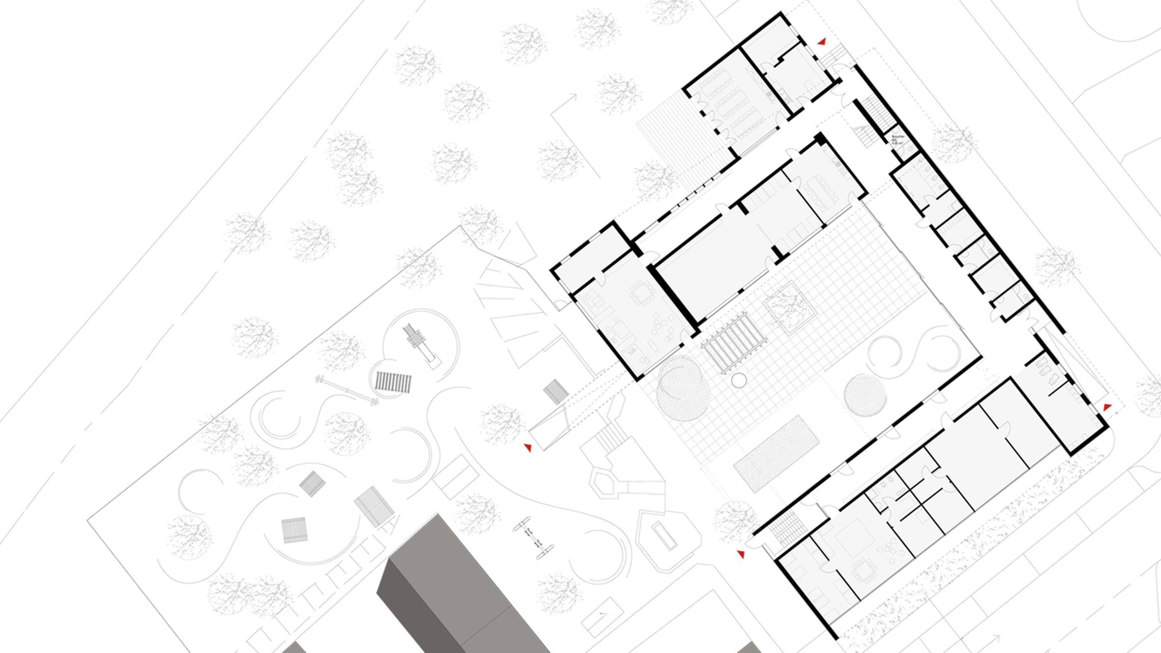
das grundstück und der bestehende kindergarten ist teil einer durchgrünten parkanlage im glacis. die umgebende bebauung weist dem bestehenden kindergarten maßstäblich eine eher untergeordnete rolle zu. die vorgeschlagene orientierung des neuen baukörpers akzentuiert die lage des kindergartens, lässt diesen aus dem straßenraum lesbar werden und leistet einen wichtigen beitrag zur vermittlung der umgebenden baumassen. der bestandsbau wird energetisch ertüchtigt, der bestehende keller verbleibt unverändert. der neubau ist als aufstockung in massivholzbauweise mit vorgehängter fassade aus hpl-platten konzipiert. er markiert durch seine farbigkeit und fassadengestaltung die besondere nutzung als ort der kindlichen erziehung. um eine räumliche trennung zwischen krippen- und kindergartennutzung herstellen zu können, wurde das haus in seiner bisherigen organisation verändert. im bereich der ehemaligen gruppenräume wurden zwei krippen installiert, denen die barrierefreie erschließung über eine rampe zugeordnet ist. beide kinderkrippen orientieren sich zum innenhof hin. die ehemalige krippe wurde zur kindergartengruppe, zwei weitere gruppen sind in der neuen aufstockung untergebracht. die drei kindergartengruppen sind über einen luftraum mit eingestellter treppe miteinander verbunden. die freiflächen werden über die treppe und den innenhof erschlossen, alternativ kann der freibereich über die fluchtrutsche erreicht werden. im freibereich sind alle unbefestigten spielbereiche als stationen ausgebildet – unterschiedlichen spielinseln sind unterschiedlichen funktionen zugeordnet. der überwiegend befestigte hofbereich dient als veranstaltungsort in räumlicher nähe zum mehrzweckraum. neben den befestigten flächen befinden sich sandkästen und der separate spielbereich der kita.

standort: glacis neu ulm
wettbewerb: 2008
auslober: stadt neu-ulm
Nach oben