wbw jörg-syrlin-grundschule und astrid-lindgren schule mit kindergarten
aufgelöste und in der höhe gestaffelte baukörperteile passen sich der umgebenden städtebaulichen körnung an
höhen der baukörper fallen mit der topographie
kindgerechter maßstab der baukörper
vorhandene eingänge werden neu inszeniert und eindeutig erkennbar definiert
lehrerparkplatz wird auf aktuelle containerstellfläche verlegt und vergrößert
verkehrsberuhigte eingangssituation
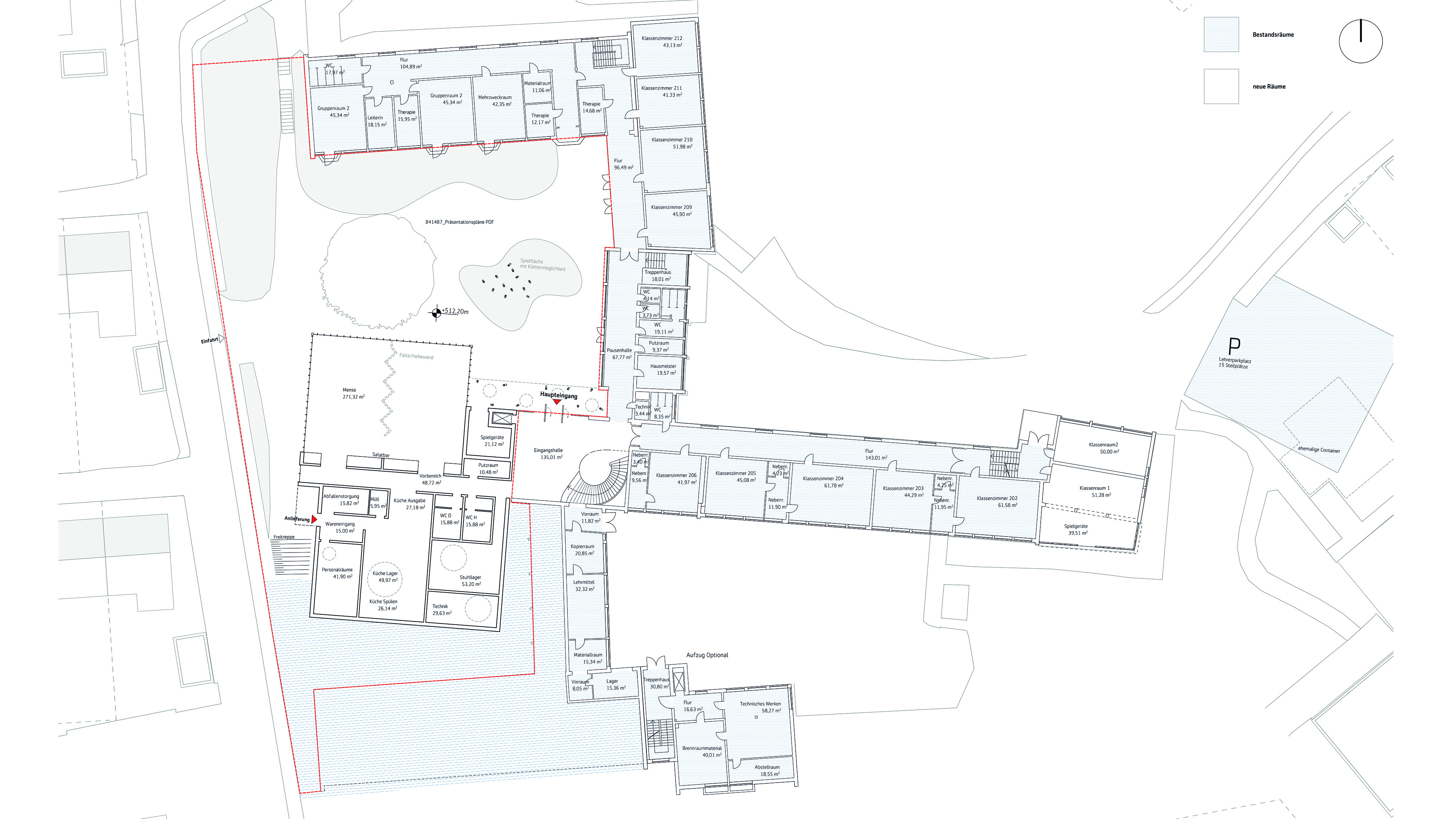
planung einer zentrale verteilerzone zur andienung der unterschiedlichen nutzungsbereiche
ein kopfbau schließt am mittleren gebäudestrang an
anbau zum märchenweg orientiert
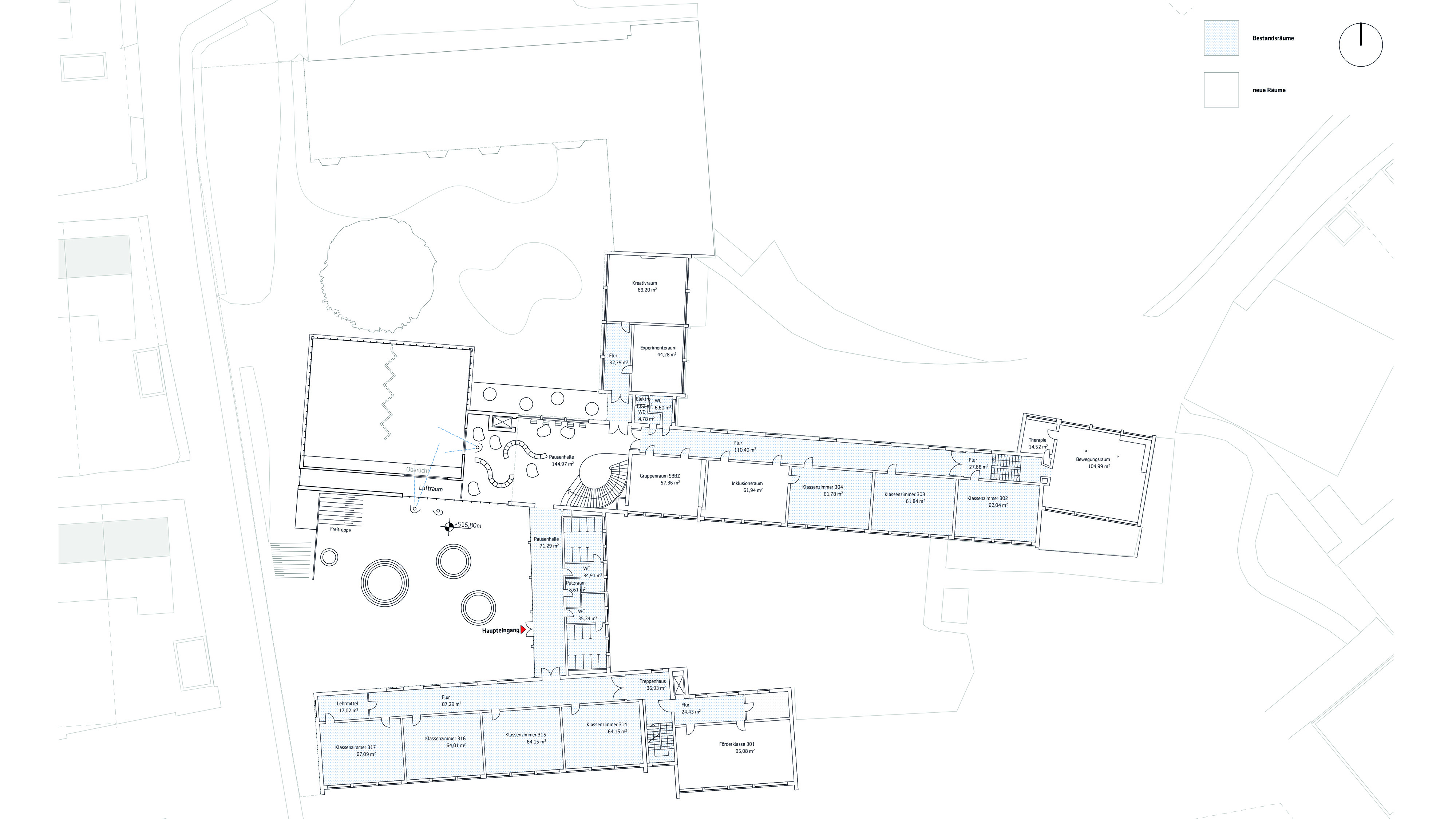
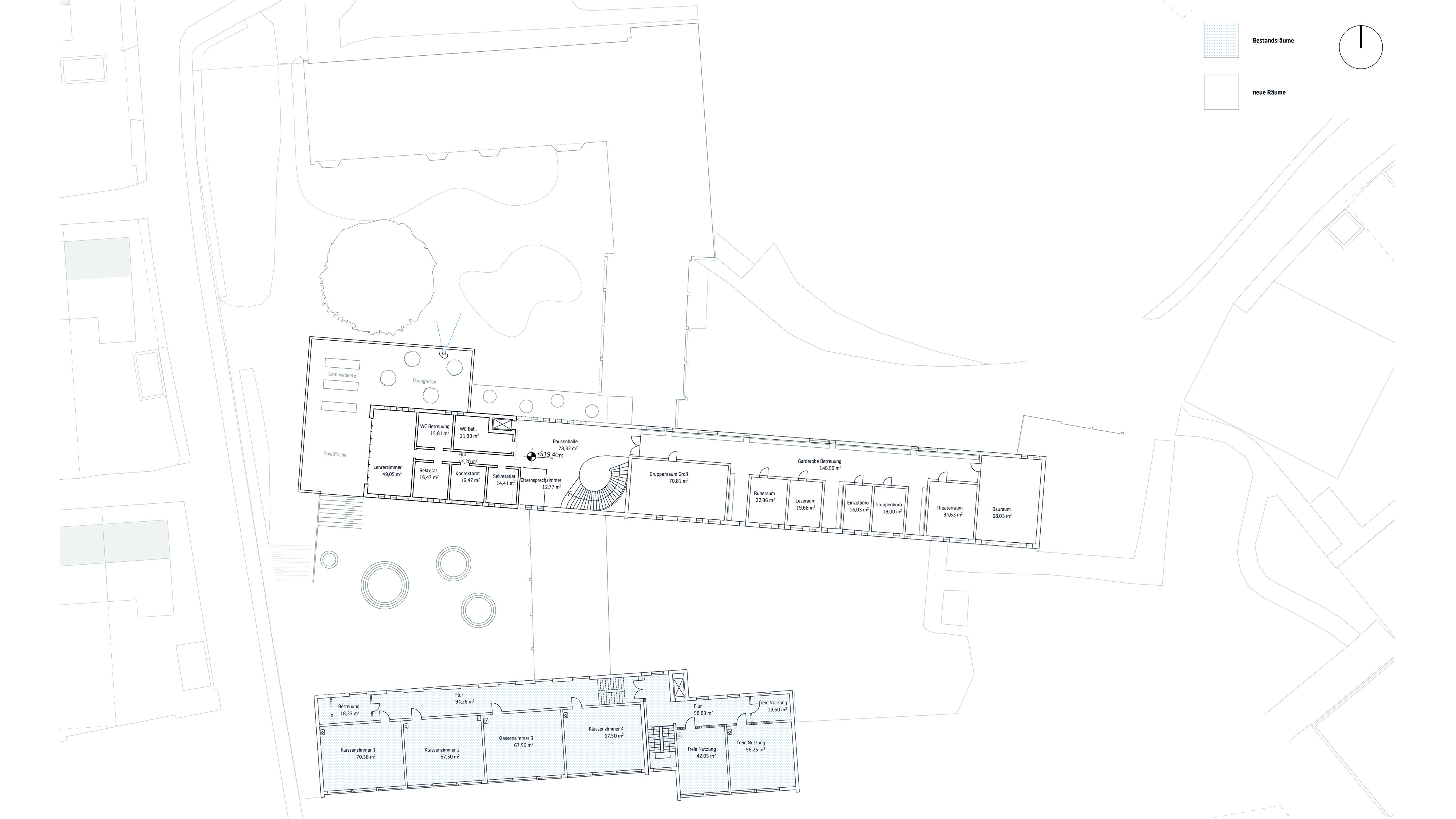
zentraler baukörper wird um ein geschoss aufgestockt und somit in seiner präsenz gestärkt
nutzbare aussenbereiche auf unterschiedlichen höhenniveaus und auf dachteilen der bausubstanz
schulübergreifende begegnungsorte und freiflächen
anbau ohne eingriff in bestand
aufstockung in holzmodulbauweise in kurzem zeitlichen rahmen möglich
container werden nach fertigstellung anbau nicht mehr benötigt
eingriff in den bestand minimiert um einen reibungslosen umbau während laufendem betrieb zu realisieren
baumbestand erhalten
verknüpfung von unterschiedlichen höhenniveaus der freianlagen -> große zusammenhängende pausenhöfe
flachdach als freifläche für kinder nutzbar
aussteifende kernelemente aus eingefärbtem sichtbeton
holzbauweise mit weichen kindgerechten oberflächen – hölzerne akustikdecken, farbig gegliederte böden
vorgehängte hinterlüftete fassade
wettbewerb: 2019
auslober: stadt ulm, zentrales gebäudemanagement
![echo $img['alt'];](https://hochstrasser.com/wp-content/uploads/2020/02/02_header-1.jpg) 
     
                       
                       
                       
                       
                       
                       
                       
                       
                      