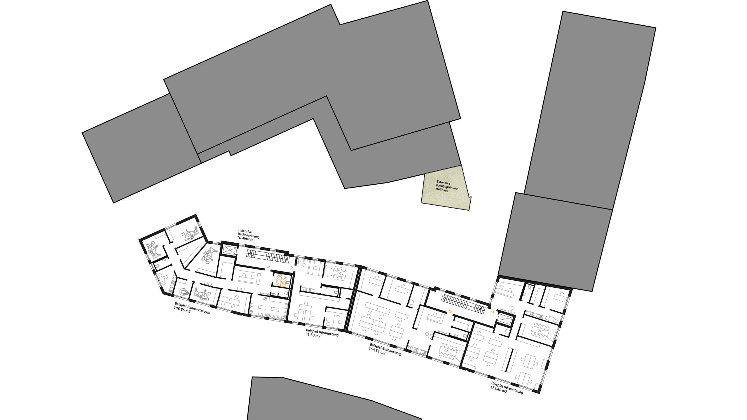
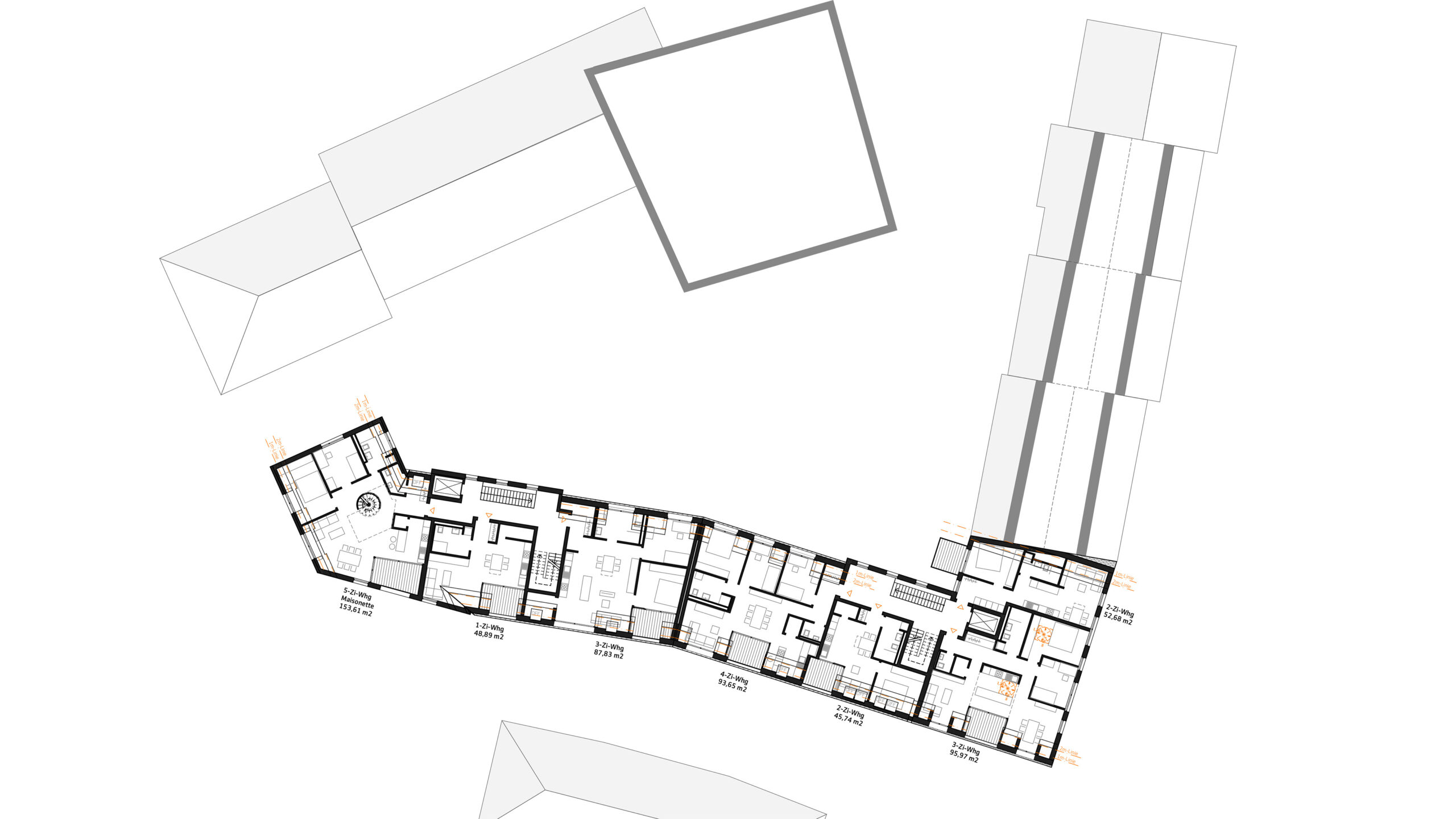
wbw bauliche entwicklung heigeleshof
konkurrierendes gutachterverfahren bauliche entwicklung der grundstücke heigeleshof 2 und wengengasse 27, ulm
standort: ulm
wettbewerb: 2021
auslober: munk bauen & wohnen gmbh
auszeichnungen: anerkennung
wettbewerb: 2021
auslober: munk bauen & wohnen gmbh
auszeichnungen: anerkennung