echo $img['alt'];

wbw erweiterung witec

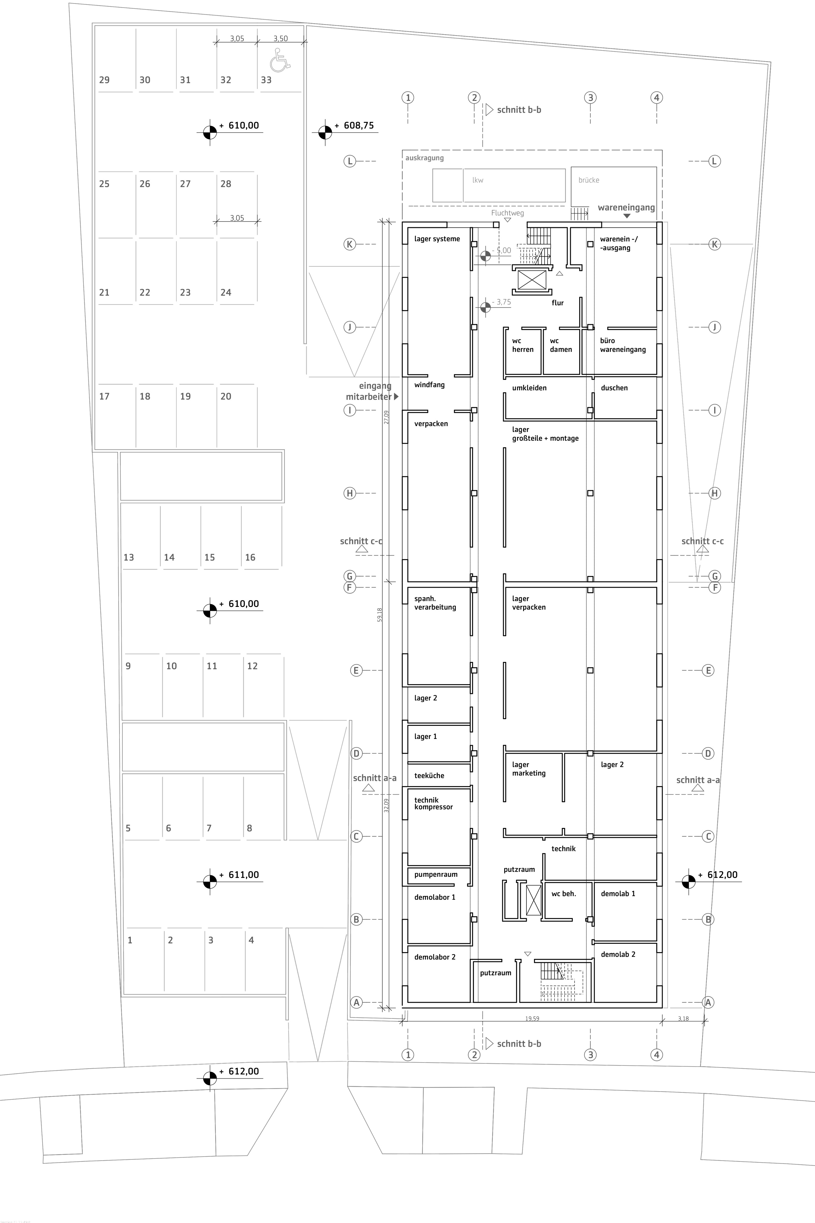
neubau für forschungs- und produktionstechnische zwecke, ulm
 

nutzung vorhandener ressourcen

verbesserung der logistischen anforderungen

einfache wegeführung, trockene anlieferung und verteilung

keine hebevorrichtung mehr notwendig

erweiterung der mitarbeiterparkplätze (trennen von parken und anliefern)

nahtloses erweitern des bestandes in form eines stahlbeton-skelettbaus

kompakter baukörper mit hervorragendem a/v verhältnis

einsparen einer fassadenseite im vergleich zum freistehenden neubau

hoher wiedererkennungswert der firma witec

aufgriff der vorhandenenn optik und haptik

materialien: sichtbeton dunkel, glas, aluminium

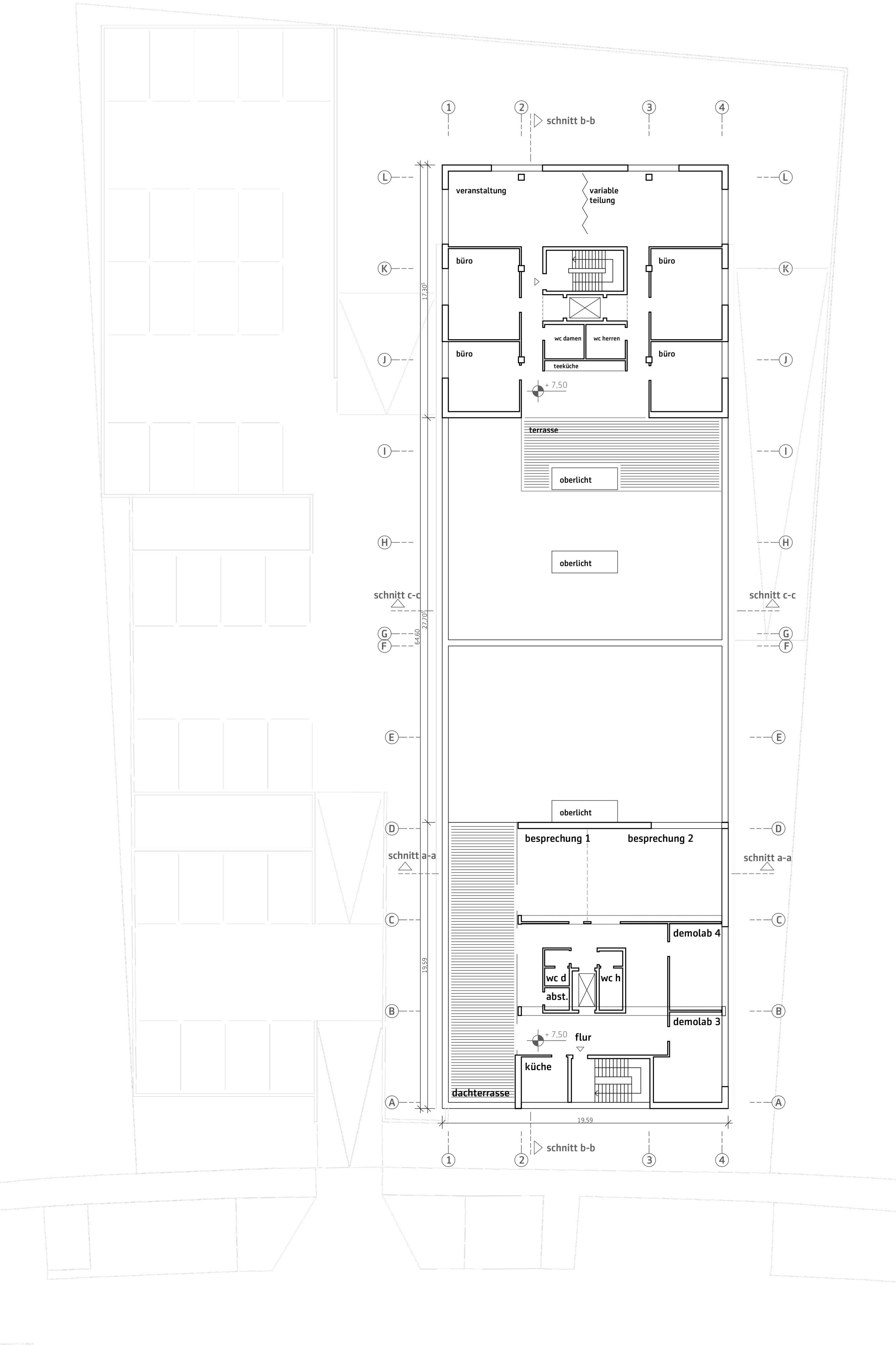
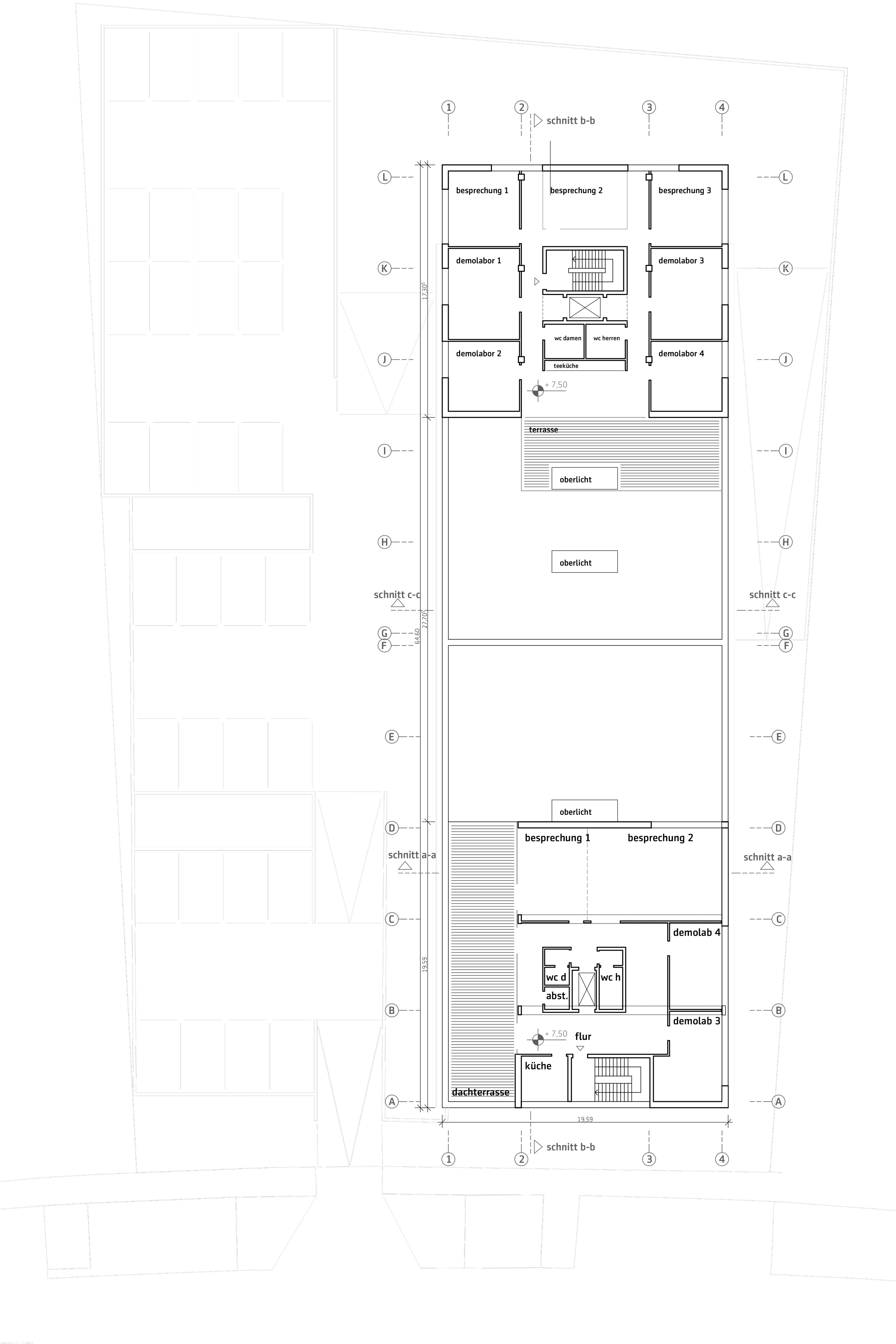
spannende durchwegung mit unterschiedlichen raumzonen

umsetzung der offenen bürostruktur in eine gleichwertige bauliche haltung

transparenter innenraum – lichtdurchflutet

einfache räumliche umstrukturierung möglich

verknüpfung gleicher rauminhalte

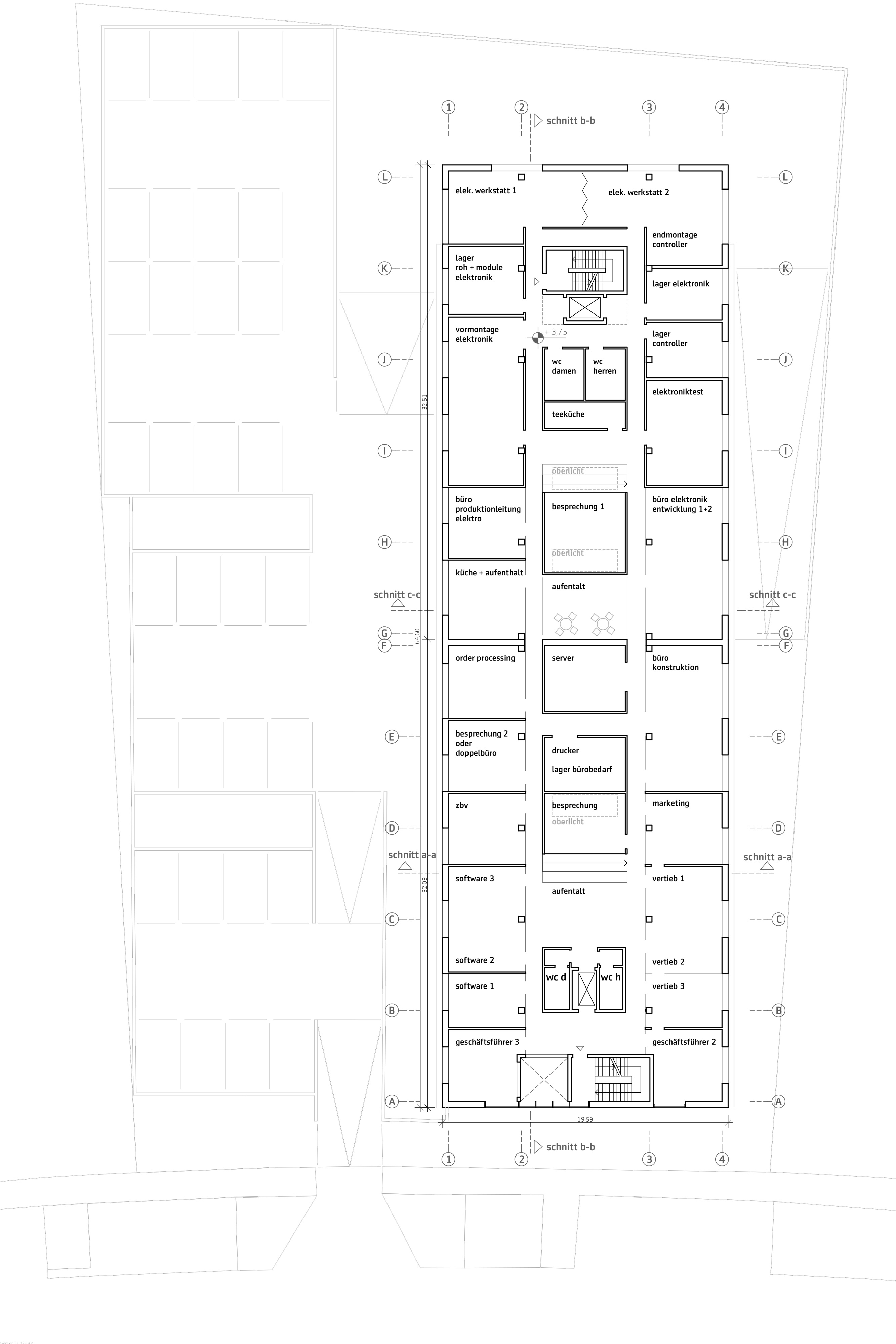
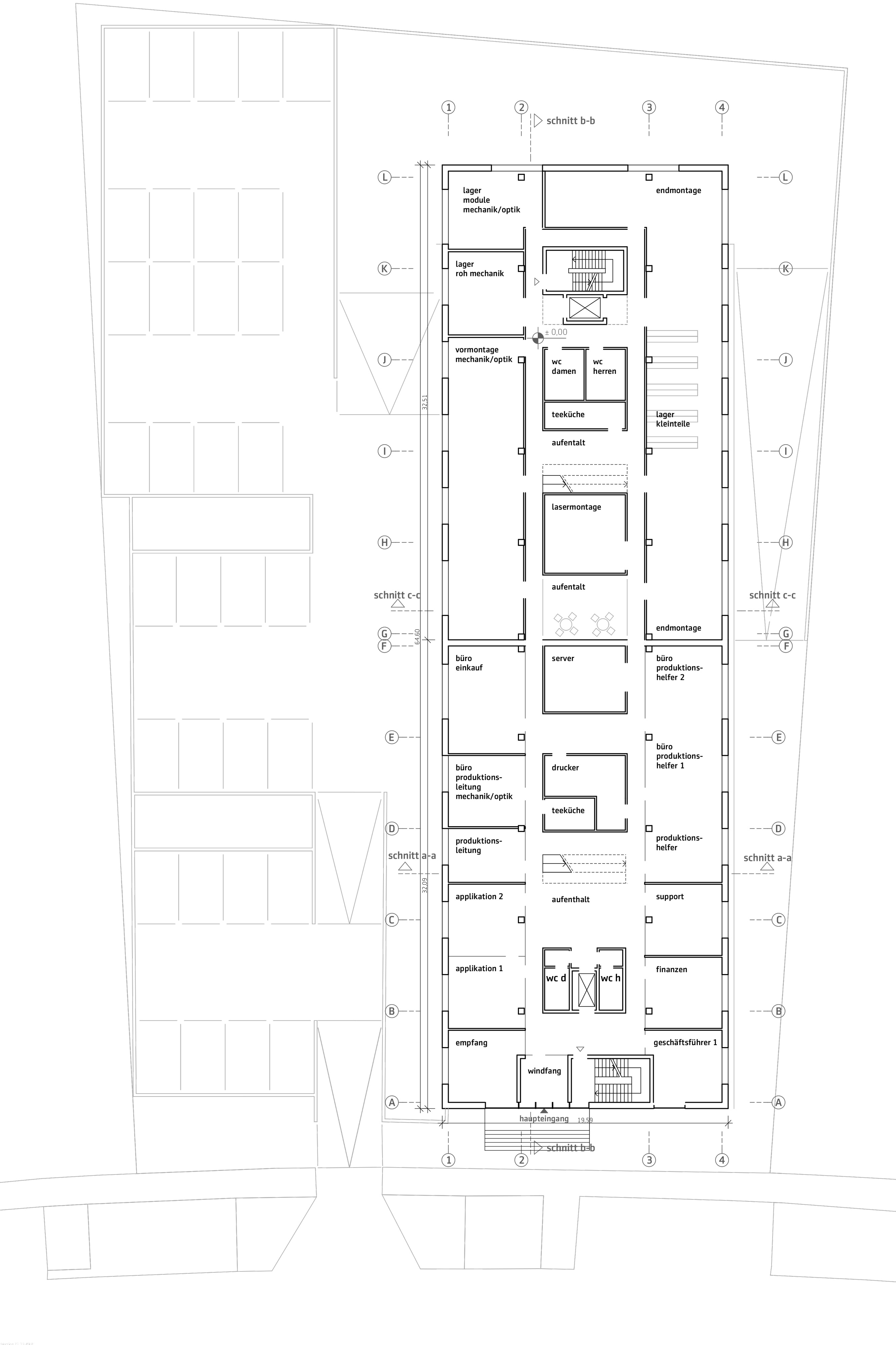
trennung von besucherstrom und produktionswegen

kurze wege zur materialverteilung und von produktionsinternen abläufen

erweiterung als anbau ohne einfluss auf produktion/büronutzung

minimalinvasiver eingriff in bestand nach realisierung anbau

standort: lise-meitner-straße 6, ulm
wettbewerb: 2018
bauherr: fa. witec wissenschaftliche instrumente und technologie gmbh in ulm
auszeichnungen: 2.platz
Nach oben