echo $img['alt'];

wbw entertainment center

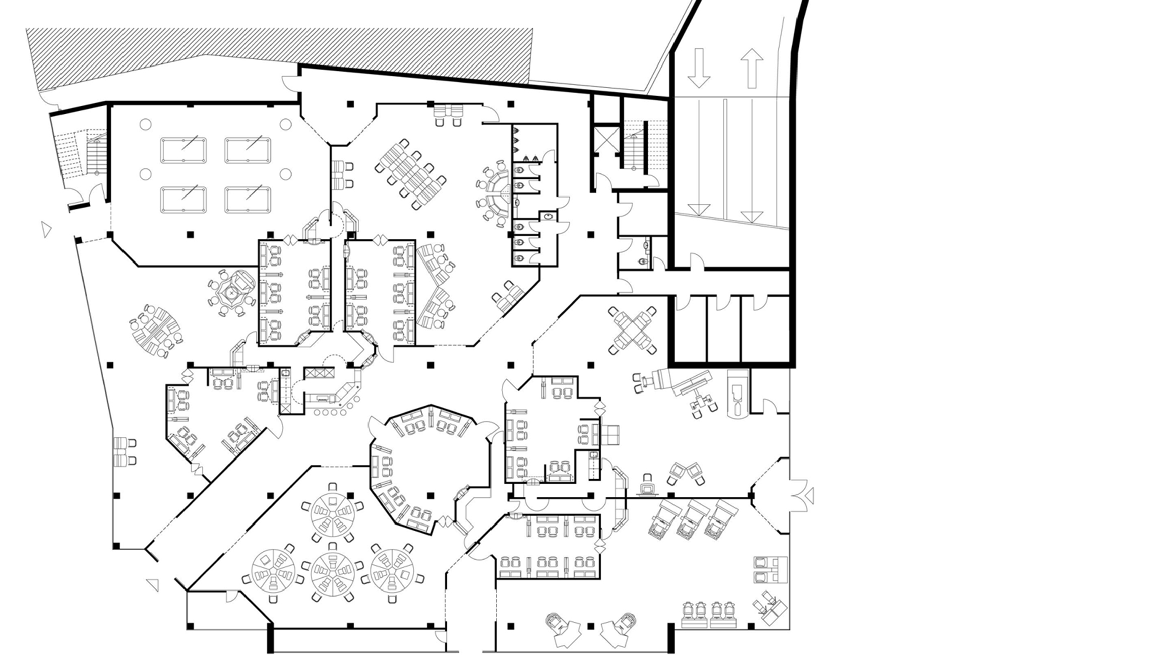
wettbewerb entertainment center mit angeschlossenem parkhaus, neu-ulm
 

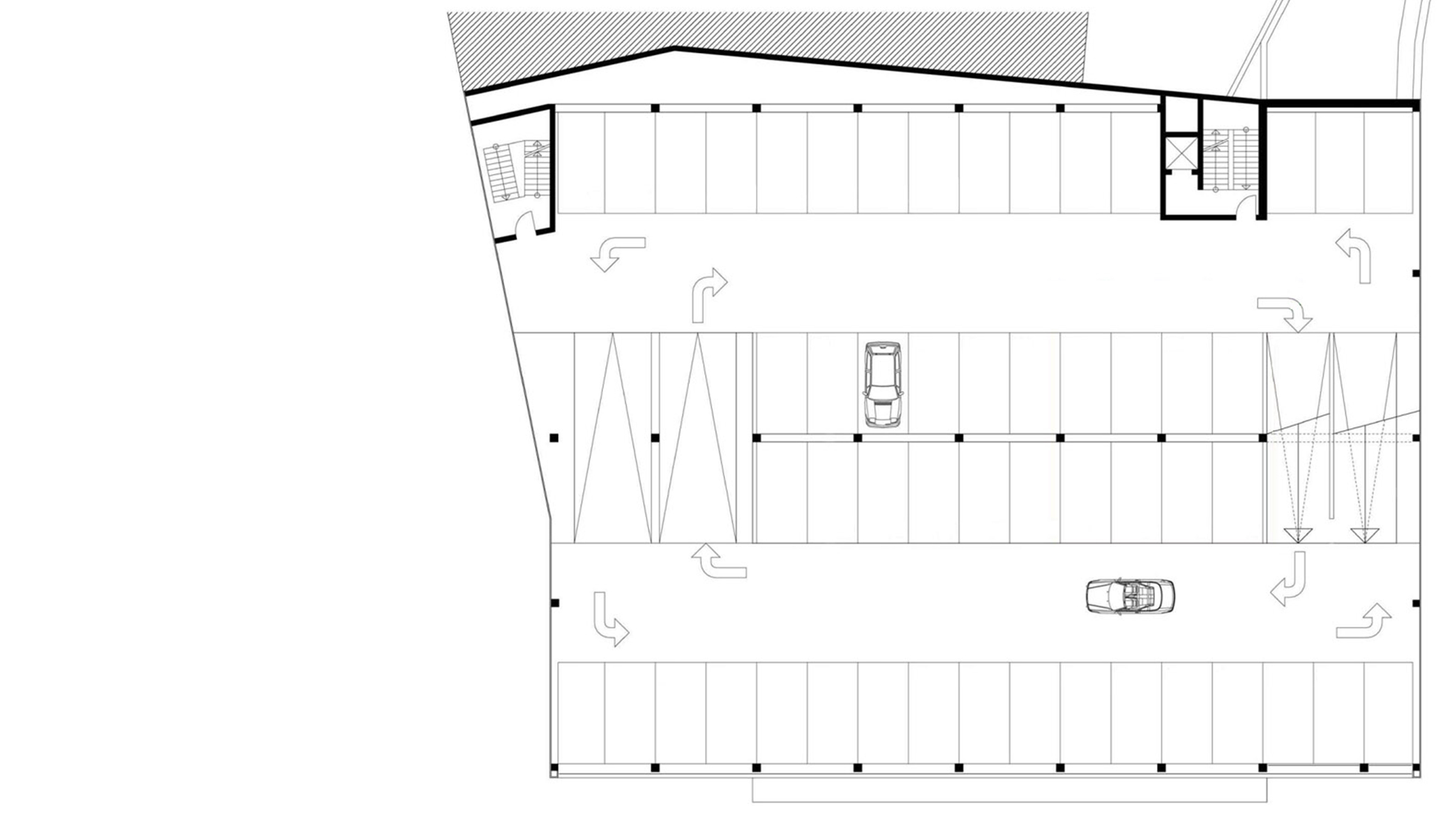
ein bundesweit aktiver betreiber von spielhallen beabsichtigte auf dem ehemaligen mayer-areal ein entertainment center mit angeschlossenem parkhaus zu errichten. die exponierte lage des grundstückes bildet das portal zur stadt neu-ulm und definiert die raumkanten des verkehrsknotenpunktes. die innenstadt findet hier ihren abschluss. der entwurf öffnet die parkhausfassade zum augsburger tor platz hin und macht die innere organisation mit den halbgeschossig versetzten rampen ablesbar.
das vollverglaste sockelgeschoss trägt den skulpturalen baukörper der parkdecks. um einblicke nur dort zuzulassen, wo dies gewünscht ist, ist die verglasung transparent und teilweise mattiert geplant und eignet sich als informations- und werbemedium. der in die glasfassade eingestellte baukörper markiert den platzseitigen zugang. der erhöhte parkhauskörper ist an ost- und westseite mit geschlossenen aluminiumpaneelen verkleidet. die nordfassade, das gesicht zur stadt, besteht aus mattiertem glas und ist mit edelstahlgewebe verkleidet.
die fassade wirkt städtisch und lässt über entsprechende beleuchtung ein spannendes spiel zwischen innen- und aussenraum entstehen.

standort: neu-ulm
wettbewerb: 2004
auslober: merkur-spielothek gmbh
Nach oben