echo $img['alt'];

wbw bürogebäude wilken

wettbewerb bürogebäude wilken gmbh, ulm
 

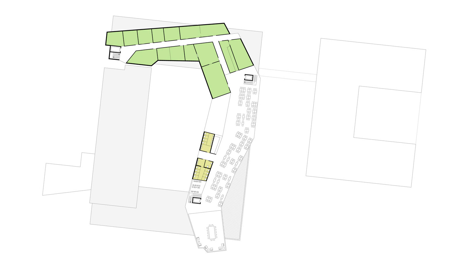
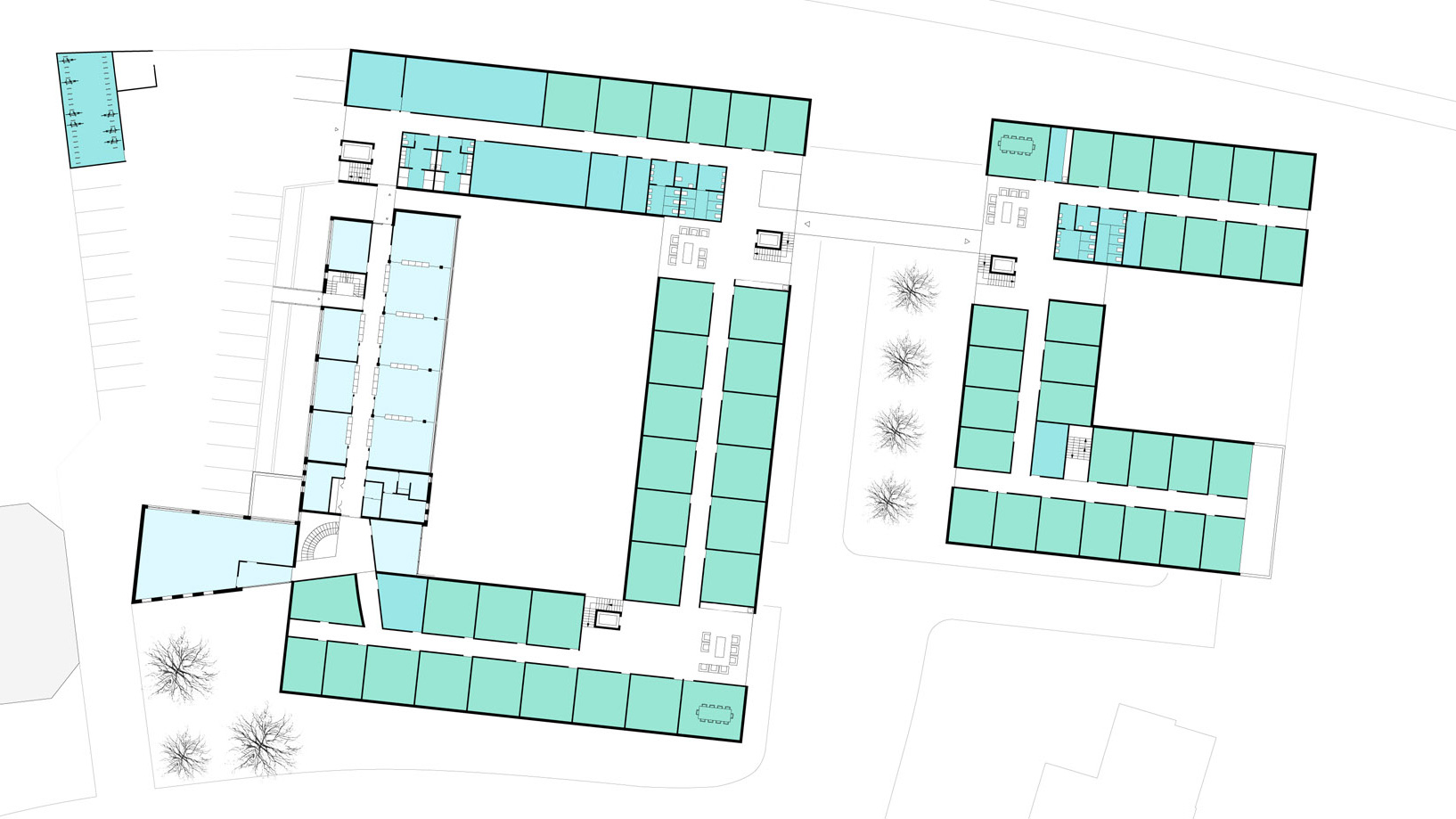
leitmotiv des entwurfs ist die verbindung von natur und technik. die innenhofgestaltung greift dieses thema bildlich auf. der kräutergarten stellt abstrakt die symbiose von natur und technik dar. die natur in form der pflanzbeete wird durch die an leiterbahnen erinnernden verbindungswege gerahmt. die freiform des sich auf dem dach befindenden restaurants nimmt das motiv der leiterbahn wieder auf.
das bürogebäude wird als diffusionsoffener holzbau konzeptiert. wobei ein hoher vorfertigungsgrad fokussiert wird.  der nachhaltige und natürliche baustoff schont die umwelt durch einen geringen notwendigen primärenergieeinsatz und schafft ein qualitativ hochwertiges arbeitklima. zudem lässt sich die bauphase durch holz und den einhergehenden hohen vorfertigungsgrad von wänden und decken wie bei keinem anderen material extrem verkürzen.

standort: ulm
wettbewerb: 2010
auslober: wilken gmbh, ulm
Nach oben