echo $img['alt'];

unterkunftsgebäude s

neubau albkaserne, stetten a.k. markt
 

basierend auf einer bestehenden entwurfs- und genehmigungsplanung wurden die architekten nach einem vof – verfahren 2013 für die werkplanung, ausschreibung, vergabe und bauleitung beauftragt. die beiden neuen gebäude sind auf bestehenden kellergeschossen aufgebaut. im fall des gebäudes s1 wurde der erdgeschoss–bestand teilweise in den neubau integriert.

zur herstellung der erdbebensicherheit wurden beide untergeschosse statisch ertüchtigt. angrenzende erdüberdeckte bunkeranlagen wurden zurückgebaut.

bedingt durch die hohe schadstoffbelastung des bestandes sowie dem höchst sensiblen it–knotenpunkt im gebäude s1 ist der abbruch als selektiver rückbau erfolgt. aufgrund von mangelhafter bausubstanz musste im gebäude s1 eine betonsanierung der decke über dem untergschoss erfolgen.

bei den neubauten handelt es sich um massivbauten. tragende bauteile sind aus stahlbeton und mauerwerk erstellt. das dachgeschoss ist als aufgeständerte leichtbau-holzkonstruktion mit pultdach ausgeführt.

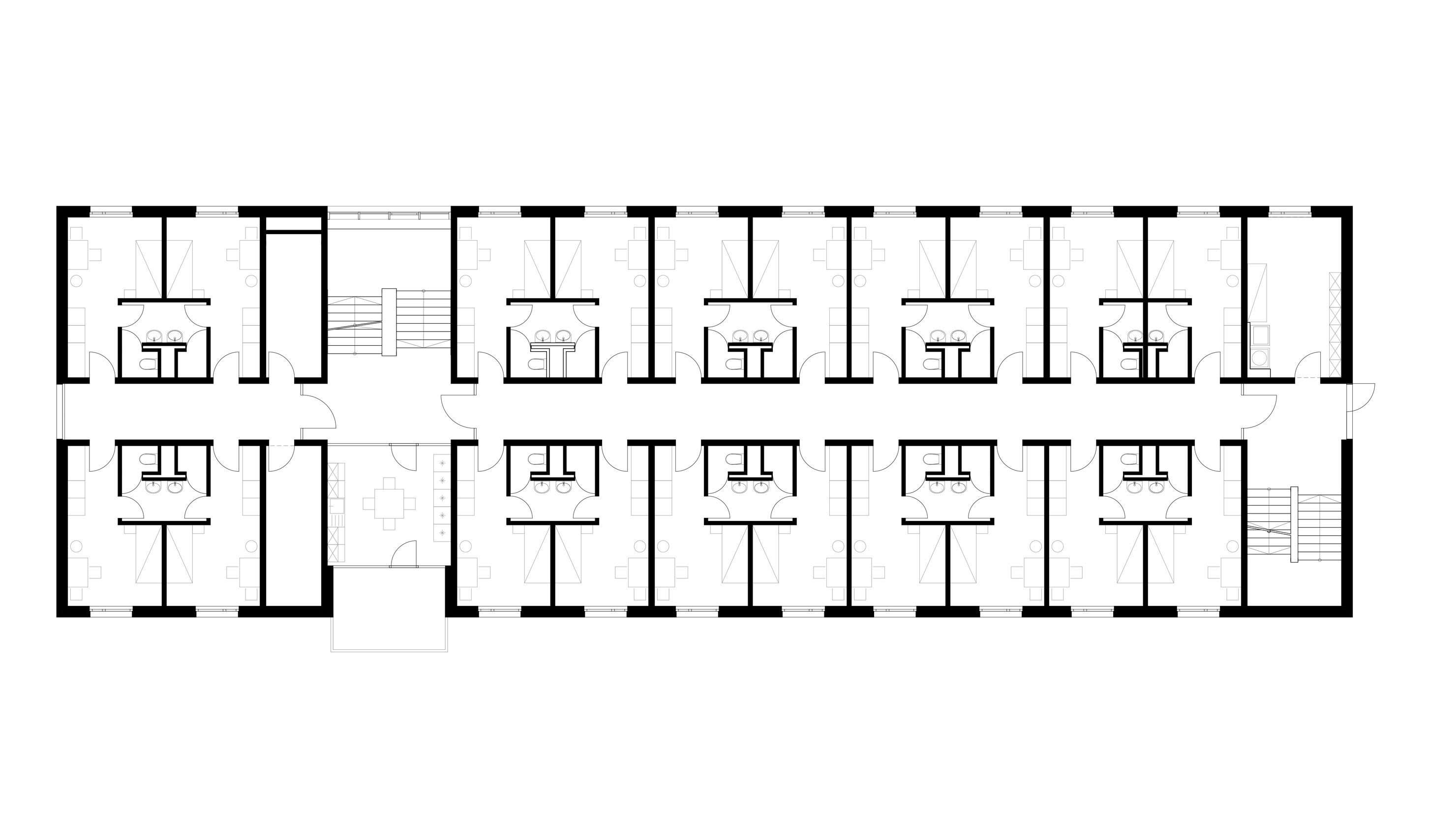
die beiden 3-geschossigen gebäude beinhalten insgesamt 122 zimmer die als 2-spänner erschlossen werden. im gebäude s1 befinden sich sicherheitsräume, die besonderer baulicher behandlung bedurften.

standort: stetten a.k. markt
fertigstellung: 2016
bauherr: staatl. hochbauamt reutlingen
Nach oben