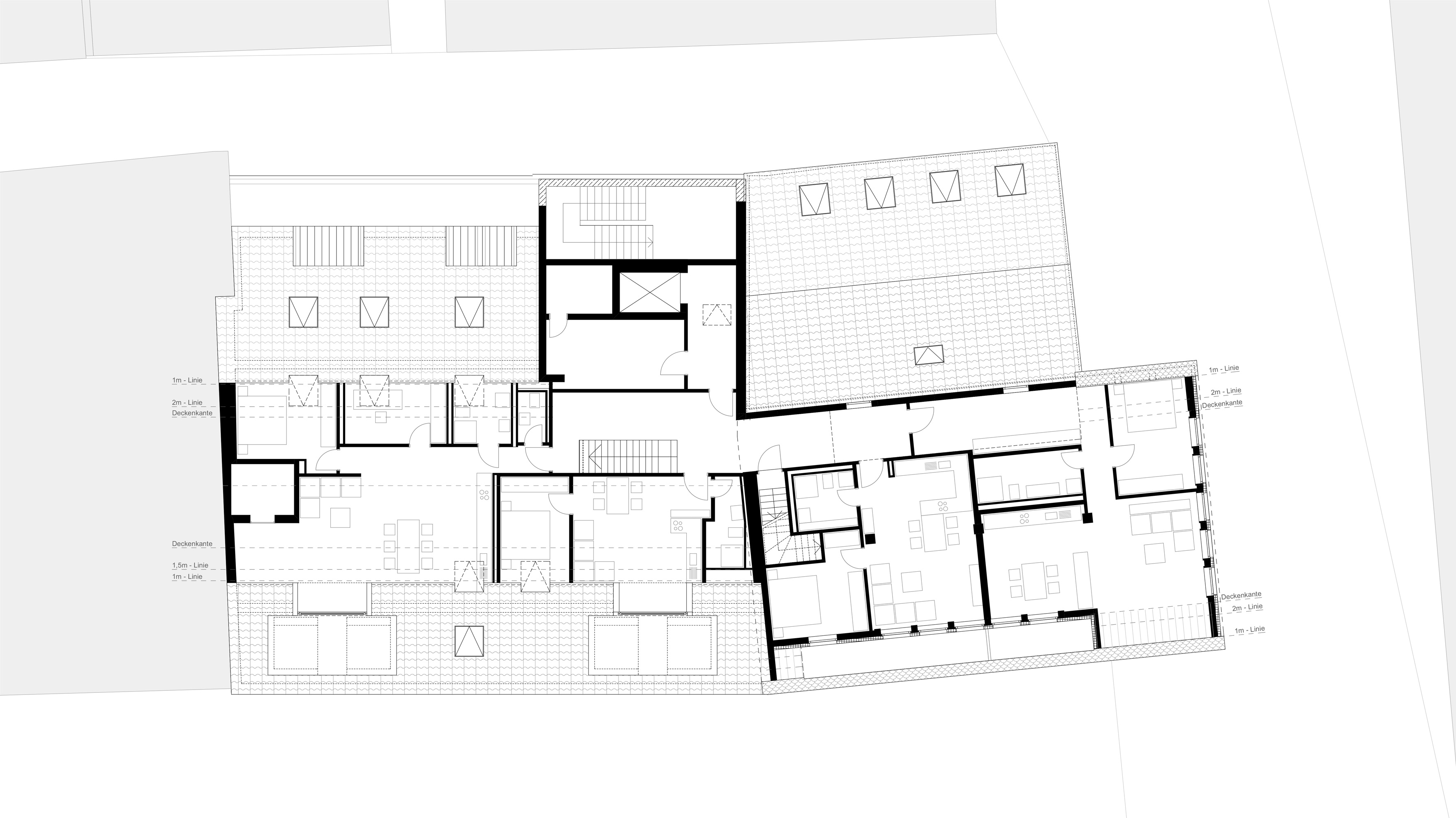
umbau neue straße | wohnungsbau
kernsanierung und ausbau einer innenstadtlage 3.og - dg
standort: ulm
fertigstellung: 2017
bauherr: privat
fertigstellung: 2017
bauherr: privat