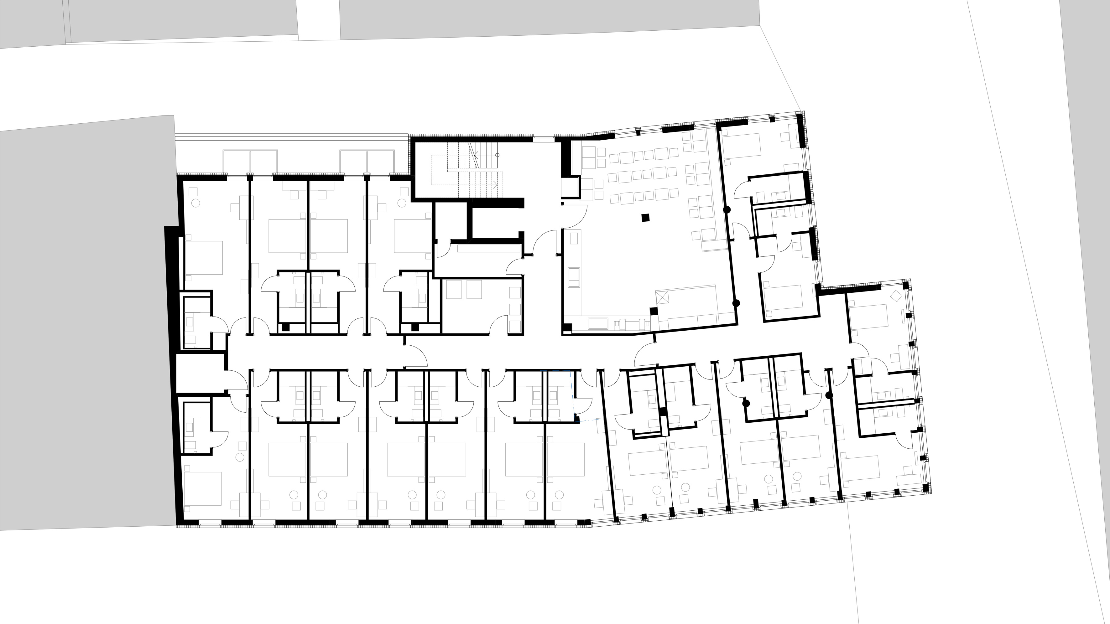
umbau neue straße | barfüßer und riku hotel
kernsanierung und ausbau einer innenstadtlage zu gastronomie und hotel
standort: ulm
fertigstellung: 2017
bauherr: privat
fertigstellung: 2017
bauherr: privat