sanierung vh ulm
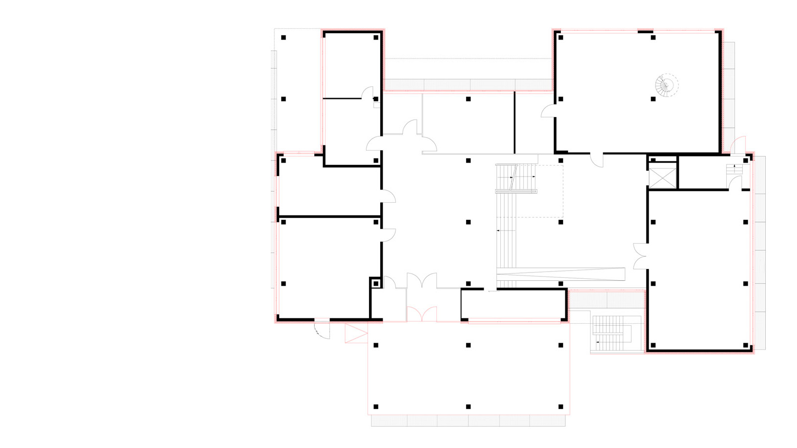
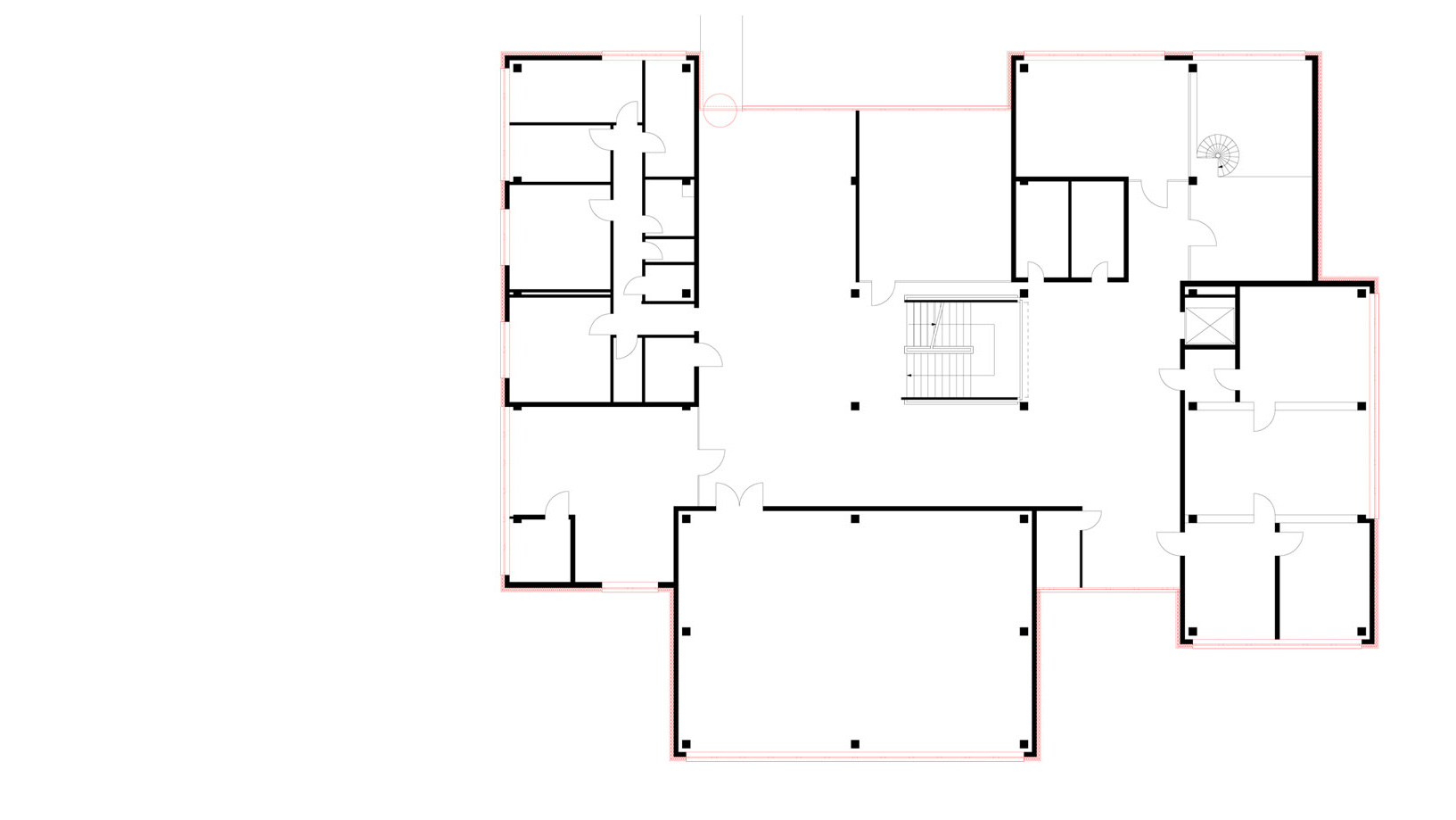
das gebäude der ulmer volkshochschule, das einsteinhaus am kornhausplatz, wurde 1968 im stil des ulmer funktionalismus fertig gestellt. es bietet in den verschiedensten räumen platz für tagungen und konferenzen und in den großzügigen foyers platz für ausstellungen, präsentationen und feste. das gebäude spielte seit jeher eine tragende rolle für die ulmer gesellschaft. legendär wurde dabei der „club orange“ als größter veranstaltungsraum. das dreigeschossige gebäude ist durch splitlevelgeschosse mit offenem treppenraum und großen foyers sehr großzügig gestaltet. der hellbeige teppich, die weißen paneeldecken und die treppenelemente aus sichtbeton zeugen vom zeitlosen stil des ulmer funktionalismus. das minimalistische äußere mit weißen fassadenplatten, schwarzen sonnenschutzbügeln und kubischen formen ist typisch für diesen baustil. als wichtiger zeitzeuge dieses stils wurde das gebäude zwischenzeitlich zum denkmal ernannt. 2010 wurde über eine energetische sanierung entschieden, die nach den energetischen bestimmungen der stadt ulm durchgeführt werden sollte. so musste auf die bisherigen schiebefenster, wie sie im bestand verbaut waren, verzichtet werden. die asbesthaltige fassade und dämmung wurde vollständig entfernt und aus gestalterischen gründen durch eine fassade aus pulverbeschichteten aluminiumkassetten ersetzt. um schärfere kanten zu erhalten, wurden die schwarzen sonnenschutzbügel und fensterprofile eloxiert. im innenbereich wurden sämtliche abgehängte paneeldecken erneuert. der teppich wurde als sonderanforderung in originalfarbe gewoben. wichtiger bestandteil der sanierung war die verbesserung der fluchtwegsituation durch einen fluchtsteg zum nachbargebäude.
fertigstellung: 2010
bauherr: stadt ulm, zentrales gebäudemanagement
auszeichnungen: "beispielhaftes bauen alb-donau-kreis und ulm 2007 bis 2013"
![echo $img['alt'];](https://hochstrasser.com/wp-content/uploads/2010/12/02_header.jpg) 
     
                       
                       
                       
                     			 
                       
                       
                       
                       
                       
                       
                       
                      