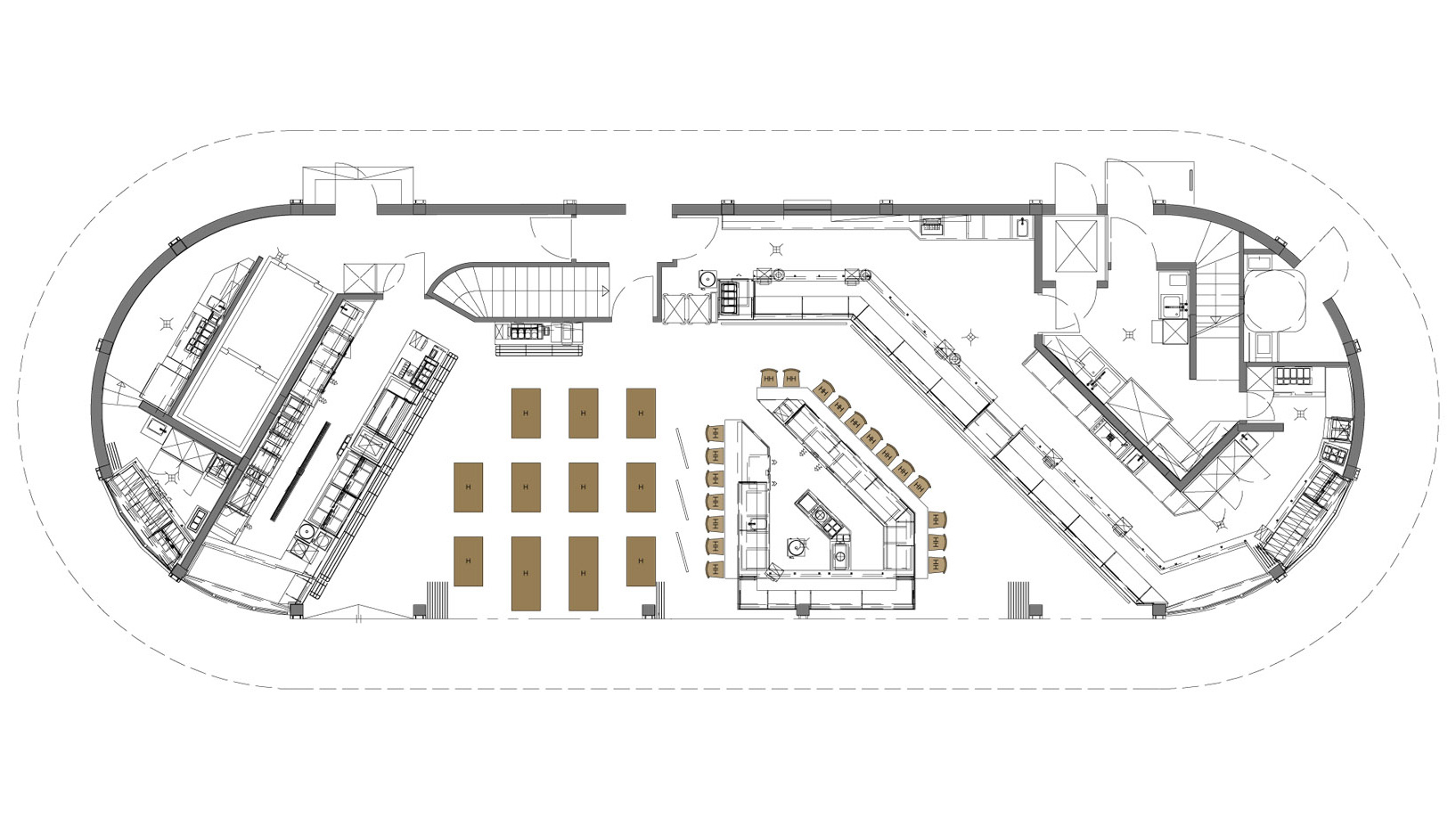
nordsee am viktualienmarkt
nordsee flagship–store am viktualienmarkt, münchen
umbau und erweiterung der allerersten nordsee filiale überhaupt. das gebäude wurde nachträglich unter beibehalteung des bestandgebäudes unterkellert. dies wurde mittels hdi–hochdruckbetoninjetionsverfahrens inmitten des extrem belebten viktualienmarktes bei beengten baustellenverhältnissen und erschwerter baustellenbeschickung in einer bauzeit von nur 16 wochen umgesetzt. zum leistungsumfang gehörte der gesamte umbau des gebäudes mit neukonzeption der innenräume und des shop-designs bei nur minimalen eingriffen in die äussere gestaltung.
standort: münchen
fertigstellung: 2009
bauherr: nordsee fisch spezialitäten gmbh
fertigstellung: 2009
bauherr: nordsee fisch spezialitäten gmbh