kita illerblick
neubau einer eingruppigen kindertagesstätte, ulm
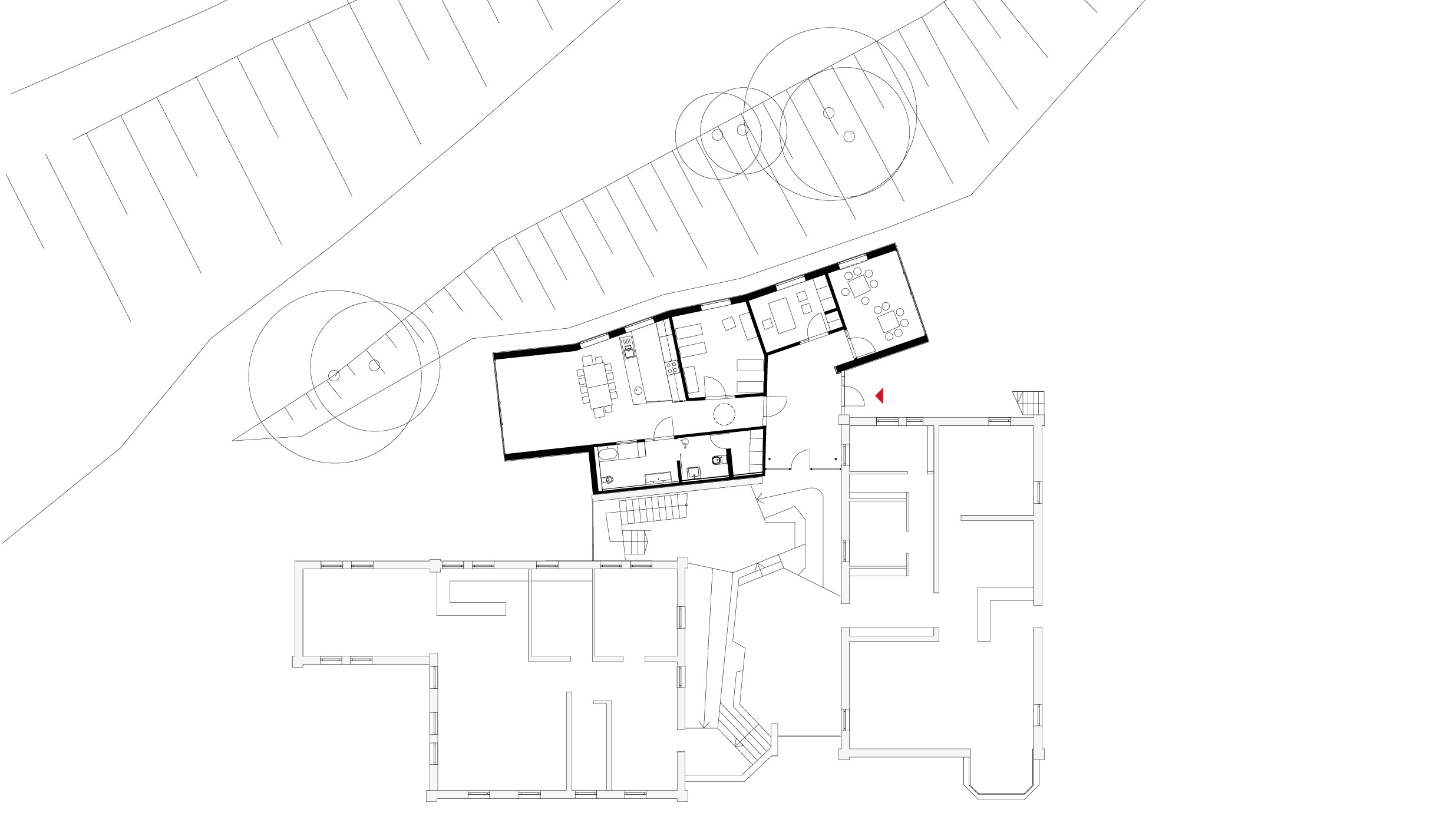
neubau einer eingruppigen kindertagesstätte innerhalb der ehemaligen bundesfestung. in nur 3 monaten planungs- und weiteren 3,5 monaten bauzeit entstand die neue kinderkrippe der waldorfschule am illerblick. das gebäude ist als holzrahmenbau auf plattengründung umgesetzt und der umgebenden denkmalgeschützten topografie der erdwälle der ehemaligen bundesfestung angepasst. aus diesen räumlichen zwängen bezieht das haus seine unregelmäßige form. die großen fensteröffnungen an den gebäudeenden und die kontrolliert eingesetzten fensteröffnungen machen den festungswall und die umgebende natur stets erlebbar. die kita ist an den bestehenden dreigruppigen kindergarten angebunden und wird über diesen versorgt.
standort: ulm
fertigstellung: 2012
bauherr: förderkreis für waldorfpädagogik illerblick e.v.
fertigstellung: 2012
bauherr: förderkreis für waldorfpädagogik illerblick e.v.