echo $img['alt'];

k5

wohn- und geschäftshaus k5, ulm
 

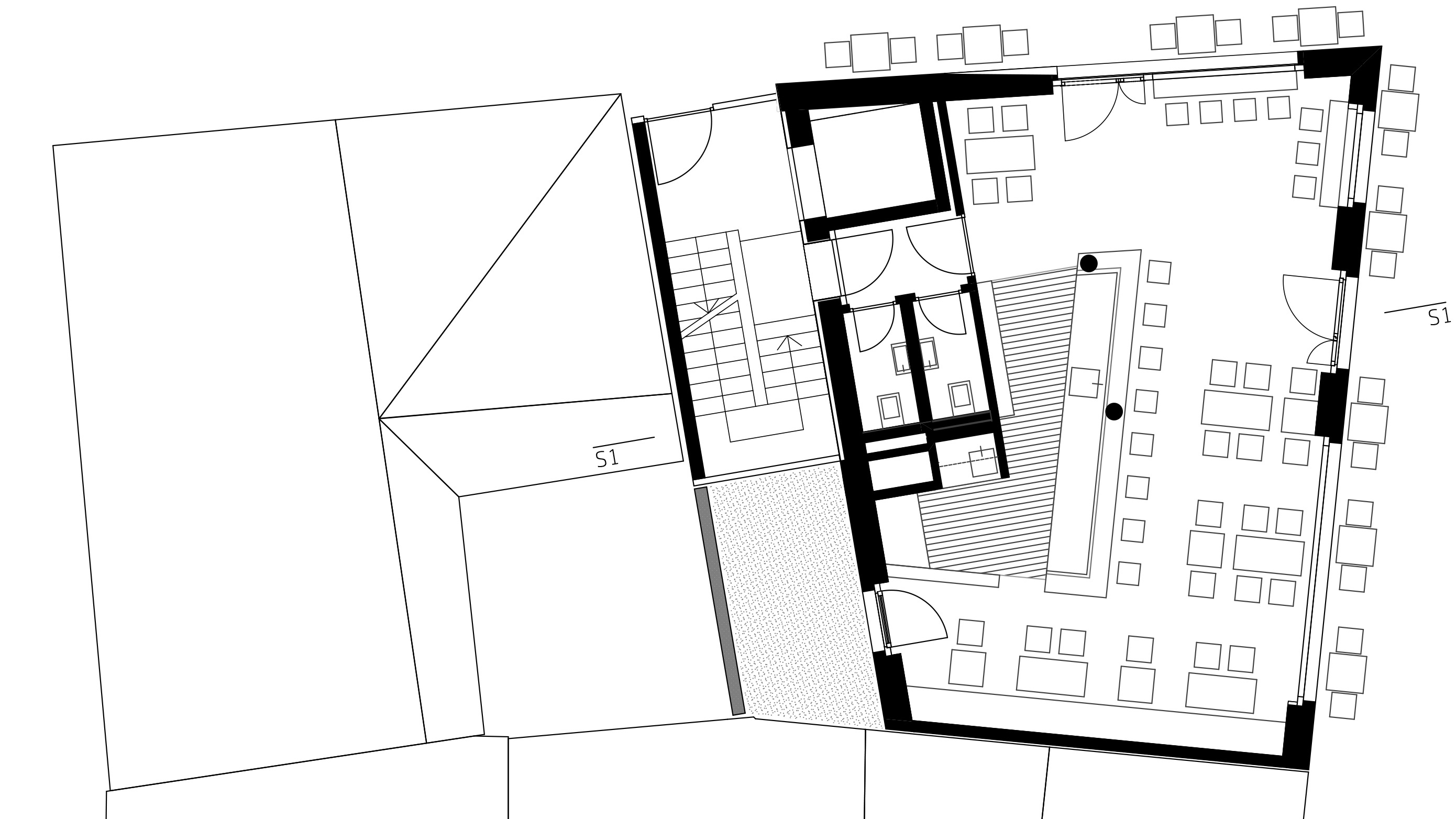
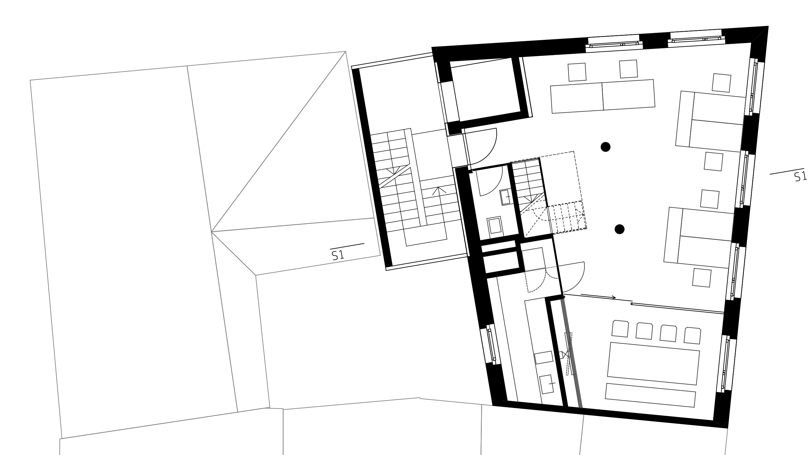
die karpfengasse in ulm ist ein von rückseiten geprägter ort in direkter nachbarschaft zum historisch bedeutenden judenhof – dem „wohnzimmer“ der stadt. das ca. 100 qm große eckgrundstück war früher bebaut, wurde aber seit dem bombenangriff im dezember 1944 nur als parkplatz genutzt. aus gründen der stadtreparatur hat die stadt ulm ein bewerbungsverfahren für die bebauung ausgelobt. hochstrasser.architekten haben dieses verfahren für sich entscheiden.

entwurflicher grundgedanke war, eine neue urbane identität zu schaffen und den angrenzenden stadtraum aufzuwerten und zu beleben. der typus des innenstadtprägenden, mittelalterlichen giebelhauses wurde als sichtbetonmonolith interpretiert. erstmalig in deutschland wurde in der karpfengasse eine konstruktion aus kerngedämmtem dämmbeton in zweischaliger bauweise monolithisch gegossen, die sowohl höchste energie- als auch konstruktionsstandards erfüllt. die bisher nur in der schweiz erprobte bauweise wurde gemeinsam mit der schweizer MISAPOR AG auf das deutsche bauwesen übertragen.außen wie innen entstanden charakteristisch lebendige sichtbetonflächen. im kontrast dazu stehen die unbehandelten vollholzfenster aus lärche und die organisch geformte eingangsfassade aus metalllamellen. die erdgeschossnutzung als café-bar belebt durch die raumhohen fenstertüren den angrenzenden stadtraum und bespielt die umgebenden freiflächen. im ersten und zweiten obergeschoss  befinden sich die büroräume eines architekturbüros, im dritten obergeschoss eine maisonettwohnung mit dachterrassen und münsterblick.

standort: ulm karpfengasse 5
fertigstellung: 2016
bauherr: adrian hochstrasser
auszeichnungen: hugo-häring-auszeichnung 2017, beispielhaftes bauen ulm und alb-donau-kreis 2013-2019, otto-borst-preis 2020, anerkennung staatspreis baukultur baden-württemberg 2020
weitere informationen
Nach oben