echo $img['alt'];

hörsaalgebäude uni ulm

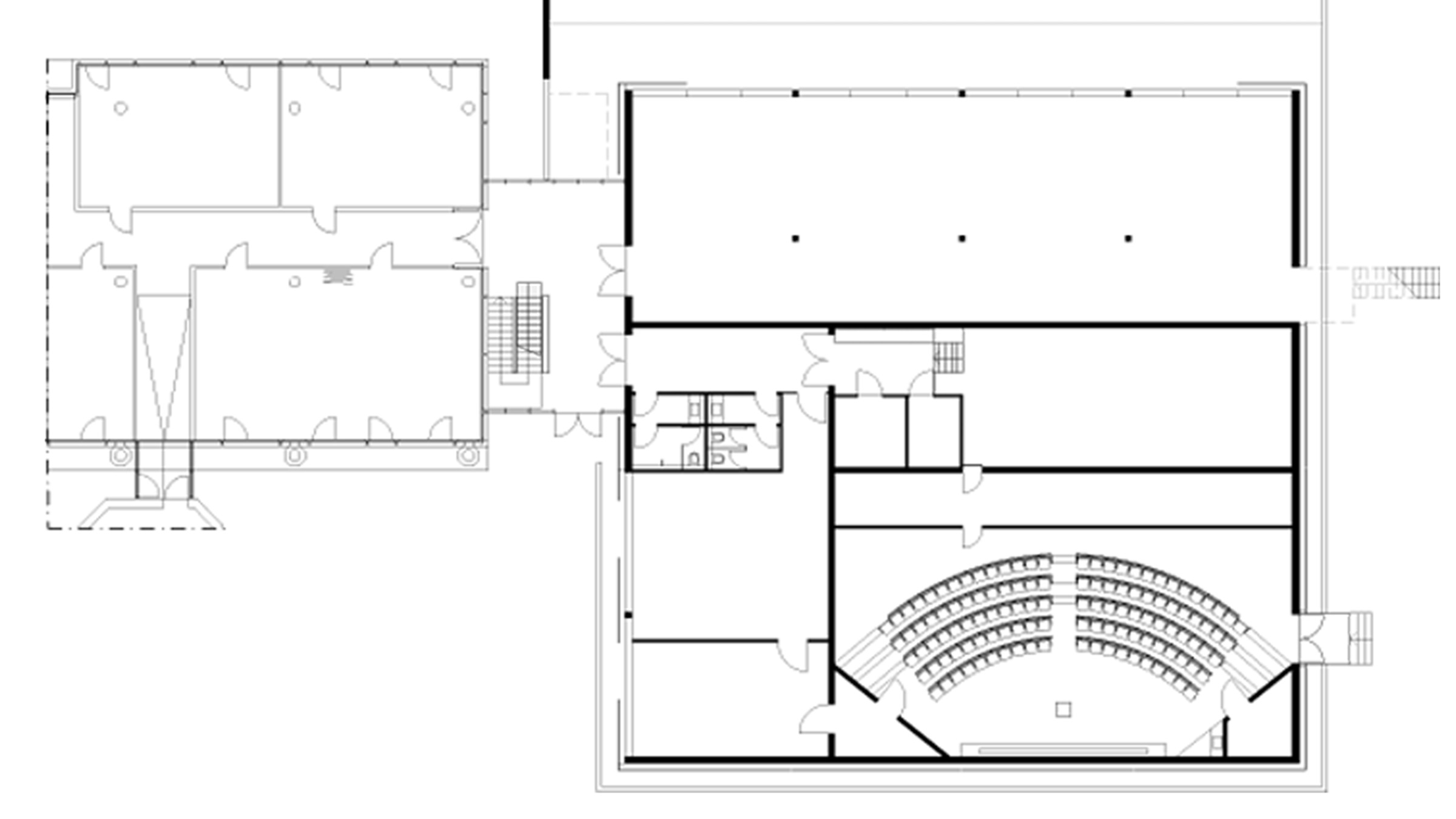
hörsaalgebäude mit seminarräumen als erweiterung der universität ulm
 

als erweiterung des it-bereichs der universität ulm wurde auf dem ulmer eselsberg ein kompakter neubau mit einem hörsaal für 300 studenten und mehreren seminarräumen geplant. der kubische baukörper auf quadratischem grundriss fügt sich als vermittelndes element in die landschaft ein, ergänzt das sogenannte informationskreuz im osten der universität und bildet den abschluß der universitätsachse. das hörsaalgebäude aus fertgteilen und thermowänden schließt über einen zweigeschossigen, gläsernen verbindungsbau an das bestandsgebäude an. den grünen oberflächen der sichtbetonaußenwände sind transparente elemente aus edelstahlgewebe vorgeschaltet, die optische akzente setzen. der hörsaal bettet sich in den über zwei geschosse reichenden seminartrakt und kontastiert im inneren durch bewusste sichtbeziehungen den umliegenden wald mit der high-tech-atmosphäre im lehrbetrieb informatik. durch die nähe zum hauptgebäude konnte im neubau auf kostenintensive wc-anlagen und aufzüge verzichtet werden, denn akuter platzmangel führte zu einer planung mit sehr kurzer bauzeit in einem außerordentlich knappen kostenkorsett.

standort: uni ulm
fertigstellung: 2002
bauherr: land baden-württemberg, staatliches vermögens- & hochbauamt ulm
Nach oben