echo $img['alt'];

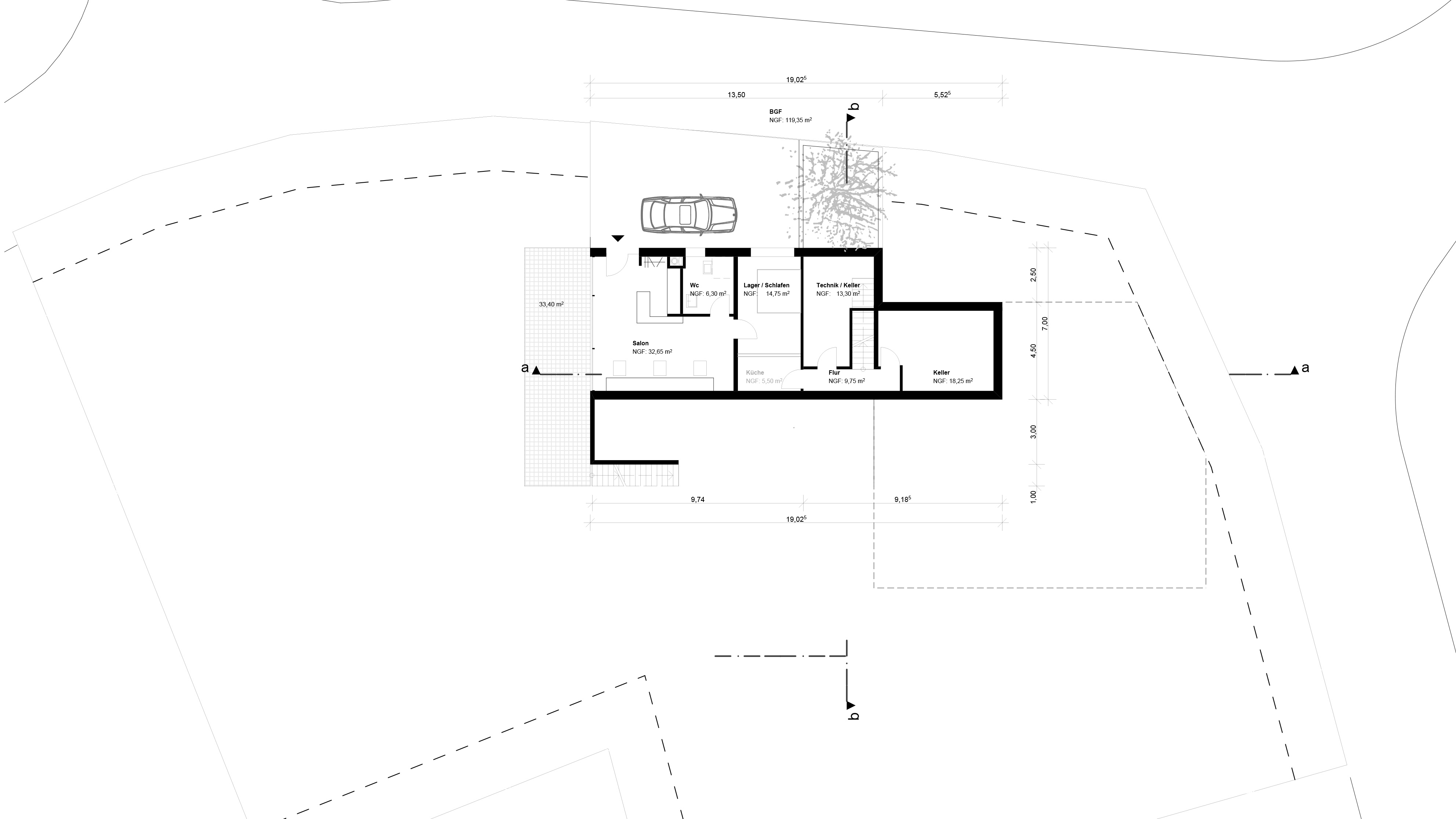
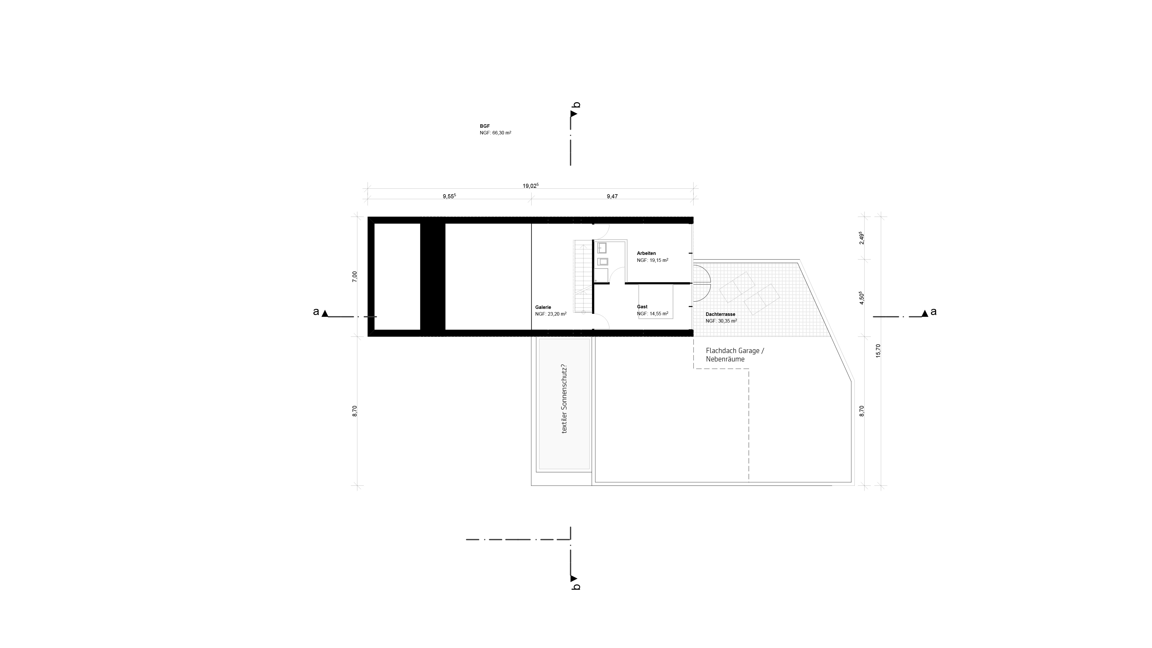
haus s

einfamilienhaus mit frisörsalon, schemmerberg
 
standort: schemmerberg
fertigstellung: 2013
bauherr: privat
Nach oben