echo $img['alt'];

haus k

einfamilienhaus mit vorgehängten, hinterlüfteten hpl-fassadenplatten
 

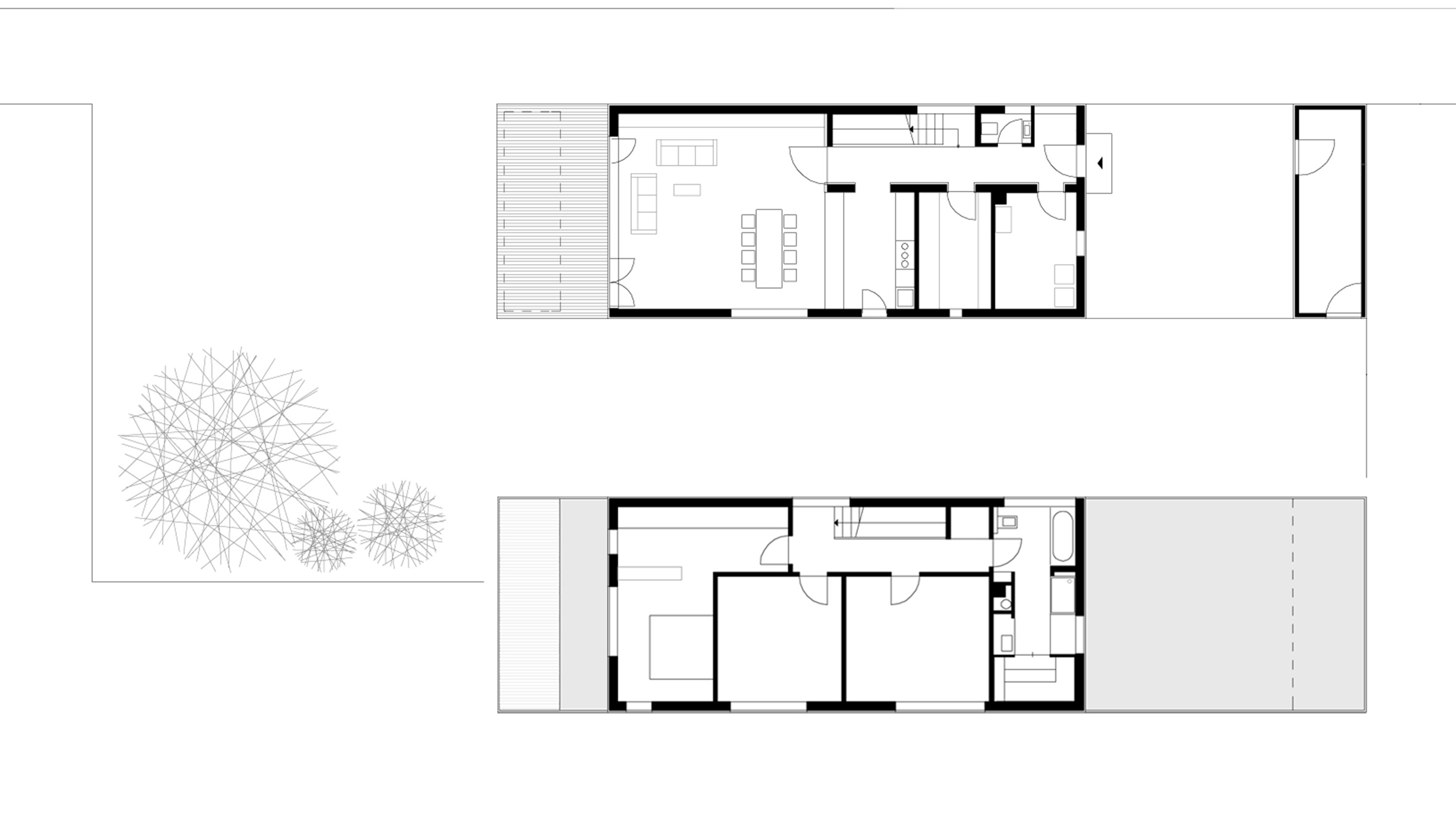
ein langes, schmales grundstück in einer gewachsenen dörflichen struktur war der ausgangspunkt für den schlichten, strukturiert gegliederten entwurf dieses wohnhauses. die lange und schmale zufahrt von osten bildet an deren ende den eckpunkt für das gebäude, welches sich längs der ost-west-achse entwickelt und somit nach süden und westen freiräume schafft. der auftakt des gebäudes im osten bildet der kellerersatzraum, der über den überdachten carport zum haus hin überleitet. hier befindet sich auch der eingang zum haus. im westen öffnet sich der wohn- und essbereich komplett zur angrenzenden, überdachten holzterrasse und dem garten. der vom geräteraum bis zur terrasse durchlaufende bügel zeichnet sich auch farblich differenziert in der fassade ab. die räume sind an dem an der außenwand liegenden flur mit treppe nach süden hin aufgereiht. durch das ganze haus, auch das bad, zieht sich das kirschholzparkett. sämtliche schränke und die küche sind maßgefertigt und wie die wände in weiß gehalten. das haus ist auf einer tragenden betonbodenplatte in holzständerweise erbaut und nicht unterkellert. die vorgehängte, hinterlüftete fassade besteht aus unsichtbar befestigten hpl-fassadenplatten,  die in zwei cremefarbenen, hellen farbtönen gehalten sind.

standort: vöhringen
fertigstellung: 2006
bauherr: privat
Nach oben