echo $img['alt'];

haus e

denkmalgerechte und energetische sanierung efh, ulm
 

der gebäudekomplex der hochschule für gestaltung ulm auf dem oberen kuhberg mit seiner besonderen aura und der symbiotischen verbindung von architektur und landschaft ist eine ikone der deutschen nachkriegszeit-architektur. bestimmend für die besondere ästhetik der architektur der hfg ist die konsequente reduktion der formen und materialien.
seit 1979 ist das ensemble als kulturdenkmal von besonderer
bedeutung geschützt.
teil der gesamtanlage sind auch die ehemaligen dozentenhäuser,
die westlich des hauptgebäudes in drei bauabschnitten
errichtet wurden. eines davon ist das frühere wohnhaus von hans gugelot, architekt, produktdesigner und lehrer an der hfg.
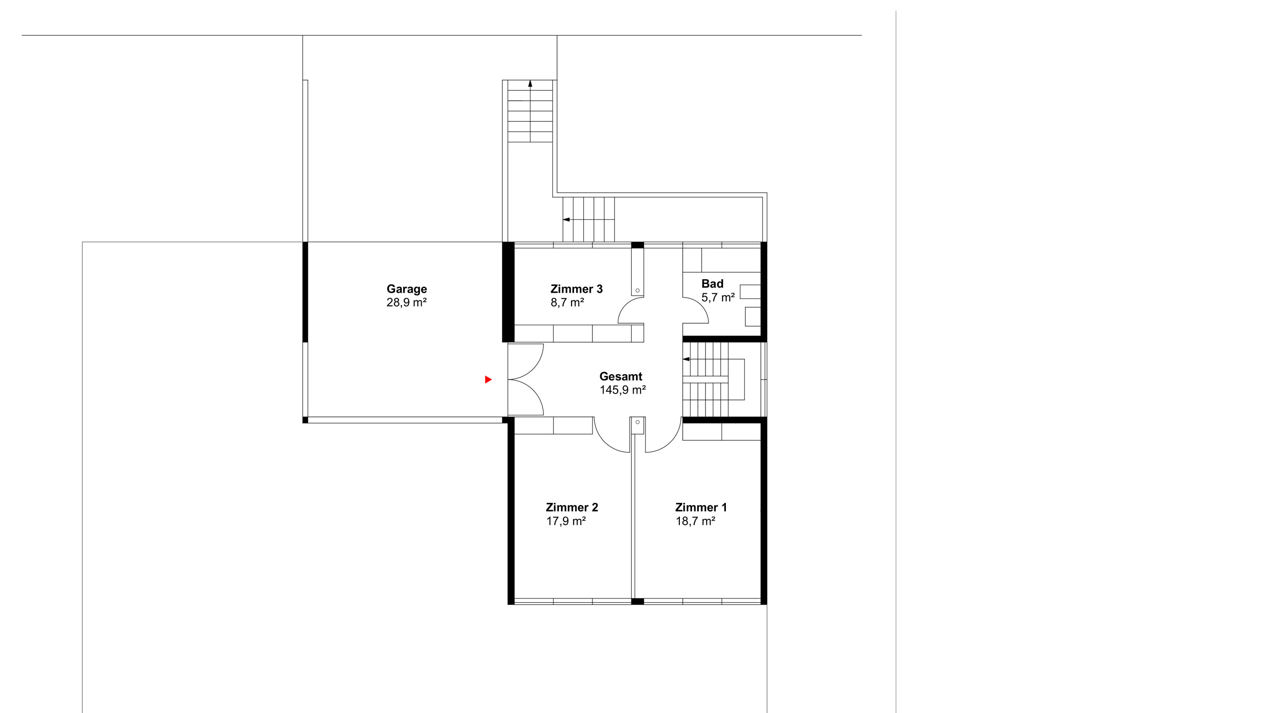
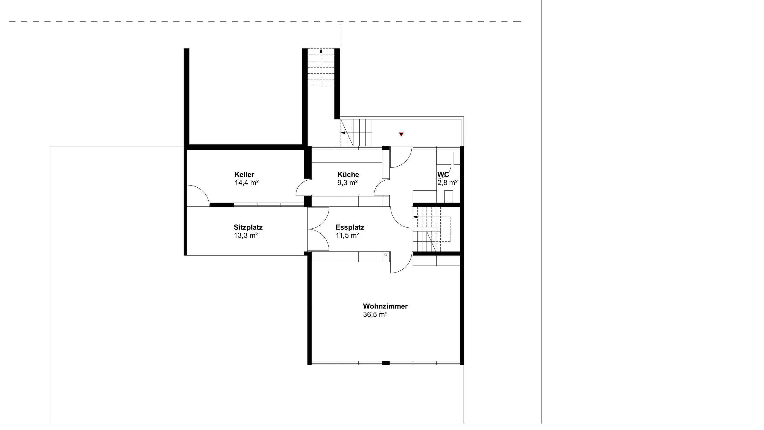
das geschichtsträchtige sichtbetonhaus sollte wieder zu neuem Leben zu erweckt werden. dabei sollten die architektonischen und bautechnischen besonderheiten herausgearbeitet und dennoch ein zukunftsfähiges und energetisch optimierteswWohnhaus geschaffen werden.
dringlichste maßnahme zum erhalt der gebäudesubstanz war die ertüchtigung der außenhülle. die sanierung des betons, des daches und der fenster war zwingend notwendig, um ausreichend schutz vor widrigen witterungseinflüssen zu gewährleisten.
nach genauer bestandsaufnahme wurde klar, dass die komplette haustechnik, sowohl sämtliche elektroleitungen, wasser- und abwasserstränge wie auch die heizungsanlage, erneuert werden musste

standort: ulm
fertigstellung: 2016
bauherr: privat
Nach oben