echo $img['alt'];

haus b2

neubau einfamilienhaus mit carport, blaustein
 

das am ortsrand von blaustein an einem südhang gelegene gebäude wurde in eine ehemalige streuobstwiese eingeschrieben. der vorhandene baumbestand ist nahezu vollständig erhalten worden.
das grundstück wird von süden her erschlossen und geht lediglich von dem geschotterten zufahrtsweg getrennt in ein waldstück über.
wunsch der bauherrschaft war ein modernes, zeitloses haus welches die umgebende und idyllische landschaft in das haus einbindet, blickbeziehungen in die umgebende landschaft ermöglicht und viel platz für die junge familie bietet.
um möglichst viel gartenfläche mit dem alten apfelbaumbestand erhalten zu können wurde haus so weit wie möglich an die nordgrenze geschoben. die nebenräume verschwinden im hang, wohn- und aufenthaltsräume orientieren sich nach süden hin.
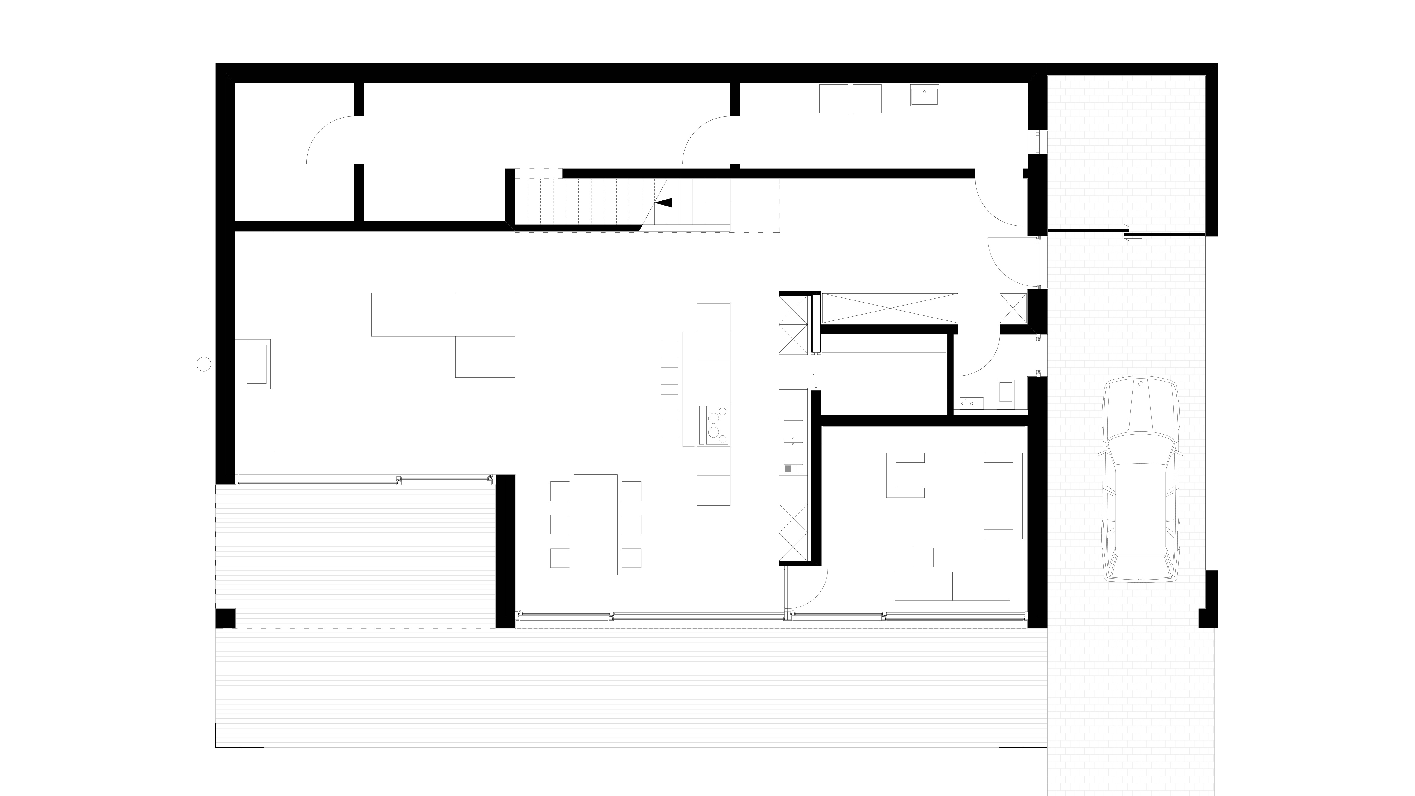
das gebäude öffnet sich im erdgeschoss mit großflächigen verglasungen gegen süden zum garten hin. hier ist der zentrale wohnraum der familie mit den fuktionen wohnen-essen-kochen, sowie das arbeits- und gästezimmer angeordnet. die nebenräume (technik, abstellraum, hauswirtschaftsraum) und die erschließung orientieren sich zur nordseite und dem hang hin. im obergeschoss öffnen sich die kinderzimmer über eine durchgehende glasfassade und der davorliegenden loggia nach süden, es entsteht ein geschützter außenraum der zum spielen und verweilen einlädt. auf der ostseite befindet sich der elternbereich mit schlafzimmer und bad mit der angegliederten dachterrasse des carports. vom spielflur aus gelangt man über die terrasse auf der nordseite in den garten.
das zweigeschossige gebäude in klassisch – modernem stil besteht aus einem stahlbeton-sockelgeschoss, das obergeschoss ist als leichtbau in holzrahmenkonstruktion ausgeführt. das gebäude ist nicht unterkellert.

standort: blaustein
fertigstellung: 2013
bauherr: privat
Nach oben