echo $img['alt'];

haus b

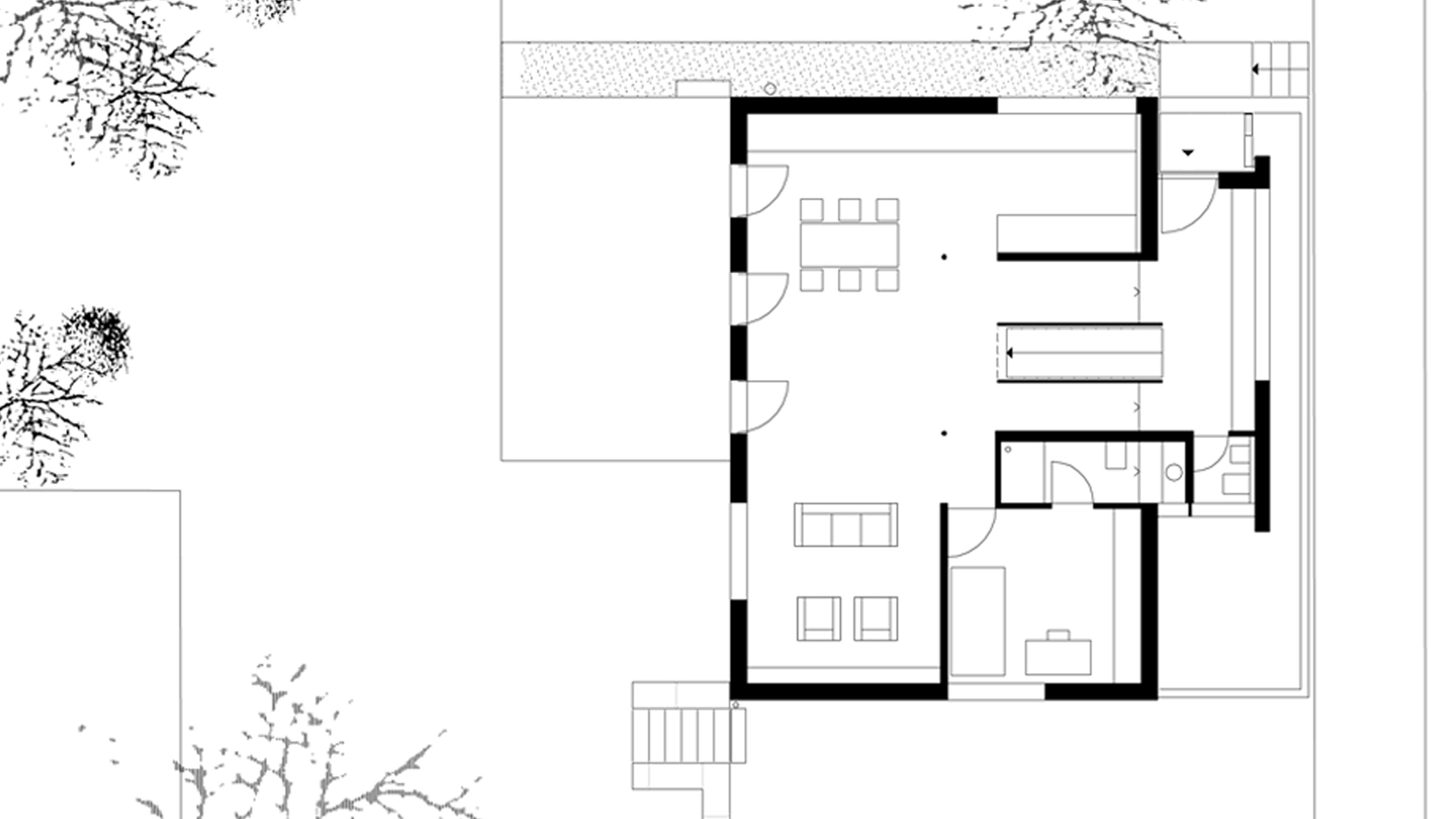
neubau einfamilienhaus inkl. freianlagen
 

der neubau auf den kellerwänden eines bestehenden fertighauses wurde ab auftragserteilung in nur vier monaten bezugsfertig im kenntnisgabeverfahren erstellt. die verkleidung des klaren baukörpers mit horizontalen holzlamellen löst das volumen der geschlossenen wandflächen auf, die faltläden erzeugen ein sich kontinuierlich veränderndes bild des hauses und lenken den blick in die ferne. die bewohner sind musiker, durch den separaten eingang können schüler in den musikzimmern im untergeschoss empfangen werden. im erdgeschoss orientieren sich die kommunikativen aufenthaltsbereiche in einer offenen raumkonzeption zum garten und der eingestellten treppenanlage hin. ein gästezimmer mit bad ist dem erschließungsbereich angegliedert. im obergeschoss befinden sich schlafräume und das badezimmer. der diffusionsoffene wandaufbau des holzrahmenbaus ergibt in zusammenhang mit dem massiven gussasphaltboden ein ausgeglichenes raumklima. die decke wurde als brettstapeldecke ausgeführt, da neben der zeitersparnis so eine gute schalldämmung und eine kostenreduktion in den ausbaugewerken erreicht werden konnte. insgesamt wurden ausschließlich baubiologisch unbedenkliche materialien verbaut.

standort: ulm-mähringen
fertigstellung: 2003
bauherr: privat
auszeichnungen: schöner wohnen „haus des jahres" 2004
Nach oben