echo $img['alt'];

büro t

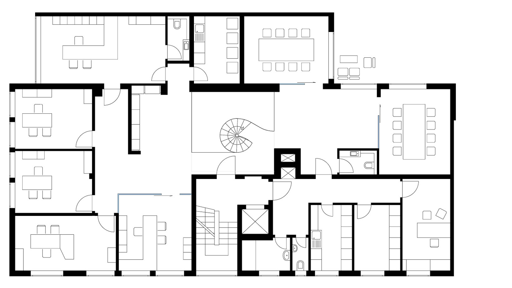
büroräume t, ulm
 

im eckhaus an der kreuzung frauenstraße/schuhhausgasse entstand auf zwei geschossen eine auf wenige elemente reduzierte arbeitswelt. um eine möglichst freie und offene kommunikation zwischen beiden geschossen zu schaffen wurde ein großzügiger, rund 7 meter hoher luftraum integriert. die verbindung der beiden ebenen erfolgt über eine spindeltreppe, die von einer tonne aus geöltem schwarzblech gefasst wird. die freiform stellt das zenrale element der arbeitswelt dar. die profillosen glastrennelemente in den büros sorgen für lichtdurchflutung und die notwendige transparenz. die maßgefertigten, schlichten und hochweiß glänzenden möbel fügen sich mit ihren klaren strukturen wie selbstverständlich in den bestand. kontraste entstehen durch die wirkung großer flächen; die transparenz und die weißgestrichenen wände stehen im deutlichen kontrast zu der in anthrazit gehaltenen treppe, dem bodenbelag als nadelfilz und dem mobilen raumteiler, der als  schwarzlackierte, 2,60 x 2,40 meter große glasscheibe, gestaltet wurde.

standort: ulm
fertigstellung: 2010
bauherr: privat
Nach oben