echo $img['alt'];

anbau scholl-gymnasium

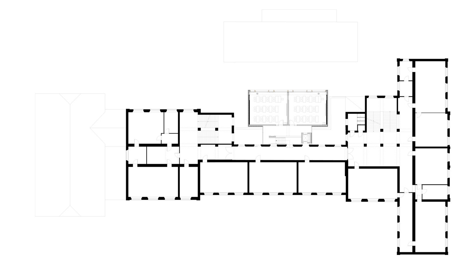
aufgeständerter neubau an bastandsbau des hans und sophie scholl-gymnasium, ulm
 

das bestehende gebäude wurde 1905-1907 von karl roman als dreigeschossiger neubarockbau mit jugendstildekor erbaut. im hof des hans und sophie scholl-gymnasiums wurde zwischen altbau und mensagebäude ein aufgeständerter, dreigeschossiger neubau mit verbindungsbau zum altbau errichtet. das neue gebäude steht auf 6 stützen und beinhaltet pro geschoss zwei klassenräume. die geschosse werden über einen verbindungsbau, der sich zwischen alt- und neubau befindet, erschlossen. das thema der breiten leibungen des altbaues wurde bei dem neubau übernommen und neu interpretiert. die westseite des neubaues ist komplett verglast. 2 öffnungsflügel und 2 kippbare oberlichter sorgen in jedem klassenzimmer für die natürliche belüftung der räume. decken, wände und öffnungsflügel sind mit tiefen, unterschiedlich geneigten leibungen ganzheitlich überdeckt. ansonsten ist der neubau komplett verputzt, auch die unterseite des gebäudes. der verbindungsbau ist gegenüber dem neubau zurückversetzt und mit einer pfosten-riegel-fassade versehen.

standort: ulm
fertigstellung: 2011
bauherr: stadt ulm, zentrales gebäudemanagement
Nach oben